REF#Kbs 134973 / Projekt inwestycyjny / dzielnica Kraymorie / Burgas / Burgaskie wojewódstwo / Bulgaria / Sprzedaz Na mapie

Całkowita powierzchnia
30000 m2
Ogród
30000 m2

Cena
5 100 000 €
(bez VAT)
170 €/m2
(bez VAT)
Zapytanie o więcej informacji lub oględziny
Pakiet informacyjny
Umeblowanie
Nieumeblowane
Odległości
Ostatnieia aktualizacja
02.12.2025 r.
Odległości od nieruchomości do innych ważnych obiektów
Informacje administracyjne dotyczące oferty
Tekst został automatycznie przetłumaczony przez oprogramowanie i może zawierać nieścisłości.
Możesz zobaczyć tekst w oryginalnym języku lub przetłumaczyć na inne języki:
Projekt inwestycyjny „Chengene Consort” – Park Rosenets, Burgas.
Lokalizacja: Projekt Chengene Consort jest położony zaledwie 20 minut od centrum Burgas, w jednym z najbardziej malowniczych obszarów na południowym wybrzeżu Morza Czarnego - Parku Rosenets, Wiosce Rybackiej - obszarze Chengene Skele.
Obszar ten dynamicznie się rozwija i staje się nową elitarną dzielnicą Burgas. Władze Burgasu wybudowały już restauracje, alejki i atrakcje nad morzem, tworząc nową przestrzeń do wypoczynku, turystyki i życia na wysokim poziomie.
Działka położona jest nad niewielką zatoką, z rozległym widokiem na morze i miasto. Naturalne wzniesienie zapewnia widok na morze z każdego domu i podkreśla naturalne piękno terenu.
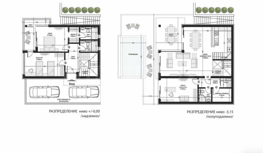
Koncepcja i parametry projektu: Zatwierdzony Szczegółowy Plan Zagospodarowania Przestrzennego (PZP) przewiduje budowę osiedla willowego „Consort” – nowoczesnego kompleksu mieszkaniowego składającego się z 40 domów jednorodzinnych i budynku użyteczności publicznej, zlokalizowanego na uregulowanej działce o powierzchni 27 668 m2.
(powierzchnia całkowita według szkicu – 30 369 m kw.).
Projekt został opracowany z dbałością o środowisko naturalne, harmonię architektoniczną i komfort przyszłych mieszkańców. Każdy dom posiada ogród, werandę, taras widokowy i własny basen.
Typy budynków:
Typ A – 15 sztuk
Powierzchnia: 172,99 mkw.
Powierzchnia całkowita: 331,90 mkw.
Typ B – 7 sztuk
Powierzchnia: 140,51 mkw.
Powierzchnia całkowita: 271,80 mkw.
Typ B – 18 sztuk
Powierzchnia: 86,38 mkw.
Powierzchnia całkowita: 206,19 mkw.
Budynek do użytku ogólnego – 1 jednostka
Powierzchnia: 260 mkw.
Powierzchnia całkowita: 520 m2
Powierzchnia całkowita: 5393,26 mkw.
Całkowita powierzchnia zabudowana: 11 112,52 m²
Infrastruktura i komunikacja:
Dojazd do nieruchomości drogą asfaltową;
Wykonano instalację elektryczną, wodno-kanalizacyjną;
Zatwierdzona dokumentacja PUP i projektu;
Różnica wysokości z widokiem panoramicznym ze wszystkich poziomów;
Obszar z rozwiniętą infrastrukturą społeczną i turystyczną.
Parametry inwestycyjne
• Powierzchnia nieruchomości: 30 369 m² (powierzchnia regulowana zgodnie z Planem Zagospodarowania Przestrzennego – 27 668 m²)
• Cena: 170 EUR/m2 bez VAT
• Status: Teren zurbanizowany z PUP – PZ
• Ustawa: 21.02.2025
• Forma nabycia: możliwość zakupu za pośrednictwem firmy – bez VAT
• Właściciel: jednoosobowy przedsiębiorca, w pełni współpracuje przy transakcji
Lokalizacja i dostępność
• Burgas – 14 km
• Sozopol – 21 km
• Przystanek autobusowy „Granichar” – 1 km
• Wioska rybacka „Chengene Skele” – 500 m
• Plaża Otmanli – 500 m
Główne zalety
• Doskonała lokalizacja w Parku Rosenets z widokiem na morze
• Zatwierdzony PUP i ukończony projekt architektoniczny
• W pełni rozwinięta infrastruktura
• Wysokość gwarantująca widok na morze
• Łatwy dojazd do Burgas i Sozopola
• Elastyczna forma transakcji – za pośrednictwem firmy bez zobowiązań
• Duży potencjał rozwoju miejscowości wypoczynkowej lub mieszkalnej
Czekamy na Państwa zapytanie.
Jeśli chcesz umówić się na obejrzenie interesującej Cię nieruchomości lub odwiedzić jedno z naszych biur, skontaktuj się z nami. Aby umówić się na spotkanie lub oględziny, zadzwoń pod numer telefonu podany w ogłoszeniu lub wyślij zapytanie e-mailem. Nasz konsultant pomoże Ci w ustaleniu wszystkich niezbędnych szczegółów i ustali dogodny termin.
Szukasz odpowiedniej nieruchomości dla siebie?
Skontaktuj się z nami i opowiedz nam o swoich potrzebach i preferencjach. Nasz zespół przeprowadzi dogłębną analizę rynku, aby zaoferować Ci nieruchomości idealnie odpowiadające Twoim kryteriom. Posiadamy wyjątkowe portfolio wysokiej jakości, ekskluzywnych domów, dostępnych wyłącznie dla naszych klientów. Aby być pierwszym, który otrzyma o nich informacje – skontaktuj się z nami.
Usługi dodatkowe
Jako ceniony klient naszej firmy, będziesz miał przywilej korzystania z usług naszego doświadczonego zespołu prawnego całkowicie bezpłatnie. Ponadto oferujemy kompleksowe rozwiązania, w tym ubezpieczenia majątkowe, bezpłatne doradztwo finansowe, a także korzystne warunki finansowania. Nasze usługi obejmują również odsprzedaż, wynajem i zarządzanie nieruchomościami. Zapewniamy wysokiej jakości remonty i wyposażenie wnętrz za pośrednictwem wyspecjalizowanych firm wchodzących w skład naszej grupy kapitałowej i będących naszymi wieloletnimi partnerami.
Lokalizacja: Projekt Chengene Consort jest położony zaledwie 20 minut od centrum Burgas, w jednym z najbardziej malowniczych obszarów na południowym wybrzeżu Morza Czarnego - Parku Rosenets, Wiosce Rybackiej - obszarze Chengene Skele.
Obszar ten dynamicznie się rozwija i staje się nową elitarną dzielnicą Burgas. Władze Burgasu wybudowały już restauracje, alejki i atrakcje nad morzem, tworząc nową przestrzeń do wypoczynku, turystyki i życia na wysokim poziomie.
Działka położona jest nad niewielką zatoką, z rozległym widokiem na morze i miasto. Naturalne wzniesienie zapewnia widok na morze z każdego domu i podkreśla naturalne piękno terenu.
Koncepcja i parametry projektu: Zatwierdzony Szczegółowy Plan Zagospodarowania Przestrzennego (PZP) przewiduje budowę osiedla willowego „Consort” – nowoczesnego kompleksu mieszkaniowego składającego się z 40 domów jednorodzinnych i budynku użyteczności publicznej, zlokalizowanego na uregulowanej działce o powierzchni 27 668 m2.
(powierzchnia całkowita według szkicu – 30 369 m kw.).
Projekt został opracowany z dbałością o środowisko naturalne, harmonię architektoniczną i komfort przyszłych mieszkańców. Każdy dom posiada ogród, werandę, taras widokowy i własny basen.
Typy budynków:
Powierzchnia całkowita: 5393,26 mkw.
Całkowita powierzchnia zabudowana: 11 112,52 m²
Infrastruktura i komunikacja:
Parametry inwestycyjne
• Powierzchnia nieruchomości: 30 369 m² (powierzchnia regulowana zgodnie z Planem Zagospodarowania Przestrzennego – 27 668 m²)
• Cena: 170 EUR/m2 bez VAT
• Status: Teren zurbanizowany z PUP – PZ
• Ustawa: 21.02.2025
• Forma nabycia: możliwość zakupu za pośrednictwem firmy – bez VAT
• Właściciel: jednoosobowy przedsiębiorca, w pełni współpracuje przy transakcji
Lokalizacja i dostępność
• Burgas – 14 km
• Sozopol – 21 km
• Przystanek autobusowy „Granichar” – 1 km
• Wioska rybacka „Chengene Skele” – 500 m
• Plaża Otmanli – 500 m
Główne zalety
• Doskonała lokalizacja w Parku Rosenets z widokiem na morze
• Zatwierdzony PUP i ukończony projekt architektoniczny
• W pełni rozwinięta infrastruktura
• Wysokość gwarantująca widok na morze
• Łatwy dojazd do Burgas i Sozopola
• Elastyczna forma transakcji – za pośrednictwem firmy bez zobowiązań
• Duży potencjał rozwoju miejscowości wypoczynkowej lub mieszkalnej
Czekamy na Państwa zapytanie.
Jeśli chcesz umówić się na obejrzenie interesującej Cię nieruchomości lub odwiedzić jedno z naszych biur, skontaktuj się z nami. Aby umówić się na spotkanie lub oględziny, zadzwoń pod numer telefonu podany w ogłoszeniu lub wyślij zapytanie e-mailem. Nasz konsultant pomoże Ci w ustaleniu wszystkich niezbędnych szczegółów i ustali dogodny termin.
Szukasz odpowiedniej nieruchomości dla siebie?
Skontaktuj się z nami i opowiedz nam o swoich potrzebach i preferencjach. Nasz zespół przeprowadzi dogłębną analizę rynku, aby zaoferować Ci nieruchomości idealnie odpowiadające Twoim kryteriom. Posiadamy wyjątkowe portfolio wysokiej jakości, ekskluzywnych domów, dostępnych wyłącznie dla naszych klientów. Aby być pierwszym, który otrzyma o nich informacje – skontaktuj się z nami.
Usługi dodatkowe
Jako ceniony klient naszej firmy, będziesz miał przywilej korzystania z usług naszego doświadczonego zespołu prawnego całkowicie bezpłatnie. Ponadto oferujemy kompleksowe rozwiązania, w tym ubezpieczenia majątkowe, bezpłatne doradztwo finansowe, a także korzystne warunki finansowania. Nasze usługi obejmują również odsprzedaż, wynajem i zarządzanie nieruchomościami. Zapewniamy wysokiej jakości remonty i wyposażenie wnętrz za pośrednictwem wyspecjalizowanych firm wchodzących w skład naszej grupy kapitałowej i będących naszymi wieloletnimi partnerami.
Zobacz tekst w innych językach (tłumaczenie automatyczne)
Lokalizacja (około)
Przybliżone położenie nieruchomości/kompleksu zaznaczono na mapie czerwonym znacznikiem.
Nasze top oferty do sprzedaz Burgas, Bulgaria
Nieruchomości według rejonu, Burgas
- Nieruchomości w dzielnica"Sarafovo"
- Nieruchomości w dzielnica"Meden rudnik - zona V"
- Nieruchomości w dzielnica"Horizont"
- Nieruchomości w dzielnica"Kraymorie"
- Nieruchomości w dzielnica"Slaveykov"
- Nieruchomości w dzielnica"Meden rudnik - zona D"
- Nieruchomości w dzielnica"Center"
- Nieruchomości w dzielnica"Bratya Miladinovi"
- Nieruchomości w dzielnica"Zornitsa"
- Nieruchomości w dzielnica"Madika"


ORIGINAL: