Liczba pięter w budynku
14
Piętro
6
Winda
tak
Sypialnie
1
Łazienki
1
Kryte miejsca parkingowe
1
Balkony (tarasy) szt.:
1

Całkowita powierzchnia
62.41 m2
Powierzchnia zabudowana
52.24 m2
Części wspólne
10.17 m2
Stan
W trakcie budowy
Planowane zakończenie
December 2025
Otrzymano Akt 16

Cena
312 050 €
(bez VAT)
5 000 €/m2
(bez VAT)
Zapytanie o więcej informacji lub oględziny
Pakiet informacyjny
Odległości
Ostatnieia aktualizacja
19.11.2025 r.
Odległości od nieruchomości do innych ważnych obiektów
- Centrum miasta: 3km
- Lotnisko Sofia (SOF): 14km
- Sklep spożywczy: 400m
- Szpital: 1km
- Szkoła: 1km
Informacje administracyjne dotyczące oferty
Tekst został automatycznie przetłumaczony przez oprogramowanie i może zawierać nieścisłości.
Możesz zobaczyć tekst w oryginalnym języku lub przetłumaczyć na inne języki:
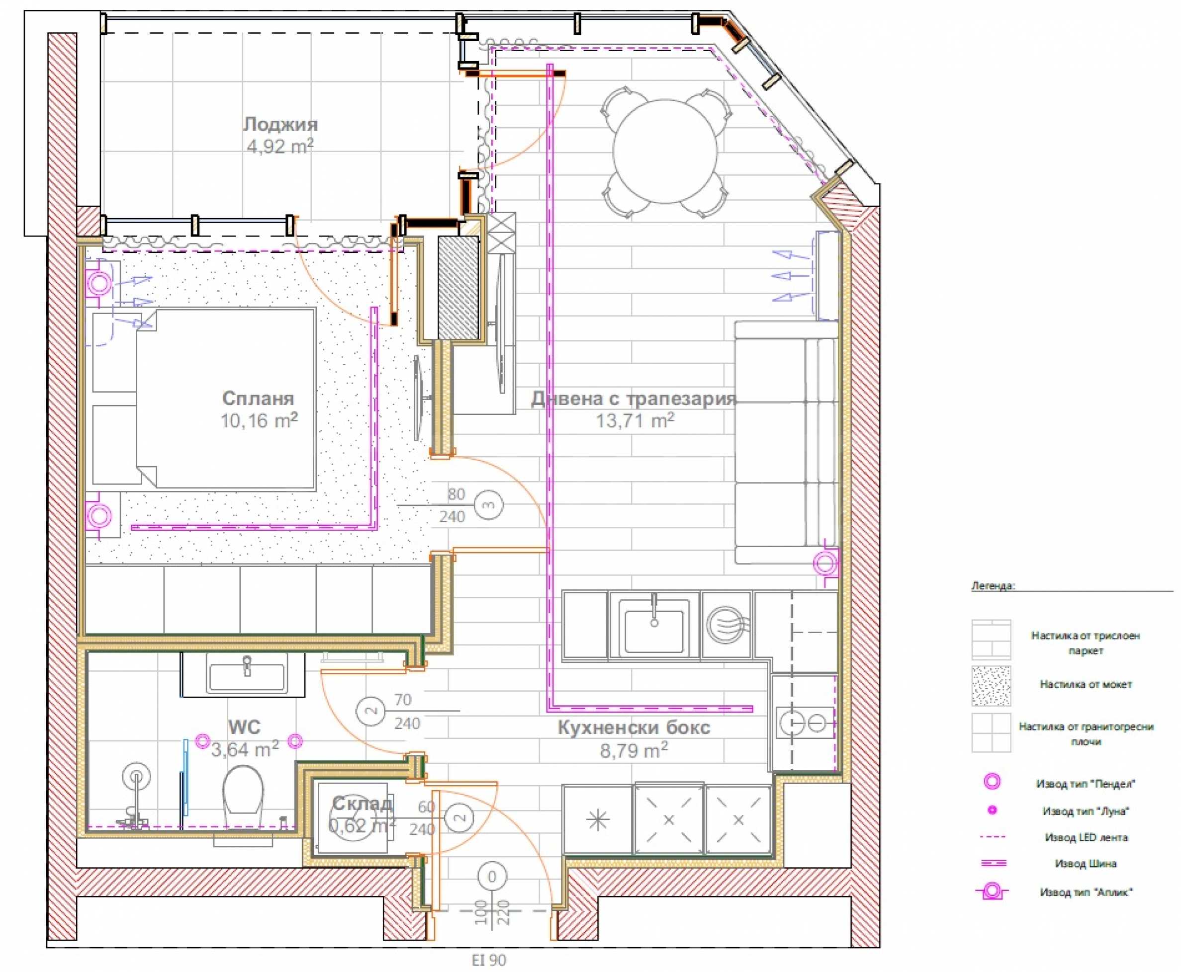
Prezentujemy na sprzedaż dwupokojowe mieszkanie w prestiżowym kompleksie Teatralna Park Residence, położone na 6. piętrze z ekspozycją północno-wschodnią. Mieszkanie ma powierzchnię całkowitą 62,41 m² i netto 52,24 m², charakteryzuje się doskonałym rozkładem pomieszczeń i nowoczesną linią architektoniczną.
Dystrybucja:
• Hol wejściowy;
•Salon z jadalnią (13,71 m²) – przestronny i jasny, z oknami panoramicznymi;
• Aneks kuchenny (8,79 m²) – funkcjonalnie zlokalizowany i wizualnie oddzielony;
•Sypialnia (10,16 m²);
•Łazienka z WC (3,64 m²);
•Pomieszczenie gospodarcze (0,62 m²);
• Loggia / taras (4,92 m²);
•Wnętrze – zostanie wykonane dokładnie tak, jak pokazano na wizualizacjach.
Apartament nie jest jeszcze umeblowany, ale zostanie w pełni wykończony w stylu i z zachowaniem detali przedstawionych na wizualizacjach: nowoczesny minimalizm z luksusowym skandynawskim charakterem, neutralne barwy, wysokiej klasy materiały i precyzyjne oświetlenie LED.
Zaplanowane rozwiązanie wnętrza obejmuje:
•Ciepłe faktury drewna i akcenty grafitowe;
•Meble tapicerowane w kolorze szarym i oliwkowym;
•Okrągły stół jadalny i wygodne tapicerowane krzesła;
• Stylowe, dekoracyjne półki i wbudowane rozwiązania;
•Oświetlenie liniowe i akcentujące, podkreślające geometrię;
• Cienkie, wysokie zasłony przepuszczające światło;
•Apartament zostanie wykończony w stopniu w pełni odpowiadającym wizualizacjom – pod względem materiałów, kolorów i ogólnego stylu.
Cena i termin realizacji:
- Cena apartamentu: 312 050 EUR bez VAT;
- Miejsce parkingowe: 50 000 EUR bez VAT;
- Razem: 362 050 EUR bez VAT.
Termin zakończenia: (orientacyjny) – przewiduje się, że prace będą gotowe wcześniej niż podano w ogłoszeniu (01.05.2026).
Czekamy na Państwa zapytanie.
Jeśli chcesz umówić się na obejrzenie interesującej Cię nieruchomości lub odwiedzić jedno z naszych biur, skontaktuj się z nami. Aby umówić się na spotkanie lub oględziny, zadzwoń pod numer telefonu podany w ogłoszeniu lub wyślij zapytanie e-mailem. Nasz konsultant pomoże Ci w ustaleniu wszystkich niezbędnych szczegółów i ustali dogodny termin.
Szukasz odpowiedniej nieruchomości dla siebie?
Skontaktuj się z nami i opowiedz nam o swoich potrzebach i preferencjach. Nasz zespół przeprowadzi dogłębną analizę rynku, aby zaoferować Ci nieruchomości idealnie odpowiadające Twoim kryteriom. Posiadamy wyjątkowe portfolio wysokiej jakości, ekskluzywnych domów, dostępnych wyłącznie dla naszych klientów. Aby być pierwszym, który otrzyma o nich informacje – skontaktuj się z nami.
Usługi dodatkowe
Jako ceniony klient naszej firmy, będziesz miał przywilej korzystania z usług naszego doświadczonego zespołu prawnego całkowicie bezpłatnie. Ponadto oferujemy kompleksowe rozwiązania, w tym ubezpieczenia nieruchomości, bezpłatne doradztwo finansowe, a także korzystne warunki finansowania. Nasze usługi obejmują również odsprzedaż, wynajem i zarządzanie nieruchomościami. Zapewniamy wysokiej jakości remonty i wyposażenie wnętrz za pośrednictwem wyspecjalizowanych firm wchodzących w skład naszej grupy kapitałowej i będących naszymi wieloletnimi partnerami.
Dystrybucja:
• Hol wejściowy;
•Salon z jadalnią (13,71 m²) – przestronny i jasny, z oknami panoramicznymi;
• Aneks kuchenny (8,79 m²) – funkcjonalnie zlokalizowany i wizualnie oddzielony;
•Sypialnia (10,16 m²);
•Łazienka z WC (3,64 m²);
•Pomieszczenie gospodarcze (0,62 m²);
• Loggia / taras (4,92 m²);
•Wnętrze – zostanie wykonane dokładnie tak, jak pokazano na wizualizacjach.
Apartament nie jest jeszcze umeblowany, ale zostanie w pełni wykończony w stylu i z zachowaniem detali przedstawionych na wizualizacjach: nowoczesny minimalizm z luksusowym skandynawskim charakterem, neutralne barwy, wysokiej klasy materiały i precyzyjne oświetlenie LED.
Zaplanowane rozwiązanie wnętrza obejmuje:
•Ciepłe faktury drewna i akcenty grafitowe;
•Meble tapicerowane w kolorze szarym i oliwkowym;
•Okrągły stół jadalny i wygodne tapicerowane krzesła;
• Stylowe, dekoracyjne półki i wbudowane rozwiązania;
•Oświetlenie liniowe i akcentujące, podkreślające geometrię;
• Cienkie, wysokie zasłony przepuszczające światło;
•Apartament zostanie wykończony w stopniu w pełni odpowiadającym wizualizacjom – pod względem materiałów, kolorów i ogólnego stylu.
Cena i termin realizacji:
- Cena apartamentu: 312 050 EUR bez VAT;
- Miejsce parkingowe: 50 000 EUR bez VAT;
- Razem: 362 050 EUR bez VAT.
Termin zakończenia: (orientacyjny) – przewiduje się, że prace będą gotowe wcześniej niż podano w ogłoszeniu (01.05.2026).
Czekamy na Państwa zapytanie.
Jeśli chcesz umówić się na obejrzenie interesującej Cię nieruchomości lub odwiedzić jedno z naszych biur, skontaktuj się z nami. Aby umówić się na spotkanie lub oględziny, zadzwoń pod numer telefonu podany w ogłoszeniu lub wyślij zapytanie e-mailem. Nasz konsultant pomoże Ci w ustaleniu wszystkich niezbędnych szczegółów i ustali dogodny termin.
Szukasz odpowiedniej nieruchomości dla siebie?
Skontaktuj się z nami i opowiedz nam o swoich potrzebach i preferencjach. Nasz zespół przeprowadzi dogłębną analizę rynku, aby zaoferować Ci nieruchomości idealnie odpowiadające Twoim kryteriom. Posiadamy wyjątkowe portfolio wysokiej jakości, ekskluzywnych domów, dostępnych wyłącznie dla naszych klientów. Aby być pierwszym, który otrzyma o nich informacje – skontaktuj się z nami.
Usługi dodatkowe
Jako ceniony klient naszej firmy, będziesz miał przywilej korzystania z usług naszego doświadczonego zespołu prawnego całkowicie bezpłatnie. Ponadto oferujemy kompleksowe rozwiązania, w tym ubezpieczenia nieruchomości, bezpłatne doradztwo finansowe, a także korzystne warunki finansowania. Nasze usługi obejmują również odsprzedaż, wynajem i zarządzanie nieruchomościami. Zapewniamy wysokiej jakości remonty i wyposażenie wnętrz za pośrednictwem wyspecjalizowanych firm wchodzących w skład naszej grupy kapitałowej i będących naszymi wieloletnimi partnerami.
Zobacz tekst w innych językach (tłumaczenie automatyczne)
Lokalizacja (absolutnie poprawnie)
To jest absolutnie dokładna lokalizacja nieruchomości/kompleksu. Możesz powiększać lub pomniejszać skalę mapy, a także poruszać się po niej za pomocą myszki lub kontrolek znajdujących się na samej mapie.
Nasze top oferty do sprzedaz Sofia, Bulgaria
Nieruchomości według rejonu, Sofia
- Nieruchomości w dzielnica"Malinova Dolina"
- Nieruchomości w dzielnica"Krustova Vada"
- Nieruchomości w dzielnica"Manastirski Livadi - East"
- Nieruchomości w dzielnica"Center"
- Nieruchomości w dzielnica"Boyana"
- Nieruchomości w dzielnica"Dragalevtsi"
- Nieruchomości w dzielnica"Vitosha"
- Nieruchomości w dzielnica"Lozenets"
- Nieruchomości w dzielnica"Ovcha Kupel"
- Nieruchomości w dzielnica"Mladost 3"
Popularne wyszukiwania
wszystkie według wyszukiwania


ORIGINAL: