
Całkowita powierzchnia
98.04 m2
Otrzymano Akt 16
Zapytanie o więcej informacji lub oględziny
Odległości od nieruchomości do innych ważnych obiektów
- Centrum miasta: 4km
- Lotnisko Sofia (SOF): 14km
- Sklep spożywczy: 300m
- Przystanek: 1km
- Szpital: 1km
- Szkoła: 1km
Budowa
- Cegła
Ogrzewanie
- Ogrzewanie gazowe
Informacje administracyjne dotyczące oferty
- Elektryczność
- Ogrzewanie na gaz
- Komunalne dostarczanie wody
- drzwi automatyczne
- Kanalizacja komunalna
- luksusowe windy
- Odwodnienie sieciowe
- wentylowana elewacja
Tekst został automatycznie przetłumaczony przez oprogramowanie i może zawierać nieścisłości.
Możesz zobaczyć tekst w oryginalnym języku lub przetłumaczyć na inne języki:
Mamy przyjemność zaoferować Państwu luksusowy, 11-piętrowy budynek mieszkalny o imponującej długości 44 metrów, położony w odległości spaceru od stacji metra Witosza i centrum handlowego Paradise Mall. W budynku znajdują się apartamenty z jedną, dwiema i czterema sypialniami oraz penthouse.
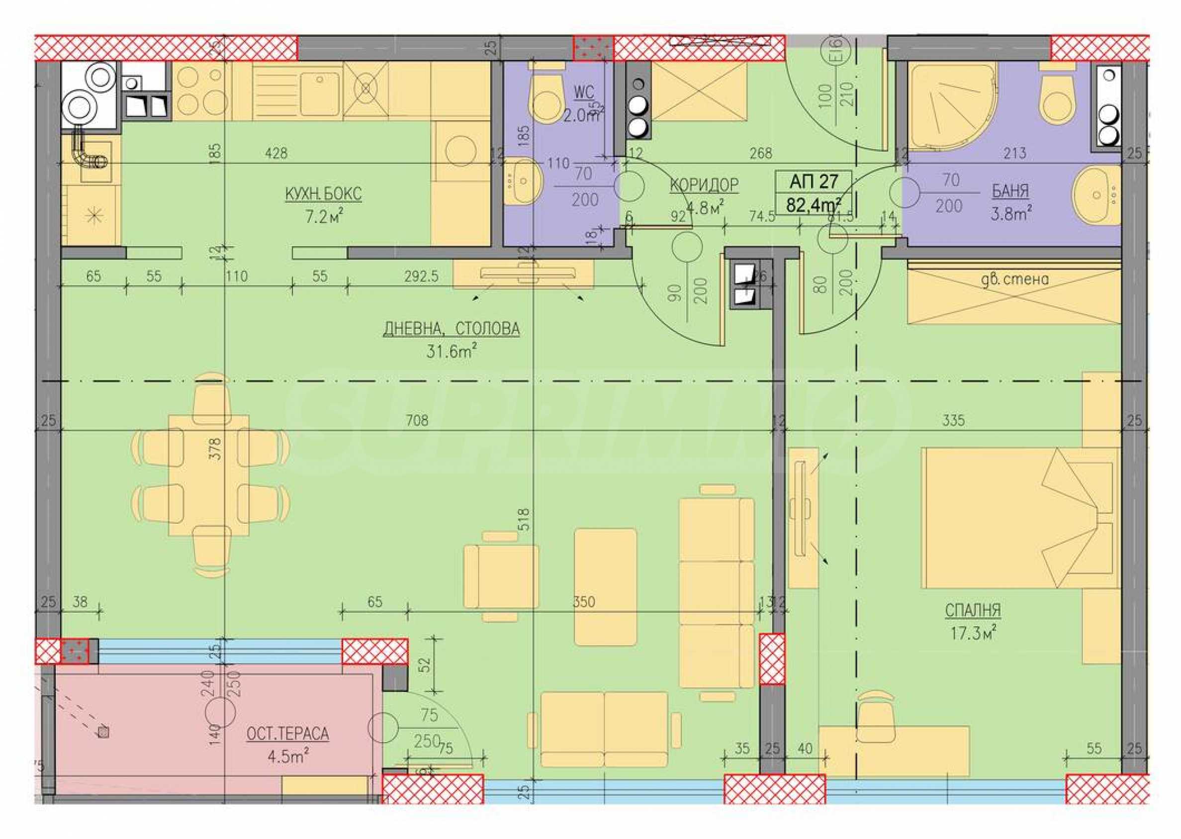
Przedmiotem oferty jest przestronne, dwupokojowe mieszkanie na dziewiątym piętrze o powierzchni całkowitej 98,04 m2 i następującym układzie: przedpokój, sypialnia, salon z jadalnią i aneksem kuchennym (31,6 m2), łazienka z wc i kabiną prysznicową, wc, przeszklony taras, piwnica.
Wizualizacje są wzorowe. Inwestor proponuje wzorcowe rozwiązania wnętrz, zwracając szczególną uwagę na detale, które stworzą poczucie ciepła w domu i radości z nowego domu. Doświadczeni projektanci i architekci firmy są gotowi udzielić wsparcia w zakresie pełnej realizacji przestrzennej każdego zindywidualizowanego obiektu.
Budynek posiada 11 pięter mieszkalnych na dwóch podziemnych kondygnacjach zamkniętych garaży. Obiekt położony jest 300 metrów od stacji metra Witosza i centrum handlowego Paradise Mall, w bliskim sąsiedztwie renomowanych placówek służby zdrowia i placówek edukacyjnych. Jest to obszar o wyjątkowo bogatym wachlarzu usług handlowych i dogodnych połączeniach komunikacyjnych.
Główne cechy projektu:
Schematy płatności:
Ogledziny nieruchomosci
Mozemy zorganizowac ogledziny nieruchomosci, w dogodnym dla Panstwa terminie. W tym celu prosimy o skontaktowanie sie z agentem odpowiedzialnym za te oferte.
Rezerwacja nieruchomosci
Nieruchomosc moze byc zarezerwowana i wycofana ze sprzedazy po wplaceniu zadatku, po czym ustaje ogladanie z innymi kupujacymi i rozpoczyna sie przygotowanie dokumentow do zawarcia umowy przedwstepnej i ostatecznej.
Prosimy o kontakt z agentem odpowiedzialnym za te nieruchomosc w celu uzyskania szczegolowych informacji dotyczacych procedury zakupu i metod platnosci.
Uslugi dodatkowe i obsluga posprzedazowa
Jestesmy sprawdzona firma o dobrej reputacji i wieloletnim doswiadczeniu. Dlatego bedziemy z Panstwem nie tylko w trakcie zakupu, ale takze po jego zakonczeniu, swiadczac na Panstwa zyczenie dodatkowe uslugi, aby w pelni i bezproblemowo korzystac z nowo zakupionej nieruchomosci. Uslugi, ktore mozemy zaoferowac, obejmuja uzyskanie zgody na kredyt hipoteczny z bulgarskiego banku, ubezpieczenia majatku ruchomego i nieruchomosci, ubezpieczenia na zycie, ubezpieczenia medyczne i samochodowe, prace budowlane i remontowe, meblowanie, uslugi prawne i ksiegowe itp.
Przybliżone położenie nieruchomości/kompleksu zaznaczono na mapie czerwonym znacznikiem.
Będziesz potrzebował aplikacji do odczytu plików .PDF. Jeśli nie masz takiej zainstalowanej, możesz ją pobrać Acrobat Reader stąd.
Konstrukcja: Konstrukcja przeciwtrzęsieniowa z betonu monolitycznego, murowana z cegły „Wienerberger” o grubości 25 cm i dodatkowych wymurówek, z izolacją akustyczną między mieszkaniami. Wewnętrzne ścianki działowe w mieszkaniach są dźwiękoszczelne, również z cegły "Wienerberger", wykończone białymi tynkami lateksowymi i wylewką.
Elewacja: Wentylowana okładzina elewacyjna z jasnego czystego wapienia vrachańskiego firmy Bulkam Decor, włoskiego granitu strukturalnego Nero Impala oraz kompletne ocieplenie z laminowanej wełny mineralnej o grubości 14 cm.
Okna: Profile aluminiowe najnowszej generacji Reynaers Masterline 8 Hi, potrójne przeszklenie Saint Gobain z przerwanym mostkiem termicznym i dwoma kolorami profili - RAL 7016 na zewnątrz i biały od wewnątrz, zrealizowane przez firmę Valda.
Drzwi wejściowe: Pancerne przeciwpożarowe MDF ze sterowaniem mechanicznym i elektronicznym. Segmentowe automatyczne bramy garażowe do wszystkich garaży, realizacja Logel.
Ogrzewanie, ciepła woda, gaz: Budynek w pełni wyposażony w wysokiej jakości instalację gazową. Instalacje są kompletne do wtyczek. W każdym mieszkaniu Rouvex instaluje osobny francuski kocioł gazowy De Dietrich i włoskie grzejniki Global. Zainstalowany jest również kompletny system z rewersyjnymi klimatyzatorami De Dietrich o odpowiedniej mocy. Przewiduje się również możliwość dodatkowej instalacji elektrycznego podgrzewacza wody.
Prądy silne i słabe: Kompletną instalację elektryczną wykonała firma ElCor z materiałów firm Schneider Electric i Legrand. Do każdego mieszkania doprowadzony jest kabel światłowodowy z możliwością podłączenia do wszystkich krajowych operatorów. Cyfrowy system domofonowy HiKVision to inteligentny system wideo z kolorowymi terminalami i automatycznym rozpoznawaniem. Zapewniony jest nadzór wideo i ochrona obwodowa. Centrala sygnalizacji pożaru należy do włoskiej firmy INIM.
Windy: Nowoczesne szybkie windy osobowe z cichym napędem elektrycznym wiodącego producenta "Schindler" - z silnikiem i kabiną z najnowszej gamy.
- Nieruchomości w dzielnica"Malinova Dolina"
- Nieruchomości w dzielnica"Krustova Vada"
- Nieruchomości w dzielnica"Manastirski Livadi - East"
- Nieruchomości w dzielnica"Boyana"
- Nieruchomości w dzielnica"Center"
- Nieruchomości w dzielnica"Vitosha"
- Nieruchomości w dzielnica"Dragalevtsi"
- Nieruchomości w dzielnica"Lozenets"
- Nieruchomości w dzielnica"Mladost 3"
- Nieruchomości w dzielnica"Manastirski Livadi - West"



ORIGINAL: