Liczba pięter w budynku
10
Piętro
9
pokoie
3
Sypialnie
2
Łazienki
2
Powierzchnia balkonów (tarasów)
5.22 m2
Balkony (tarasy) szt.:
1

Całkowita powierzchnia
101.67 m2
Powierzchnia zabudowana
84.70 m2
Części wspólne
16.97 m2
Taras
5.22 m2
Stan
W trakcie budowy
Planowane zakończenie
December 2026

Cena
Cena na zapytanie
Bez prowizji od kupującego
Zapytanie o więcej informacji lub oględziny
Pakiet informacyjny
Odległości
Ostatnieia aktualizacja
03.10.2025 r.
Odległości od nieruchomości do innych ważnych obiektów
- Centrum miasta: 7km
- Lotnisko Sofia (SOF): 5.8km
Widoki z nieruchomości
- Widoki na wewnętrzny ogród
Budowa
- Cegła
- Konstrukcja żelbetowa
Informacje administracyjne dotyczące oferty
- Elektryczność
- Komunalne dostarczanie wody
- izolacja ścian zewnętrznych
- Odwodnienie sieciowe
- Łazienka z toaletą
- Balkon
- Weranda
- Niedokończone wnętrze
- Luksusowe części wspólne
- Osiedle zamknięte
- Portier
- Siłownia
- Winda
- Ogród
- Zadbany ogród
Tekst został automatycznie przetłumaczony przez oprogramowanie i może zawierać nieścisłości.
Możesz zobaczyć tekst w oryginalnym języku lub przetłumaczyć na inne języki:
Oferujemy na sprzedaż przestronne, dwupokojowe mieszkanie w nowym kompleksie tuż przy The Mall w Sofii, w dzielnicy Poligona.
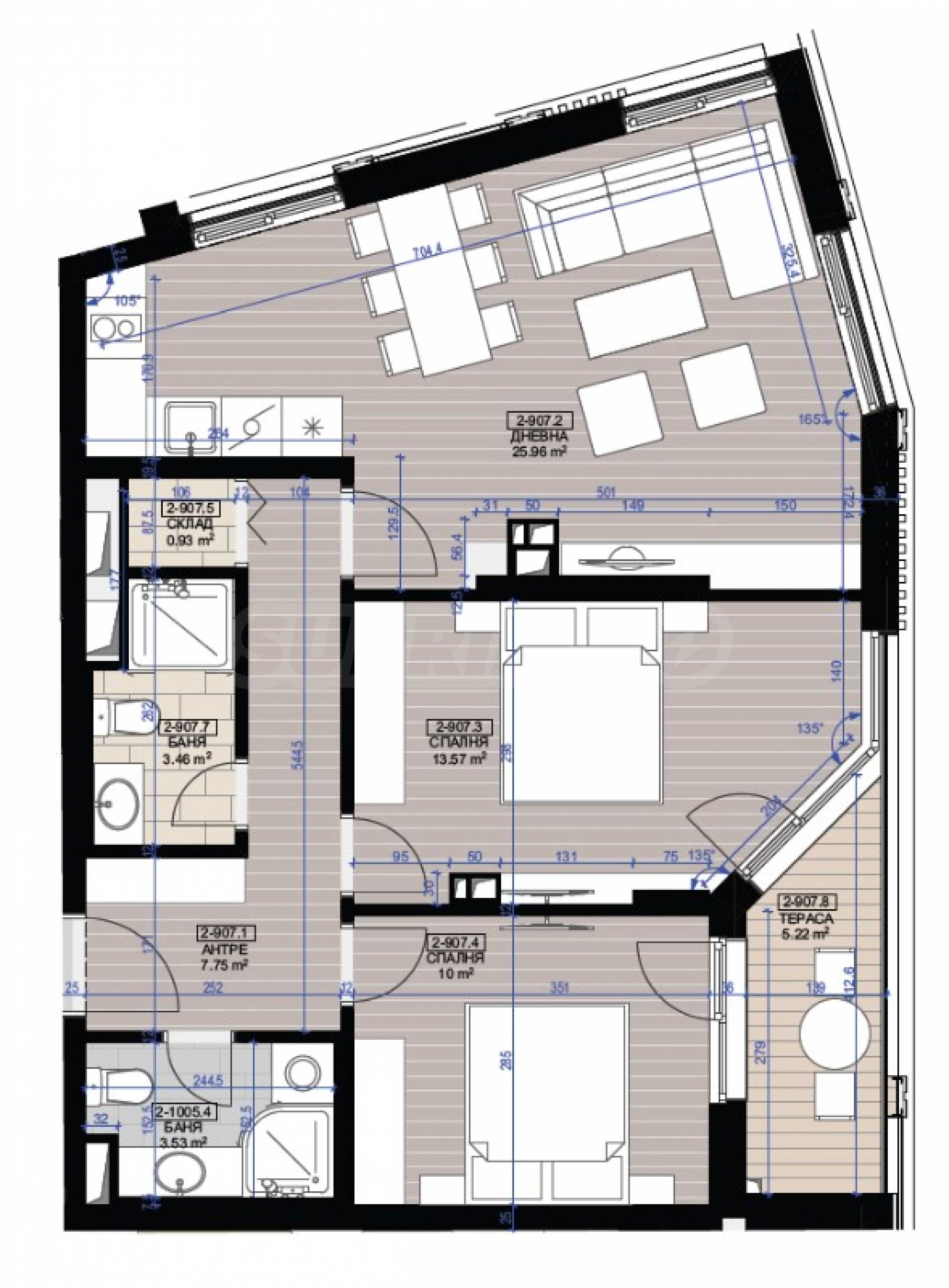
Nieruchomość położona jest na 9 piętrze i ma powierzchnię całkowitą 101,67 m2, z ekspozycją na północny wschód.
Mieszkanie jest sprzedawane w stanie ukończonym zgodnie z bułgarskimi standardami budowlanymi. Istnieje opcja wykończenia „pod klucz”, dla której opracowano dwie opcje projektowe.
*Cena oferty jest zgodna z Planem Płatności nr 3 i nie obejmuje podatku VAT. Skontaktuj się z odpowiedzialnym brokerem!
O budynku
Kompleks jest w budowie i ma zostać ukończony zgodnie z planem nr 16 w 2026 roku.
Zaprojektowany przez dwa 10-piętrowe budynki, z niezwykle nowoczesną wizją, ten kompleks oferuje koncepcję prawdziwie zielonego i aktywnego stylu życia. Pięknie zaprojektowane alejki, egzotyczna zieleń, tereny sportowe na świeżym powietrzu to tylko część ambicji zbudowania zielonej oazy w stolicy. Opiekę zdrowotną uzupełnia również własne centrum sportowe w budynku, z którego właściciele domów mogą swobodnie korzystać.
Lokalizacja
Znajduje się w dogodnej i strategicznej lokalizacji obok The Mall na Tsarigradsko Shose Blvd., z szybkim dojazdem w ciągu 5 minut samochodem do centrum miasta, lotniska w Sofii i z bezpośrednim połączeniem z autostradą Trakia. Lokalizacja sprawia, że jest nieporównywalna z idealną komunikacją w dynamice miasta. Gmina Sofia planuje również budowę stacji metra obok budynku.
Kompleks jest również atrakcyjny pod względem inwestycyjnym ze względu na bliskość Areny Armeets, Sofia Tech Park i wielu innych budynków biurowych w tej szybko rozwijającej się okolicy.
Pierwszorzędna konstrukcja
Budynki zostaną wybudowane według najnowocześniejszych standardów budowlanych, łącząc wyjątkowe materiały z energooszczędnymi rozwiązaniami i ekologicznymi technologiami, co zapewni niezrównany luksus i komfort.
Centralną rolę w wyjątkowym wnętrzu dużych przestrzeni wejściowych zajmuje zapierające dech w piersiach atrium na dwóch piętrach. Windy są inteligentne, szybkie i o dużej pojemności. Jako punkt odniesienia dla stylu i jakości wdrażają najnowsze osiągnięcia w tej dziedzinie.
Łącznie jest 240 apartamentów, dwu-, trzy- i wielopokojowych, o wygodnym układzie. Nieruchomości będą miały wspaniałe panoramiczne widoki z wyższych pięter i przytulne ogrody z apartamentów na parterze.
Ze względów bezpieczeństwa kompleks wyposażono w monitoring, automatyczną kontrolę dostępu i czujniki ruchu.
Skontaktuj się z nami i uzyskaj profesjonalną konsultację!
Ogledziny nieruchomosci
Mozemy zorganizowac ogledziny nieruchomosci, w dogodnym dla Panstwa terminie. W tym celu prosimy o skontaktowanie sie z agentem odpowiedzialnym za te oferte.
Rezerwacja nieruchomosci
Nieruchomosc moze byc zarezerwowana i wycofana ze sprzedazy po wplaceniu zadatku, po czym ustaje ogladanie z innymi kupujacymi i rozpoczyna sie przygotowanie dokumentow do zawarcia umowy przedwstepnej i ostatecznej.
Prosimy o kontakt z agentem odpowiedzialnym za te nieruchomosc w celu uzyskania szczegolowych informacji dotyczacych procedury zakupu i metod platnosci.
Uslugi dodatkowe i obsluga posprzedazowa
Jestesmy sprawdzona firma o dobrej reputacji i wieloletnim doswiadczeniu. Dlatego bedziemy z Panstwem nie tylko w trakcie zakupu, ale takze po jego zakonczeniu, swiadczac na Panstwa zyczenie dodatkowe uslugi, aby w pelni i bezproblemowo korzystac z nowo zakupionej nieruchomosci. Uslugi, ktore mozemy zaoferowac, obejmuja uzyskanie zgody na kredyt hipoteczny z bulgarskiego banku, ubezpieczenia majatku ruchomego i nieruchomosci, ubezpieczenia na zycie, ubezpieczenia medyczne i samochodowe, prace budowlane i remontowe, meblowanie, uslugi prawne i ksiegowe itp.
Nieruchomość położona jest na 9 piętrze i ma powierzchnię całkowitą 101,67 m2, z ekspozycją na północny wschód.
Mieszkanie jest sprzedawane w stanie ukończonym zgodnie z bułgarskimi standardami budowlanymi. Istnieje opcja wykończenia „pod klucz”, dla której opracowano dwie opcje projektowe.
*Cena oferty jest zgodna z Planem Płatności nr 3 i nie obejmuje podatku VAT. Skontaktuj się z odpowiedzialnym brokerem!
O budynku
Kompleks jest w budowie i ma zostać ukończony zgodnie z planem nr 16 w 2026 roku.
Zaprojektowany przez dwa 10-piętrowe budynki, z niezwykle nowoczesną wizją, ten kompleks oferuje koncepcję prawdziwie zielonego i aktywnego stylu życia. Pięknie zaprojektowane alejki, egzotyczna zieleń, tereny sportowe na świeżym powietrzu to tylko część ambicji zbudowania zielonej oazy w stolicy. Opiekę zdrowotną uzupełnia również własne centrum sportowe w budynku, z którego właściciele domów mogą swobodnie korzystać.
Lokalizacja
Znajduje się w dogodnej i strategicznej lokalizacji obok The Mall na Tsarigradsko Shose Blvd., z szybkim dojazdem w ciągu 5 minut samochodem do centrum miasta, lotniska w Sofii i z bezpośrednim połączeniem z autostradą Trakia. Lokalizacja sprawia, że jest nieporównywalna z idealną komunikacją w dynamice miasta. Gmina Sofia planuje również budowę stacji metra obok budynku.
Kompleks jest również atrakcyjny pod względem inwestycyjnym ze względu na bliskość Areny Armeets, Sofia Tech Park i wielu innych budynków biurowych w tej szybko rozwijającej się okolicy.
Pierwszorzędna konstrukcja
Budynki zostaną wybudowane według najnowocześniejszych standardów budowlanych, łącząc wyjątkowe materiały z energooszczędnymi rozwiązaniami i ekologicznymi technologiami, co zapewni niezrównany luksus i komfort.
Centralną rolę w wyjątkowym wnętrzu dużych przestrzeni wejściowych zajmuje zapierające dech w piersiach atrium na dwóch piętrach. Windy są inteligentne, szybkie i o dużej pojemności. Jako punkt odniesienia dla stylu i jakości wdrażają najnowsze osiągnięcia w tej dziedzinie.
Łącznie jest 240 apartamentów, dwu-, trzy- i wielopokojowych, o wygodnym układzie. Nieruchomości będą miały wspaniałe panoramiczne widoki z wyższych pięter i przytulne ogrody z apartamentów na parterze.
Ze względów bezpieczeństwa kompleks wyposażono w monitoring, automatyczną kontrolę dostępu i czujniki ruchu.
Skontaktuj się z nami i uzyskaj profesjonalną konsultację!
Ogledziny nieruchomosci
Mozemy zorganizowac ogledziny nieruchomosci, w dogodnym dla Panstwa terminie. W tym celu prosimy o skontaktowanie sie z agentem odpowiedzialnym za te oferte.
Rezerwacja nieruchomosci
Nieruchomosc moze byc zarezerwowana i wycofana ze sprzedazy po wplaceniu zadatku, po czym ustaje ogladanie z innymi kupujacymi i rozpoczyna sie przygotowanie dokumentow do zawarcia umowy przedwstepnej i ostatecznej.
Prosimy o kontakt z agentem odpowiedzialnym za te nieruchomosc w celu uzyskania szczegolowych informacji dotyczacych procedury zakupu i metod platnosci.
Uslugi dodatkowe i obsluga posprzedazowa
Jestesmy sprawdzona firma o dobrej reputacji i wieloletnim doswiadczeniu. Dlatego bedziemy z Panstwem nie tylko w trakcie zakupu, ale takze po jego zakonczeniu, swiadczac na Panstwa zyczenie dodatkowe uslugi, aby w pelni i bezproblemowo korzystac z nowo zakupionej nieruchomosci. Uslugi, ktore mozemy zaoferowac, obejmuja uzyskanie zgody na kredyt hipoteczny z bulgarskiego banku, ubezpieczenia majatku ruchomego i nieruchomosci, ubezpieczenia na zycie, ubezpieczenia medyczne i samochodowe, prace budowlane i remontowe, meblowanie, uslugi prawne i ksiegowe itp.
Zobacz tekst w innych językach (tłumaczenie automatyczne)
Lokalizacja (około)
Przybliżone położenie nieruchomości/kompleksu zaznaczono na mapie czerwonym znacznikiem.
Nasze top oferty do sprzedaz Sofia, Bulgaria
Nieruchomości według rejonu, Sofia
- Nieruchomości w dzielnica"Malinova Dolina"
- Nieruchomości w dzielnica"Krustova Vada"
- Nieruchomości w dzielnica"Manastirski Livadi - East"
- Nieruchomości w dzielnica"Boyana"
- Nieruchomości w dzielnica"Center"
- Nieruchomości w dzielnica"Vitosha"
- Nieruchomości w dzielnica"Dragalevtsi"
- Nieruchomości w dzielnica"Lozenets"
- Nieruchomości w dzielnica"Mladost 3"
- Nieruchomości w dzielnica"Manastirski Livadi - West"
Popularne wyszukiwania
wszystkie według wyszukiwania


ORIGINAL: