Liczba pięter w budynku
4
Piętro
4
Winda
tak
pokoie
3
Sypialnie
2
Łazienki
2
Powierzchnia balkonów (tarasów)
40.95 m2
Balkony (tarasy) szt.:
2

Całkowita powierzchnia
171.50 m2
Powierzchnia zabudowana
150.78 m2
Części wspólne
20.72 m2
Taras
40.95 m2
Stan
W trakcie budowy
Planowane zakończenie
March 2027

Cena
209 854 €
1 224 €/m2
Bez prowizji od kupującego
Zapytanie o więcej informacji lub oględziny
Pakiet informacyjny
Stan
unfinished internally
Umeblowanie
Ogrzewanie
Klimatyzacje
Klimatyzacja
Klimatyzator inwerterowy, Standardowy klimatyzator
Odległości
Ostatnieia aktualizacja
28.01.2026 r.
Odległości od nieruchomości do innych ważnych obiektów
- Centrum miasta: 3.8km
- Lotnisko Plovdiv (PDV): 16.7km
Widoki z nieruchomości
- Widoki na miasto
Budowa
- Cegła
- Konstrukcja żelbetowa
Ogrzewanie
- Klimatyzacje
Klimatyzacja
- Klimatyzator inwerterowy
- Standardowy klimatyzator
Informacje administracyjne dotyczące oferty
- Elektryczność
- Woda
- drzwi automatyczne
- izolacja ścian zewnętrznych
- izolacja dachu
- Kanalizacja komunalna
- luksusowe windy
- Odwodnienie sieciowe
- płaski dach
- płytki marmurowe
- płytki z kamienia naturalnego
- wentylowana elewacja
- Łazienka z toaletą
- Balkon
- Niedokończone wnętrze
- Ramy okienne PCV
- Winda
- Ogród
- Ogród z kwiatami
- Zadbany ogród
- W pobliżu sklepy spożywcze
Tekst został automatycznie przetłumaczony przez oprogramowanie i może zawierać nieścisłości.
Możesz zobaczyć tekst w oryginalnym języku lub przetłumaczyć na inne języki:
Prezentujemy mieszkanie trzypokojowe w nowym, luksusowym kompleksie mieszkalnym, na osiedlu. „Chrystus Smirnowski” z miasta Płowdiw. Doskonała i strategiczna lokalizacja z wygodnym i szybkim dostępem do głównych dróg, tuż obok Centrum Handlowego Plovdiv, Parku Rekreacji i Kultury oraz Bazy Wioślarskiej - jednego z charakterystycznych miejsc miasta, preferowanego do rekreacji, sportu i spacerów. W bezpośrednim sąsiedztwie znajdują się również różnego rodzaju restauracje, które zapewnią mieszkańcom przyjemność delektowania się kulinarnymi doznaniami i przytulną atmosferą.
BEZ PROWIZJI!
Kompleks składa się z przestronnych i jasnych mieszkań o zróżnicowanym przeznaczeniu, funkcjonalnym układzie i dobrej ekspozycji. Projekt obejmuje 52 apartamenty z jedną, dwiema i trzema sypialniami oraz apartamenty wielopokojowe, 15 garaży, 40 miejsc parkingowych i park ogrodowy. Niskie sekcje z 4-6 mieszkaniami na piętrze, a na parterze mieszkania mają własne podwórko/werandę.
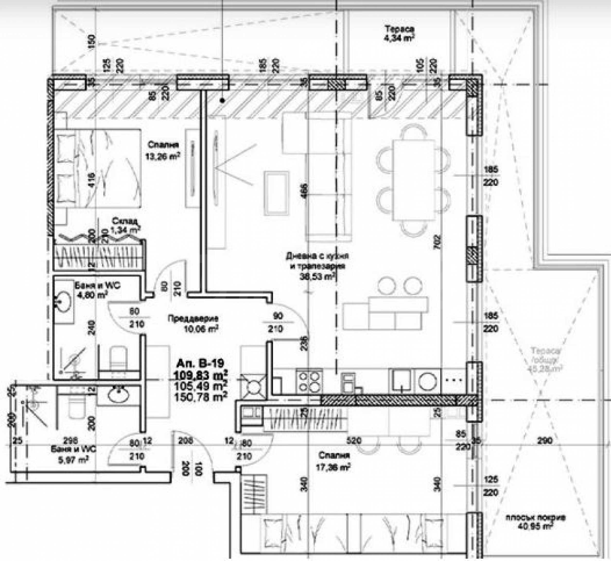
Nieruchomość o powierzchni całkowitej 171,50 mkw z tarasami o powierzchni 40,95 mkw położona jest na 4 piętrze z 4, od strony wschodnio-północnej.
Dystrybucja:
Każdy aspekt kompleksu jest dostosowany do nowoczesnego stylu życia młodego pokolenia i jego standardu idealnego domu, który łączy w sobie naturę z najnowocześniejszym komfortem. Życie tutaj jest zadbane, dzięki udogodnieniom najwyższej klasy - specjalnie dla mieszkańców kompleksu zdecydowano się na stworzenie lobby biznesowego o atrakcyjnym wystroju wnętrz, w pełni wyposażonego dla zapewnienia maksymalnego komfortu.
Realizacja techniczna odbywa się przy użyciu najwyższej jakości nowoczesnych systemów i materiałów, które są gwarancją energooszczędności, bezpieczeństwa, funkcjonalności, estetyki i komfortu:
Projekt jest dziełem sprawdzonego inwestora na rynku nieruchomości.
Więcej informacji uzyskasz, kontaktując się z nami.
BEZ PROWIZJI!
Kompleks składa się z przestronnych i jasnych mieszkań o zróżnicowanym przeznaczeniu, funkcjonalnym układzie i dobrej ekspozycji. Projekt obejmuje 52 apartamenty z jedną, dwiema i trzema sypialniami oraz apartamenty wielopokojowe, 15 garaży, 40 miejsc parkingowych i park ogrodowy. Niskie sekcje z 4-6 mieszkaniami na piętrze, a na parterze mieszkania mają własne podwórko/werandę.
Nieruchomość o powierzchni całkowitej 171,50 mkw z tarasami o powierzchni 40,95 mkw położona jest na 4 piętrze z 4, od strony wschodnio-północnej.
Dystrybucja:
- przestronny salon z jadalnią i aneksem kuchennym - 38,53 m2;
- dwie sypialnie - 17,36 m2 i 13,26 m2;
- hol wejściowy - 10,06 mkw;
- dwie łazienki z toaletami;
- dwa tarasy widokowe - 40,95 mkw;
- szafa/przechowalnia - 1,36 mkw.
- ściany i sufity - tynki gipsowe maszynowe, zaprawy cementowe;
- tarasy - płytki granitowe;
- zbudowałem instalację hydrauliczną aż do wtyczki;
- zamontowano wodomierze ze zdalnym odczytem;
- instalacja elektryczna z włącznikami i gniazdkami Legrand i Schneider, okablowanie internetowe i telewizyjne;
- Wysokiej klasy pancerne drzwi wejściowe z mechanicznym zamkiem, wysoką jakością wykończenia i eleganckim wyglądem.
Każdy aspekt kompleksu jest dostosowany do nowoczesnego stylu życia młodego pokolenia i jego standardu idealnego domu, który łączy w sobie naturę z najnowocześniejszym komfortem. Życie tutaj jest zadbane, dzięki udogodnieniom najwyższej klasy - specjalnie dla mieszkańców kompleksu zdecydowano się na stworzenie lobby biznesowego o atrakcyjnym wystroju wnętrz, w pełni wyposażonego dla zapewnienia maksymalnego komfortu.
Realizacja techniczna odbywa się przy użyciu najwyższej jakości nowoczesnych systemów i materiałów, które są gwarancją energooszczędności, bezpieczeństwa, funkcjonalności, estetyki i komfortu:
- konstrukcja żelbetowa monolityczna;
- Cegły ceramiczne firmy Wienerberger;
- elewacja - okładzina z kamienia naturalnego, tynk polimerowy Ceresit;
- balustrady kute zgodnie z projektem architektonicznym;
- izolacja termiczna - Baumit - 10 cm;
- Okna francuskie zapewniające optymalne oświetlenie naturalne, ze stolarką - Schüco, Niemcy - profil aluminiowy z potrójnymi szybami;
- hol wejściowy, podesty i klatki schodowe z posadzką z włoskiego granitu, podwieszany sufit z oświetleniem LED firmy PHILIPS;
- windy high-tech;
- Bramy garażowe i wjazdowe HÖRMANN;
- kontrolowany dostęp i całodobowy monitoring wideo.
Projekt jest dziełem sprawdzonego inwestora na rynku nieruchomości.
Więcej informacji uzyskasz, kontaktując się z nami.
Zobacz tekst w innych językach (tłumaczenie automatyczne)
Lokalizacja (około)
Przybliżone położenie nieruchomości/kompleksu zaznaczono na mapie czerwonym znacznikiem.
Nasze top oferty do sprzedaz Plovdiv, Bulgaria
Nieruchomości według rejonu, Plovdiv
- Nieruchomości w dzielnica"Hristo Smirnenski"
- Nieruchomości w dzielnica"Kurshiyaka"
- Nieruchomości w dzielnica"Ostromila"
- Nieruchomości w dzielnica"Belomorski"
- Nieruchomości w dzielnica"Center"
- Nieruchomości w dzielnica"Trakiya"
- Nieruchomości w dzielnica"Kyuchuk Parij"
- Nieruchomości w dzielnica"Kamenitsa 2"
- Nieruchomości w dzielnica"Kamenitsa 1"
- Nieruchomości w dzielnica"Gagarin"


ORIGINAL: