Liczba pięter w budynku
4
Piętro
1
Winda
tak
pokoie
3
Sypialnie
2
Łazienki
1
Balkony (tarasy) szt.:
1

Całkowita powierzchnia
77.70 m2
Powierzchnia zabudowana
67.80 m2
Części wspólne
9.90 m2

Cena
133 550 €
1 719 €/m2
Bez prowizji od kupującego
Zapytanie o więcej informacji lub oględziny
Pakiet informacyjny
Odległości
Ostatnieia aktualizacja
29.10.2025 r.
Odległości od nieruchomości do innych ważnych obiektów
- Lotnisko Burgas (BOJ): 43km
Widoki z nieruchomości
- Widoki na morze
Budowa
- Cegła
Informacje administracyjne dotyczące oferty
- Łazienka z toaletą
- Balkon
- Izolacja zewnętrzna
- Niedokończone wnętrze
- Ramy okienne PCV
- W pobliżu sklepy spożywcze
Tekst został automatycznie przetłumaczony przez oprogramowanie i może zawierać nieścisłości.
Możesz zobaczyć tekst w oryginalnym języku lub przetłumaczyć na inne języki:
Rozpoczęcie prac budowlanych - październik 2023
Budowa budynku - 2 lata.
Planowany Akt 14 - Sierpień 2024
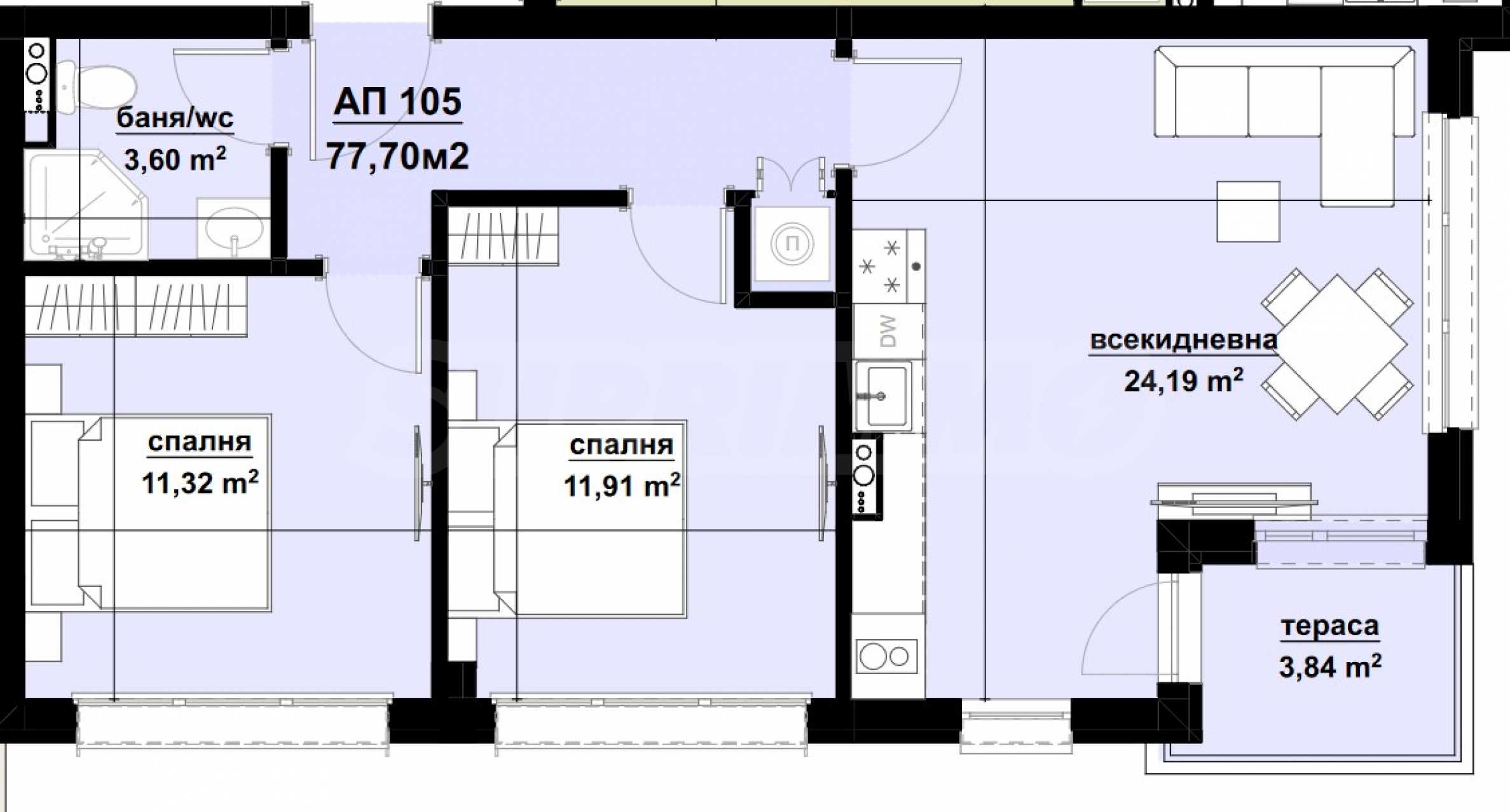
Oferujemy do sprzedaży nowe dwupokojowe mieszkanie o powierzchni 77,70 m2 w nowoczesnym budynku mieszkalnym w dogodnej lokalizacji w nowym mieście Sozopol, dzielnicy Misarya.
Nieruchomość położona jest na 1 piętrze z tarasem i pięknym widokiem na morze.
Dystrybucja:
Budowa odbywa się zgodnie z nowoczesnymi standardami, konstrukcja jest żelbetowa, z cegłą Wienerbergera. Elewacja ocieplona 10 cm, okna PCV 5-komorowe, w kolorze wg projektu, otwierane, szkło całoroczne - białe, bardzo energooszczędne. Dach posiada dwuwarstwową izolację przeciwwodną, ocieplenie 10 cm oraz zaprawę cementową.
Budynek posiada system kontroli dostępu oraz automatyczną bramę garażową dla parkingu podziemnego.
Przewiduje się wykonanie rozdzielni głównej z licznikami energii elektrycznej dwutaryfowymi dla każdej nieruchomości i zegarem wspólnym, kompletne wyposażenie, pełne zasilanie budynku. energia.
Zakończenie budowy mieszkań:
Aby dowiedzieć się, jaki rodzaj nieruchomości w tym budynku Cię interesuje, zadzwoń do brokera odpowiedzialnego za ofertę!
Ogledziny nieruchomosci
Mozemy zorganizowac ogledziny nieruchomosci, w dogodnym dla Panstwa terminie. W tym celu prosimy o skontaktowanie sie z agentem odpowiedzialnym za te oferte.
Rezerwacja nieruchomosci
Nieruchomosc moze byc zarezerwowana i wycofana ze sprzedazy po wplaceniu zadatku, po czym ustaje ogladanie z innymi kupujacymi i rozpoczyna sie przygotowanie dokumentow do zawarcia umowy przedwstepnej i ostatecznej.
Prosimy o kontakt z agentem odpowiedzialnym za te nieruchomosc w celu uzyskania szczegolowych informacji dotyczacych procedury zakupu i metod platnosci.
Uslugi dodatkowe i obsluga posprzedazowa
Jestesmy sprawdzona firma o dobrej reputacji i wieloletnim doswiadczeniu. Dlatego bedziemy z Panstwem nie tylko w trakcie zakupu, ale takze po jego zakonczeniu, swiadczac na Panstwa zyczenie dodatkowe uslugi, aby w pelni i bezproblemowo korzystac z nowo zakupionej nieruchomosci. Uslugi, ktore mozemy zaoferowac, obejmuja uzyskanie zgody na kredyt hipoteczny z bulgarskiego banku, ubezpieczenia majatku ruchomego i nieruchomosci, ubezpieczenia na zycie, ubezpieczenia medyczne i samochodowe, prace budowlane i remontowe, meblowanie, uslugi prawne i ksiegowe itp.
Budowa budynku - 2 lata.
Planowany Akt 14 - Sierpień 2024
Oferujemy do sprzedaży nowe dwupokojowe mieszkanie o powierzchni 77,70 m2 w nowoczesnym budynku mieszkalnym w dogodnej lokalizacji w nowym mieście Sozopol, dzielnicy Misarya.
Nieruchomość położona jest na 1 piętrze z tarasem i pięknym widokiem na morze.
Dystrybucja:
- korytarz;
- salon z kuchnią;
- sypialnia;
- druga sypialnia;
- łazienka z toaletą;
- taras.
Budowa odbywa się zgodnie z nowoczesnymi standardami, konstrukcja jest żelbetowa, z cegłą Wienerbergera. Elewacja ocieplona 10 cm, okna PCV 5-komorowe, w kolorze wg projektu, otwierane, szkło całoroczne - białe, bardzo energooszczędne. Dach posiada dwuwarstwową izolację przeciwwodną, ocieplenie 10 cm oraz zaprawę cementową.
Budynek posiada system kontroli dostępu oraz automatyczną bramę garażową dla parkingu podziemnego.
Przewiduje się wykonanie rozdzielni głównej z licznikami energii elektrycznej dwutaryfowymi dla każdej nieruchomości i zegarem wspólnym, kompletne wyposażenie, pełne zasilanie budynku. energia.
Zakończenie budowy mieszkań:
- korytarze, przejścia, pokoje - ściany tynkowane i drobno tynkowane;
- podłoga: na korytarzu, w aneksie kuchennym – wylewka;
- do jadalni i sypialni – wylewka; sufity: tynkowane, drobno tynkowane;
- w łazience – pod wylewkę, na ściany tynk cementowo-wapienny;
- wykonano ukrytą pionową i poziomą instalację wodno-kanalizacyjną z PCV oraz przyłącza wody zimnej i ciepłej „na kran”, wewnętrzną sieć kanalizacyjną, wykonano dwutaryfową instalację elektryczną. sieć typu „plug-in”;
- drzwi zewnętrzne – metalowe, z obramowaniem wybranym przez dewelopera;
- instalacje niskoprądowe do Internetu i telewizji kablowej, dzwonki do drzwi;
- wyloty i trasy rur do klimatyzatorów w jadalni;
- taras "pod klucz" - otynkowany z zamontowanymi balustradami szklanymi, podłoga - płytki granitowe, wykonane odwodnienie, zamontowane oświetlenie;
- Części wspólne wyłożono płytkami granitowymi.
Aby dowiedzieć się, jaki rodzaj nieruchomości w tym budynku Cię interesuje, zadzwoń do brokera odpowiedzialnego za ofertę!
Ogledziny nieruchomosci
Mozemy zorganizowac ogledziny nieruchomosci, w dogodnym dla Panstwa terminie. W tym celu prosimy o skontaktowanie sie z agentem odpowiedzialnym za te oferte.
Rezerwacja nieruchomosci
Nieruchomosc moze byc zarezerwowana i wycofana ze sprzedazy po wplaceniu zadatku, po czym ustaje ogladanie z innymi kupujacymi i rozpoczyna sie przygotowanie dokumentow do zawarcia umowy przedwstepnej i ostatecznej.
Prosimy o kontakt z agentem odpowiedzialnym za te nieruchomosc w celu uzyskania szczegolowych informacji dotyczacych procedury zakupu i metod platnosci.
Uslugi dodatkowe i obsluga posprzedazowa
Jestesmy sprawdzona firma o dobrej reputacji i wieloletnim doswiadczeniu. Dlatego bedziemy z Panstwem nie tylko w trakcie zakupu, ale takze po jego zakonczeniu, swiadczac na Panstwa zyczenie dodatkowe uslugi, aby w pelni i bezproblemowo korzystac z nowo zakupionej nieruchomosci. Uslugi, ktore mozemy zaoferowac, obejmuja uzyskanie zgody na kredyt hipoteczny z bulgarskiego banku, ubezpieczenia majatku ruchomego i nieruchomosci, ubezpieczenia na zycie, ubezpieczenia medyczne i samochodowe, prace budowlane i remontowe, meblowanie, uslugi prawne i ksiegowe itp.
Zobacz tekst w innych językach (tłumaczenie automatyczne)
Lokalizacja (około)
Przybliżone położenie nieruchomości/kompleksu zaznaczono na mapie czerwonym znacznikiem.
Nasze top oferty do sprzedaz Sozopol, Bulgaria


ORIGINAL: