REF#PLV-123734 / Apartament dwupokojowy / dzielnica Kamenitsa 1 / Plovdiv / Plowdiwskie wojewódstwo / Bulgaria / Sprzedaz Na mapie
Liczba pięter w budynku
5
Piętro
4
Piwnica
tak
Winda
tak
pokoie
2
Sypialnie
1
Łazienki
1
Powierzchnia balkonów (tarasów)
5.28 m2
Balkony (tarasy) szt.:
2

Całkowita powierzchnia
106.96 m2
Powierzchnia zabudowana
81.64 m2
Części wspólne
25.32 m2
Taras
5.28 m2

Cena
226 775 €
2 120 €/m2
Zapytanie o więcej informacji lub oględziny
Pakiet informacyjny
Stan
unfinished internally
Umeblowanie
Ogrzewanie
Klimatyzacje
Klimatyzacja
Klimatyzator inwerterowy
Odległości
Ostatnieia aktualizacja
09.10.2025 r.
Odległości od nieruchomości do innych ważnych obiektów
- Centrum miasta: 1.9km
- Lotnisko Plovdiv (PDV): 15.2km
Widoki z nieruchomości
- Widoki na miasto
Budowa
- Cegła
- Konstrukcja żelbetowa
Ogrzewanie
- Klimatyzacje
Klimatyzacja
- Klimatyzator inwerterowy
Informacje administracyjne dotyczące oferty
- Elektryczność
- Komunalne dostarczanie wody
- Komunalne dostarczanie wody i własne ujęcie wody
- Woda
- drzwi automatyczne
- izolacja ścian zewnętrznych
- izolacja dachu
- kamień naturalny
- Kanalizacja komunalna
- klejenie paneli aluminiowych
- luksusowe windy
- Odwodnienie sieciowe
- płaski dach
- wentylowana elewacja
- Łazienka z toaletą
- Balkon
- Miejsce parkingowe
- Piwnica
- Aluminiowe ramy okienne
- Izolacja zewnętrzna
- Niedokończone wnętrze
- Pancerne drzwi wejściowe
- Solidne ściany
- Luksusowe części wspólne
- Winda
- Internet
- Na drodze asfaltowej
- Telewizja kablowa
- Wi-Fi
- W budynku mieszkalnym
- W pobliżu sklepy spożywcze
Tekst został automatycznie przetłumaczony przez oprogramowanie i może zawierać nieścisłości.
Możesz zobaczyć tekst w oryginalnym języku lub przetłumaczyć na inne języki:
Prezentujemy nowe, dwupokojowe mieszkanie w centrum Płowdiwu. Doskonała lokalizacja, w odległości spaceru od Starego Miasta, Kapany i atrakcji miasta. To inteligentny wybór dla każdego, kto szuka domu lub nieruchomości w doskonałej lokalizacji, z dogodną infrastrukturą i dostępem do terenów zielonych.
Budynek ma ustawę 14, a ustawa 16 planowana jest na 2026 rok.
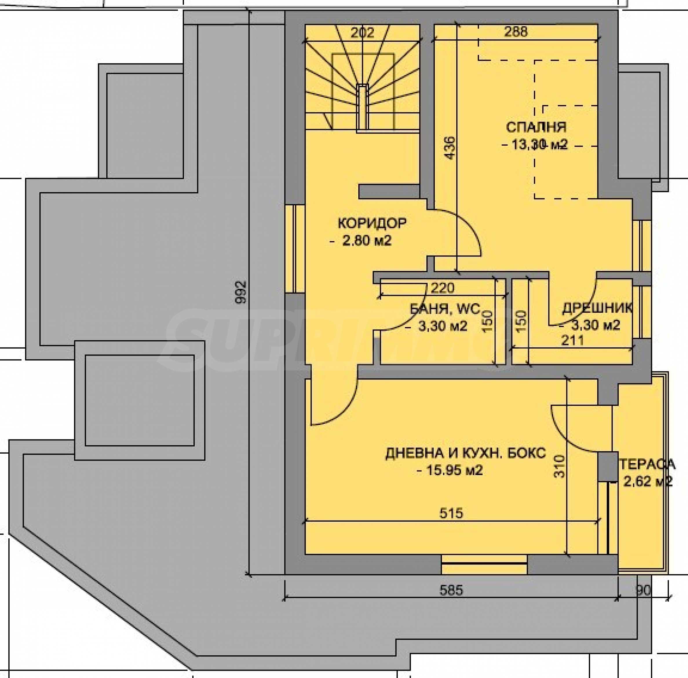
Nieruchomość o łącznej powierzchni 106,96 mkw. położona jest na 4. i 5. piętrze, od strony wschodniej i ma następujący rozkład:
Zalety:
Mieszkanie jest oddawane w stanie deweloperskim zgodnie z BDS, zgodnie z najwyższymi standardami i parametrami budowlanymi. Posadzka z jastrychu cementowego, ściany i sufity tynkowane maszynowo, instalacje elektryczne i wodno-kanalizacyjne, okablowanie, wysokiej jakości potrójne szyby. Elewacja budynku charakteryzuje się eleganckim wyglądem architektonicznym, spełniającym wymogi nowoczesnego designu i funkcjonalności. Budynek posiada windę i kontrolowany dostęp.
Aby uzyskać więcej informacji, prosimy o kontakt.
Ogledziny nieruchomosci
Mozemy zorganizowac ogledziny nieruchomosci, w dogodnym dla Panstwa terminie. W tym celu prosimy o skontaktowanie sie z agentem odpowiedzialnym za te oferte.
Rezerwacja nieruchomosci
Nieruchomosc moze byc zarezerwowana i wycofana ze sprzedazy po wplaceniu zadatku, po czym ustaje ogladanie z innymi kupujacymi i rozpoczyna sie przygotowanie dokumentow do zawarcia umowy przedwstepnej i ostatecznej.
Prosimy o kontakt z agentem odpowiedzialnym za te nieruchomosc w celu uzyskania szczegolowych informacji dotyczacych procedury zakupu i metod platnosci.
Uslugi dodatkowe i obsluga posprzedazowa
Jestesmy sprawdzona firma o dobrej reputacji i wieloletnim doswiadczeniu. Dlatego bedziemy z Panstwem nie tylko w trakcie zakupu, ale takze po jego zakonczeniu, swiadczac na Panstwa zyczenie dodatkowe uslugi, aby w pelni i bezproblemowo korzystac z nowo zakupionej nieruchomosci. Uslugi, ktore mozemy zaoferowac, obejmuja uzyskanie zgody na kredyt hipoteczny z bulgarskiego banku, ubezpieczenia majatku ruchomego i nieruchomosci, ubezpieczenia na zycie, ubezpieczenia medyczne i samochodowe, prace budowlane i remontowe, meblowanie, uslugi prawne i ksiegowe itp.
Budynek ma ustawę 14, a ustawa 16 planowana jest na 2026 rok.
Nieruchomość o łącznej powierzchni 106,96 mkw. położona jest na 4. i 5. piętrze, od strony wschodniej i ma następujący rozkład:
- piętro 4 - hol wejściowy, taras i klatka schodowa o łącznej powierzchni 21,72 mkw;
- drugi poziom, piętro 5 - hol wejściowy, salon z aneksem kuchennym, sypialnia, garderoba, łazienka i WC, taras o łącznej powierzchni 85,24 mkw;
Zalety:
- najlepsza lokalizacja w centrum miasta;
- nowoczesny budynek;
- Doskonała okazja na inwestycję lub własne mieszkanie.
Mieszkanie jest oddawane w stanie deweloperskim zgodnie z BDS, zgodnie z najwyższymi standardami i parametrami budowlanymi. Posadzka z jastrychu cementowego, ściany i sufity tynkowane maszynowo, instalacje elektryczne i wodno-kanalizacyjne, okablowanie, wysokiej jakości potrójne szyby. Elewacja budynku charakteryzuje się eleganckim wyglądem architektonicznym, spełniającym wymogi nowoczesnego designu i funkcjonalności. Budynek posiada windę i kontrolowany dostęp.
Aby uzyskać więcej informacji, prosimy o kontakt.
Ogledziny nieruchomosci
Mozemy zorganizowac ogledziny nieruchomosci, w dogodnym dla Panstwa terminie. W tym celu prosimy o skontaktowanie sie z agentem odpowiedzialnym za te oferte.
Rezerwacja nieruchomosci
Nieruchomosc moze byc zarezerwowana i wycofana ze sprzedazy po wplaceniu zadatku, po czym ustaje ogladanie z innymi kupujacymi i rozpoczyna sie przygotowanie dokumentow do zawarcia umowy przedwstepnej i ostatecznej.
Prosimy o kontakt z agentem odpowiedzialnym za te nieruchomosc w celu uzyskania szczegolowych informacji dotyczacych procedury zakupu i metod platnosci.
Uslugi dodatkowe i obsluga posprzedazowa
Jestesmy sprawdzona firma o dobrej reputacji i wieloletnim doswiadczeniu. Dlatego bedziemy z Panstwem nie tylko w trakcie zakupu, ale takze po jego zakonczeniu, swiadczac na Panstwa zyczenie dodatkowe uslugi, aby w pelni i bezproblemowo korzystac z nowo zakupionej nieruchomosci. Uslugi, ktore mozemy zaoferowac, obejmuja uzyskanie zgody na kredyt hipoteczny z bulgarskiego banku, ubezpieczenia majatku ruchomego i nieruchomosci, ubezpieczenia na zycie, ubezpieczenia medyczne i samochodowe, prace budowlane i remontowe, meblowanie, uslugi prawne i ksiegowe itp.
Zobacz tekst w innych językach (tłumaczenie automatyczne)
Lokalizacja (około)
Przybliżone położenie nieruchomości/kompleksu zaznaczono na mapie czerwonym znacznikiem.
Nasze top oferty do sprzedaz Plovdiv, Bulgaria
Nieruchomości według rejonu, Plovdiv
- Nieruchomości w dzielnica"Hristo Smirnenski"
- Nieruchomości w dzielnica"Kurshiyaka"
- Nieruchomości w dzielnica"Ostromila"
- Nieruchomości w dzielnica"Belomorski"
- Nieruchomości w dzielnica"Center"
- Nieruchomości w dzielnica"Trakiya"
- Nieruchomości w dzielnica"Kyuchuk Parij"
- Nieruchomości w dzielnica"Kamenitsa 2"
- Nieruchomości w dzielnica"Kamenitsa 1"
- Nieruchomości w dzielnica"Gagarin"


ORIGINAL: