
Lista cenowa
183 761 – 263 777 €
1 950 €/m2 – 2 150 €/m2
Bez prowizji od kupującego
Zapytanie o więcej informacji lub oględziny
Pakiet informacyjny
Stan
unfinished internally
Umeblowanie
Ogrzewanie
Ogrzewanie gazowe
Okna
Ramy okienne PCV
Odległości
Ostatnieia aktualizacja
30.12.2025 r.
Odległości od nieruchomości do innych ważnych obiektów
- Centrum miasta: 5.4km
- Lotnisko Sofia (SOF): 15km
Widoki z nieruchomości
- Widoki na miasto
Budowa
- Konstrukcja żelbetowa
Ogrzewanie
- Ogrzewanie gazowe
Informacje administracyjne dotyczące oferty
- Elektryczność
- Ogrzewanie na gaz
- Komunalne dostarczanie wody
- cegła
- izolacja ścian zewnętrznych
- płytki granitowe
- rendering mineralny
- Balkon
- Niedokończone wnętrze
- Pancerne drzwi wejściowe
- Potrójne przeszklenie
- Ramy okienne PCV
- Winda
Tekst został automatycznie przetłumaczony przez oprogramowanie i może zawierać nieścisłości.
Możesz zobaczyć tekst w oryginalnym języku lub przetłumaczyć na inne języki:
Prezentujemy na sprzedaż komfortowe mieszkania w nowoczesnym nowym budynku na osiedlu. „Krasna Polana 2”.
Brak prowizji od kupującego!
Budynek jest na etapie „surowej budowy”, którego zakończenie planowane jest na czerwiec 2026 roku.
Znajduje się w południowo-zachodniej części Sofii, w optymalnej odległości od nowej stacji metra „Ovcha Kupel”, co ułatwia dotarcie do niektórych najważniejszych uczelni, takich jak NBU i Uniwersytet w Sofii.
W pobliżu budynku znajdują się różne sieci supermarketów, siłownie, szpital MBAL Nadieżda, targ Rositsa, szkoły i przedszkola - PG w 123 SU „Stefan Stambolov”, 51 SDYA, DG #126 Tintyava, PG w 136 OU „Lyuben Karavelov” i PG 147 W pobliżu znajdują się także stadiony Septemvri i Slavia, West Park, Park St. Św. Piotr i Paweł, baza koni „Khan Asparuh”, karting Krasna Polana itp.
Okolica posiada dobrze rozwiniętą infrastrukturę komunikacyjną, obsługiwana jest przez wszystkie środki transportu publicznego: stację metra, tramwaje linii 4, 11, 22 oraz autobusy 11, 60 i 83.
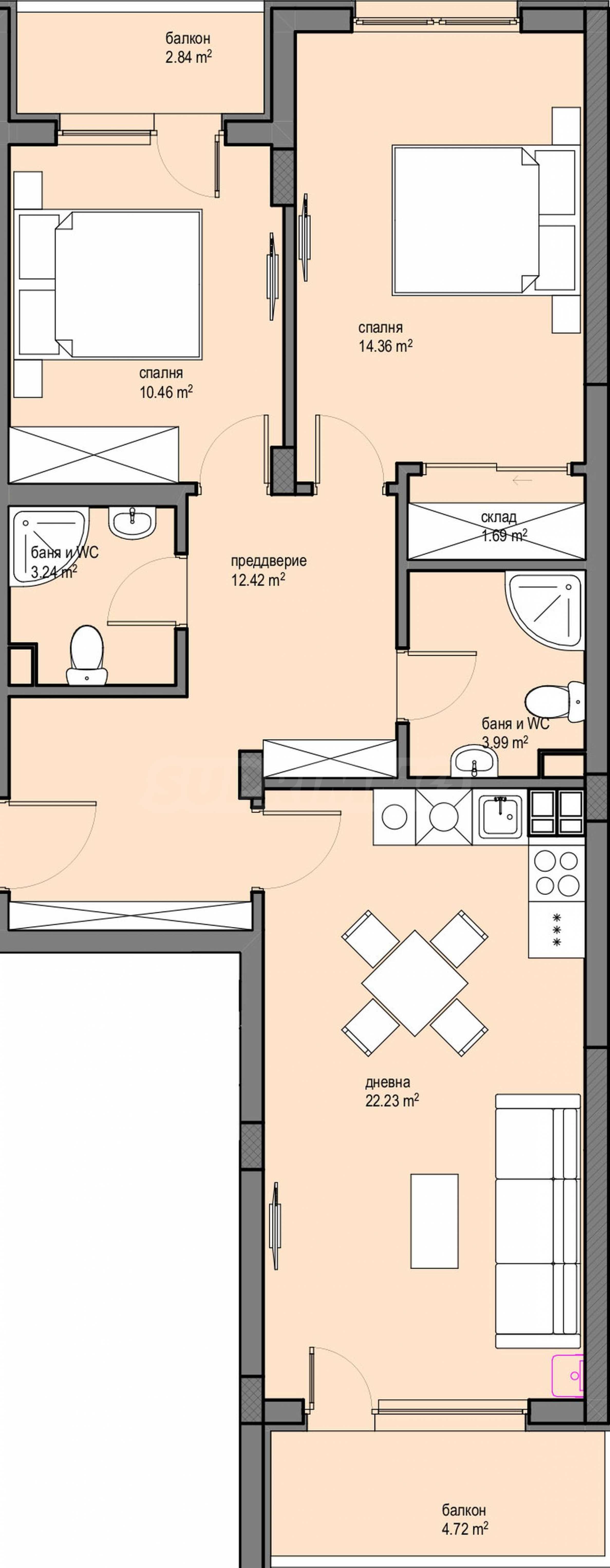
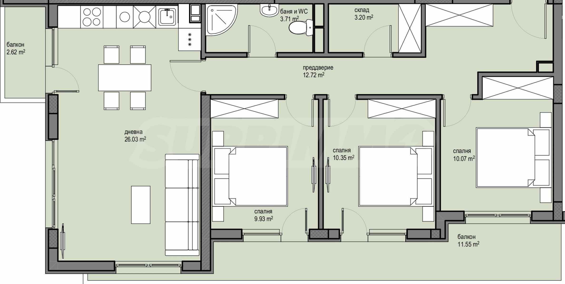
8-piętrowy budynek z 3 wejściami będzie miał atrakcyjną elewację klinkierową, oferując łącznie 131 mieszkań. mieszkania, gdyż dostępna na sprzedaż domy to ograniczona liczba nieruchomości trzy- i czteropokojowych, o funkcjonalnych układach i przestronnych pokojach.
Apartamenty wynajmowane są w stanie deweloperskim wg BDS:
Jeśli chcieliby Państwo umówić się na obejrzenie interesującej Państwa nieruchomości lub odwiedzić jedno z naszych biur, prosimy o kontakt. W celu umówienia dnia i godziny spotkania lub oględzin można zadzwonić pod podany w ogłoszeniu numer telefonu lub wysłać zapytanie e-mailem. Nasz konsultant pomoże Ci we wszystkich niezbędnych szczegółach i umówi dogodny dla Ciebie termin.
Szukasz odpowiedniej nieruchomości dla siebie?
Nie wahaj się z nami skontaktować i opowiedz nam o swoich potrzebach i preferencjach. Nasz zespół przeprowadzi dokładne badanie rynku, aby zaoferować Ci nieruchomości dokładnie spełniające Twoje kryteria. Posiadamy wyjątkowe portfolio wysokiej jakości i ekskluzywnych domów, które są dostępne tylko dla naszych klientów. Aby jako pierwszy otrzymać o nich informację - skontaktuj się z nami.
Dodatkowe usługi
Jako ceniony klient naszej firmy, będziesz mieć możliwość korzystania z usług naszego doświadczonego zespołu prawnego całkowicie bezpłatnie. Ponadto oferujemy kompleksowe rozwiązania obejmujące ubezpieczenie majątku, bezpłatne doradztwo finansowe, a także korzystne warunki finansowania. Nasze usługi obejmują również odsprzedaż, wynajem i zarządzanie nieruchomościami. Wysokiej jakości prace remontowe i umeblowanie realizujemy za pośrednictwem wyspecjalizowanych firm, które wchodzą w skład naszej grupy kapitałowej i są naszymi wieloletnimi, profesjonalnymi partnerami.
Brak prowizji od kupującego!
Budynek jest na etapie „surowej budowy”, którego zakończenie planowane jest na czerwiec 2026 roku.
Znajduje się w południowo-zachodniej części Sofii, w optymalnej odległości od nowej stacji metra „Ovcha Kupel”, co ułatwia dotarcie do niektórych najważniejszych uczelni, takich jak NBU i Uniwersytet w Sofii.
W pobliżu budynku znajdują się różne sieci supermarketów, siłownie, szpital MBAL Nadieżda, targ Rositsa, szkoły i przedszkola - PG w 123 SU „Stefan Stambolov”, 51 SDYA, DG #126 Tintyava, PG w 136 OU „Lyuben Karavelov” i PG 147 W pobliżu znajdują się także stadiony Septemvri i Slavia, West Park, Park St. Św. Piotr i Paweł, baza koni „Khan Asparuh”, karting Krasna Polana itp.
Okolica posiada dobrze rozwiniętą infrastrukturę komunikacyjną, obsługiwana jest przez wszystkie środki transportu publicznego: stację metra, tramwaje linii 4, 11, 22 oraz autobusy 11, 60 i 83.
8-piętrowy budynek z 3 wejściami będzie miał atrakcyjną elewację klinkierową, oferując łącznie 131 mieszkań. mieszkania, gdyż dostępna na sprzedaż domy to ograniczona liczba nieruchomości trzy- i czteropokojowych, o funkcjonalnych układach i przestronnych pokojach.
Apartamenty wynajmowane są w stanie deweloperskim wg BDS:
- Okna PCV o sześciokomorowym profilu niemieckim z potrójnym przeszkleniem, z jedną szybą niskoemisyjną;
- drzwi wejściowe do mieszkania - pancerne, z wysokiej klasy tajnym zamkiem;
- ogrzewanie - gazowe;
- wykończone ściany i sufity aż do tynków gipsowych z aluminiowymi narożnikami ułożonymi na krawędziach; stropy pomieszczeń nieogrzewanych sąsiadujących z ogrzewanymi, z ułożoną izolacją termiczną ze styropianu ekstrudowanego XPS; w łazienkach, toaletach i pomieszczeniach wilgotnych tynkiem wapienno-cementowym z wypełniaczem;
- jastrych cementowy na podłodze; tarasy z posadzką granitową;
- zainstalowany panel apartamentowy, umieszczony w pobliżu drzwi wejściowych mieszkania;
- instalacje niskoprądowe – wykonane według projektu z zamontowaną skrzynką niskoprądową przy drzwiach wejściowych;
- okablowanie dla SOT w każdym mieszkaniu;
- instalacja wideodomofonowa - wykonano okablowanie, wideodomofony w mieszkaniach oraz zamontowano panel wideodomofonowy przy drzwiach wejściowych;
- zamontowane liczniki energii elektrycznej.
- monolityczna, żelbetowa, bezbelkowa konstrukcja płyty fundamentowej;
- z hydroizolacją fundamentów budynku - system Kryton International Inc. System izolacji wodnej Krystol;
- murowanie z cegły ceramicznej firmy WIENERBERGER;
- ściany zewnętrzne obudowy - cegła ceramiczna Porotherm 25 cm i system ocieplenia /pianka EPS/;
- do wewnętrznych ścian ceglanych - cegła ceramiczna Porotherm 12 cm z izolacją akustyczną pomiędzy mieszkaniami;
- dach płaski z warstwami ułożonymi według detalu - paroizolacja, izolacja termiczna ze styropianu ekstrudowanego - XPS, jastrych zbrojony ze spadkiem, dwie warstwy hydroizolacji bitumicznej walcowanej; bez mostków termicznych na elementach konstrukcyjnych;
- części wspólne - granit lub kamień naturalny;
- windy z luksusowymi kabinami z automatycznymi drzwiami.
Jeśli chcieliby Państwo umówić się na obejrzenie interesującej Państwa nieruchomości lub odwiedzić jedno z naszych biur, prosimy o kontakt. W celu umówienia dnia i godziny spotkania lub oględzin można zadzwonić pod podany w ogłoszeniu numer telefonu lub wysłać zapytanie e-mailem. Nasz konsultant pomoże Ci we wszystkich niezbędnych szczegółach i umówi dogodny dla Ciebie termin.
Szukasz odpowiedniej nieruchomości dla siebie?
Nie wahaj się z nami skontaktować i opowiedz nam o swoich potrzebach i preferencjach. Nasz zespół przeprowadzi dokładne badanie rynku, aby zaoferować Ci nieruchomości dokładnie spełniające Twoje kryteria. Posiadamy wyjątkowe portfolio wysokiej jakości i ekskluzywnych domów, które są dostępne tylko dla naszych klientów. Aby jako pierwszy otrzymać o nich informację - skontaktuj się z nami.
Dodatkowe usługi
Jako ceniony klient naszej firmy, będziesz mieć możliwość korzystania z usług naszego doświadczonego zespołu prawnego całkowicie bezpłatnie. Ponadto oferujemy kompleksowe rozwiązania obejmujące ubezpieczenie majątku, bezpłatne doradztwo finansowe, a także korzystne warunki finansowania. Nasze usługi obejmują również odsprzedaż, wynajem i zarządzanie nieruchomościami. Wysokiej jakości prace remontowe i umeblowanie realizujemy za pośrednictwem wyspecjalizowanych firm, które wchodzą w skład naszej grupy kapitałowej i są naszymi wieloletnimi, profesjonalnymi partnerami.
Zobacz tekst w innych językach (tłumaczenie automatyczne)
Lokalizacja (około)
Przybliżone położenie nieruchomości/kompleksu zaznaczono na mapie czerwonym znacznikiem.
Nasze top oferty do sprzedaz Sofia, Bulgaria
Nieruchomości według rejonu, Sofia
- Nieruchomości w dzielnica"Malinova Dolina"
- Nieruchomości w dzielnica"Krustova Vada"
- Nieruchomości w dzielnica"Manastirski Livadi - East"
- Nieruchomości w dzielnica"Boyana"
- Nieruchomości w dzielnica"Center"
- Nieruchomości w dzielnica"Vitosha"
- Nieruchomości w dzielnica"Dragalevtsi"
- Nieruchomości w dzielnica"Lozenets"
- Nieruchomości w dzielnica"Mladost 3"
- Nieruchomości w dzielnica"Manastirski Livadi - West"
Popularne wyszukiwania
wszystkie według wyszukiwania



ORIGINAL: