AKT 14! Na sprzedaż mieszkanie czteropokojowe w nowo wybudowanym budynku przy placu Stochna Gara


Rodzaj nieruchomości
Trzypokojowy apartament

Lokalizacja
dzielnica Center / Sofia / Bulgaria

Liczba pięter w budynku
6

Piętro
6

Winda
tak

pokoie
4

Sypialnie
3

Łazienki
2


Całkowita powierzchnia
171.36 m2

Stan
W trakcie budowy

Planowane zakończenie
October 2026

Cena
 428 400 (bez VAT)
  2 500 €/m2 (bez VAT)

Bez prowizji od kupującego

Więcej cech nieruchomości

Zapytanie o więcej informacji lub oględziny

"Suprimmo" S.A. chroni Twoje dane osobowe i przestrzega firmowej Polityki ochrony danych osobowych, zgodnie z wymaganiami rozporządzenia (UE) nr 2016/679. W kolejnym kroku, będziesz mógł wyrazić zgodę lub odmówić nam przechowywania i przetwarzania swoich danych osobowych. Prosimy o dokonanie wyboru z wiadomości e-mail, którą wyślemy po otrzymaniu zapytania.

Pakiet informacyjny

Stan
unfinished internally

Ogrzewanie
Centralne ogrzewanie

Odległości
1km 15km 900m

Ostatnieia aktualizacja
14.04.2026 r.

 
 

Odległości od nieruchomości do innych ważnych obiektów
  • Centrum miasta: 1km
  • Lotnisko Sofia (SOF): 15km
  • Sklep spożywczy: 400m
  • Przystanek: 300m
  • Szpital: 200m
  • Szkoła: 1km
Budowa
  • Cegła
Ogrzewanie
  • Centralne ogrzewanie
Informacje administracyjne dotyczące oferty
  • Elektryczność
  • Komunalne dostarczanie wody
  • Woda
  • drzwi automatyczne
  • Kanalizacja komunalna
  • luksusowe windy
  • Odwodnienie sieciowe

Tekst został automatycznie przetłumaczony przez oprogramowanie i może zawierać nieścisłości.
Możesz zobaczyć tekst w oryginalnym języku lub przetłumaczyć na inne języki:
Tekst został automatycznie przetłumaczony przez oprogramowanie

Prezentujemy Państwu nowo wybudowany, sześciopiętrowy budynek mieszkalny z etapu ACT 14, położony zaledwie kilka metrów od placu Stochna Gara, oferujący wyjątkową okazję do zamieszkania lub inwestycji w centrum Sofii. Lokalizacja zapewnia dogodny dostęp do kluczowych punktów miasta i lotniska.

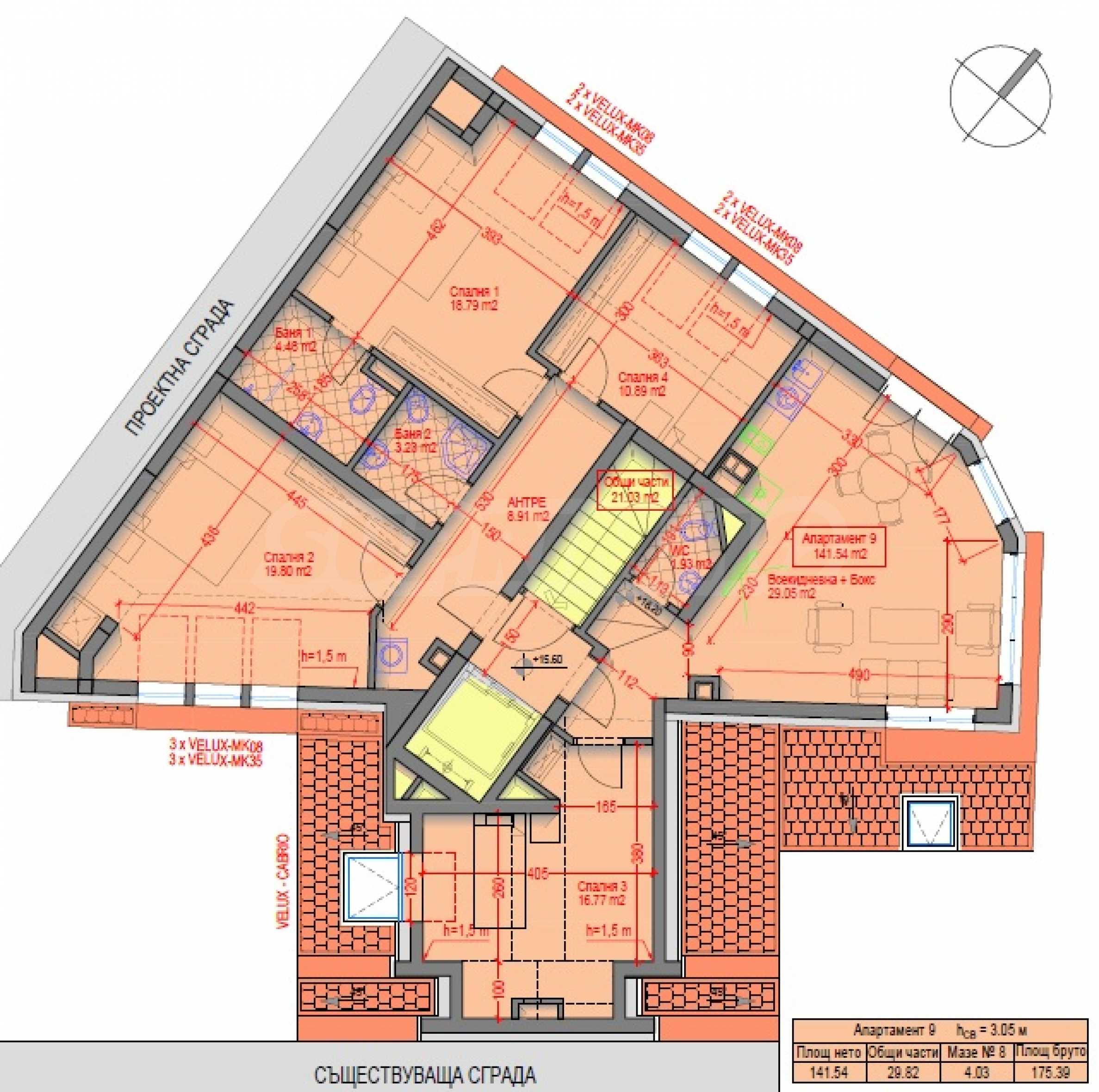
Przedmiotem oferty jest czteropokojowy lokal nr 9, położony na szóstym piętrze, o powierzchni 171,36 m2 i następującym układzie - przedpokój, salon z aneksem kuchennym, trzy sypialnie, dwie łazienki z WC oraz taras.

Główne cechy:
  • Liczba pięter: 6 pięter;
  • Łączna liczba mieszkań: 9;
  • Dostępne apartamenty: 4;
  • Ogrzewanie elektrowni cieplnych;
  • Powierzchnia najmniejszego dostępnego mieszkania: 95,02 mkw.;
  • Powierzchnia największego dostępnego mieszkania: 171,36 mkw.;
  • Najniższa cena: 228 048 € (bez VAT);
  • Najwyższa cena: 411 264 € (bez VAT);
  • Całkowita powierzchnia zabudowana (GFA): 1030 m2;
  • Oczekiwany Akt 16: październik 2026 r.

    Plan płatności:
  • 60% po podpisaniu umowy przedwstępnej;
  • 30% dla Ustawy 15;
  • 10% dla Ustawy 16.
    lub korzystając z indywidualnego systemu płatności

    Główne zalety lokalizacji:
  • Centralna lokalizacja: Obiekt położony jest w pobliżu idealnego centrum Sofii, z łatwym dostępem do budynków administracyjnych, banków, sklepów i restauracji.
  • Połączenia komunikacyjne: Zaledwie kilka minut spacerem od przystanków komunikacji miejskiej (tramwaje, autobusy) i dogodny dostęp do stacji metra.
  • Odległości:
  • 1,5 km od idealnego centrum miasta (Plac Aleksandra Battenberga).
  • Około 10 km od lotniska w Sofii, dojazd samochodem zajmuje około 20 minut.
  • Infrastruktura: Bliskość głównych bulwarów, takich jak Dondukov Blvd. i Vasil Levski Blvd., które zapewniają łatwy dostęp do reszty miasta.
  • Środowisko kulturowe: Obszar ten otoczony jest zabytkami, takimi jak Katedra św. Aleksandra Newskiego, Zgromadzenie Narodowe i Uniwersytet Sofijski, które znajdują się w niewielkiej odległości.

    To projekt o strategicznej lokalizacji i ograniczonej liczbie mieszkań, który zapewnia możliwość komfortowego i nowoczesnego życia w centrum miasta. Skontaktuj się z nami, aby uzyskać więcej informacji lub umówić się na oglądanie.

    Czekamy na Państwa zapytanie.

    Jeśli chcesz umówić się na obejrzenie interesującej Cię nieruchomości lub odwiedzić jedno z naszych biur, skontaktuj się z nami. Aby umówić się na spotkanie lub oględziny, zadzwoń pod numer telefonu podany w ogłoszeniu lub wyślij zapytanie e-mailem. Nasz konsultant pomoże Ci w ustaleniu wszystkich niezbędnych szczegółów i ustali dogodny termin.

    Szukasz odpowiedniej nieruchomości dla siebie?

    Skontaktuj się z nami i opowiedz nam o swoich potrzebach i preferencjach. Nasz zespół przeprowadzi dogłębną analizę rynku, aby zaoferować Ci nieruchomości idealnie odpowiadające Twoim kryteriom. Posiadamy wyjątkowe portfolio wysokiej jakości, ekskluzywnych domów, dostępnych wyłącznie dla naszych klientów. Aby być pierwszym, który otrzyma o nich informacje – skontaktuj się z nami.

    Usługi dodatkowe

    Jako ceniony klient naszej firmy, będziesz miał przywilej korzystania z usług naszego doświadczonego zespołu prawnego całkowicie bezpłatnie. Ponadto oferujemy kompleksowe rozwiązania, w tym ubezpieczenie nieruchomości, bezpłatne doradztwo finansowe, a także korzystne warunki finansowania. Nasze usługi obejmują również odsprzedaż, wynajem i zarządzanie nieruchomościami. Zapewniamy wysokiej jakości remonty i wyposażenie wnętrz za pośrednictwem wyspecjalizowanych firm wchodzących w skład naszej grupy kapitałowej i będących naszymi wieloletnimi partnerami.














    Ogledziny nieruchomosci
    Mozemy zorganizowac ogledziny nieruchomosci, w dogodnym dla Panstwa terminie. W tym celu prosimy o skontaktowanie sie z agentem odpowiedzialnym za te oferte.

    Rezerwacja nieruchomosci
    Nieruchomosc moze byc zarezerwowana i wycofana ze sprzedazy po wplaceniu zadatku, po czym ustaje ogladanie z innymi kupujacymi i rozpoczyna sie przygotowanie dokumentow do zawarcia umowy przedwstepnej i ostatecznej.
    Prosimy o kontakt z agentem odpowiedzialnym za te nieruchomosc w celu uzyskania szczegolowych informacji dotyczacych procedury zakupu i metod platnosci.

    Uslugi dodatkowe i obsluga posprzedazowa
    Jestesmy sprawdzona firma o dobrej reputacji i wieloletnim doswiadczeniu. Dlatego bedziemy z Panstwem nie tylko w trakcie zakupu, ale takze po jego zakonczeniu, swiadczac na Panstwa zyczenie dodatkowe uslugi, aby w pelni i bezproblemowo korzystac z nowo zakupionej nieruchomosci. Uslugi, ktore mozemy zaoferowac, obejmuja uzyskanie zgody na kredyt hipoteczny z bulgarskiego banku, ubezpieczenia majatku ruchomego i nieruchomosci, ubezpieczenia na zycie, ubezpieczenia medyczne i samochodowe, prace budowlane i remontowe, meblowanie, uslugi prawne i ksiegowe itp.
  • Zobacz tekst w innych językach (tłumaczenie automatyczne) Tłumaczenie w innych językach
    Lokalizacja
    (około)

    Przybliżone położenie nieruchomości/kompleksu zaznaczono na mapie czerwonym znacznikiem.

    Nasze top oferty do sprzedaz Sofia, Bulgaria Top oferty Sofia, Bulgaria
    Zapisałeś tę nieruchomość lub wybór na swojej liście „Ulubione nieruchomości”.
    Usunąłeś tę nieruchomość lub wybór z listy "Ulubione nieruchomości "
    Warunki finansowe dla kupującego, dotyczące zawarcia transakcji do tej nieruchomości