Liczba pięter w budynku
14
Piętro
2
Winda
tak
pokoie
2
Sypialnie
1
Łazienki
1

Całkowita powierzchnia
125.67 m2
Powierzchnia zabudowana
106.57 m2
Części wspólne
19.10 m2
Stan
W trakcie budowy
Planowane zakończenie
2027

Cena
295 325 €
2 350 €/m2
Bez prowizji od kupującego
Zapytanie o więcej informacji lub oględziny
Pakiet informacyjny
Stan
unfinished internally
Umeblowanie
Ogrzewanie
Klimatyzacje
Klimatyzacja
System klimatyzacji
Odległości
Ostatnieia aktualizacja
30.01.2026 r.
Odległości od nieruchomości do innych ważnych obiektów
- Sklep spożywczy: 100m
- Przystanek: 200m
- Szpital: 250m
Widoki z nieruchomości
- Widoki na góry
- Widoki na miasto
Budowa
- Cegła
- Konstrukcja żelbetowa
Ogrzewanie
- Klimatyzacje
Klimatyzacja
- System klimatyzacji
Informacje administracyjne dotyczące oferty
- Elektryczność
- dekoracyjne elementy elewacji
- drzwi automatyczne
- izolacja ścian zewnętrznych
- luksusowe windy
- Odwodnienie sieciowe
- Miejsce parkingowe
- Parking na zewnątrz
- Ceglane ściany
- Izolacja zewnętrzna
- Niedokończone wnętrze
- Pancerne drzwi wejściowe
- Potrójne przeszklenie
- Stolarka aluminiowa
- Luksusowe części wspólne
- Winda
- Ogród
- W budynku mieszkalnym
- W pobliżu sklepy spożywcze
Tekst został automatycznie przetłumaczony przez oprogramowanie i może zawierać nieścisłości.
Możesz zobaczyć tekst w oryginalnym języku lub przetłumaczyć na inne języki:
Oferujemy mieszkanie z jedną sypialnią w nowym, ekskluzywnym budynku, położonym w pobliżu centrum handlowego Sofia Mall, przystanków autobusowych i stacji metra „Konstantin Velichkov”. W okolicy znajdują się przedszkole, kościół, parki, sklep spożywczy, restauracje i inne udogodnienia.
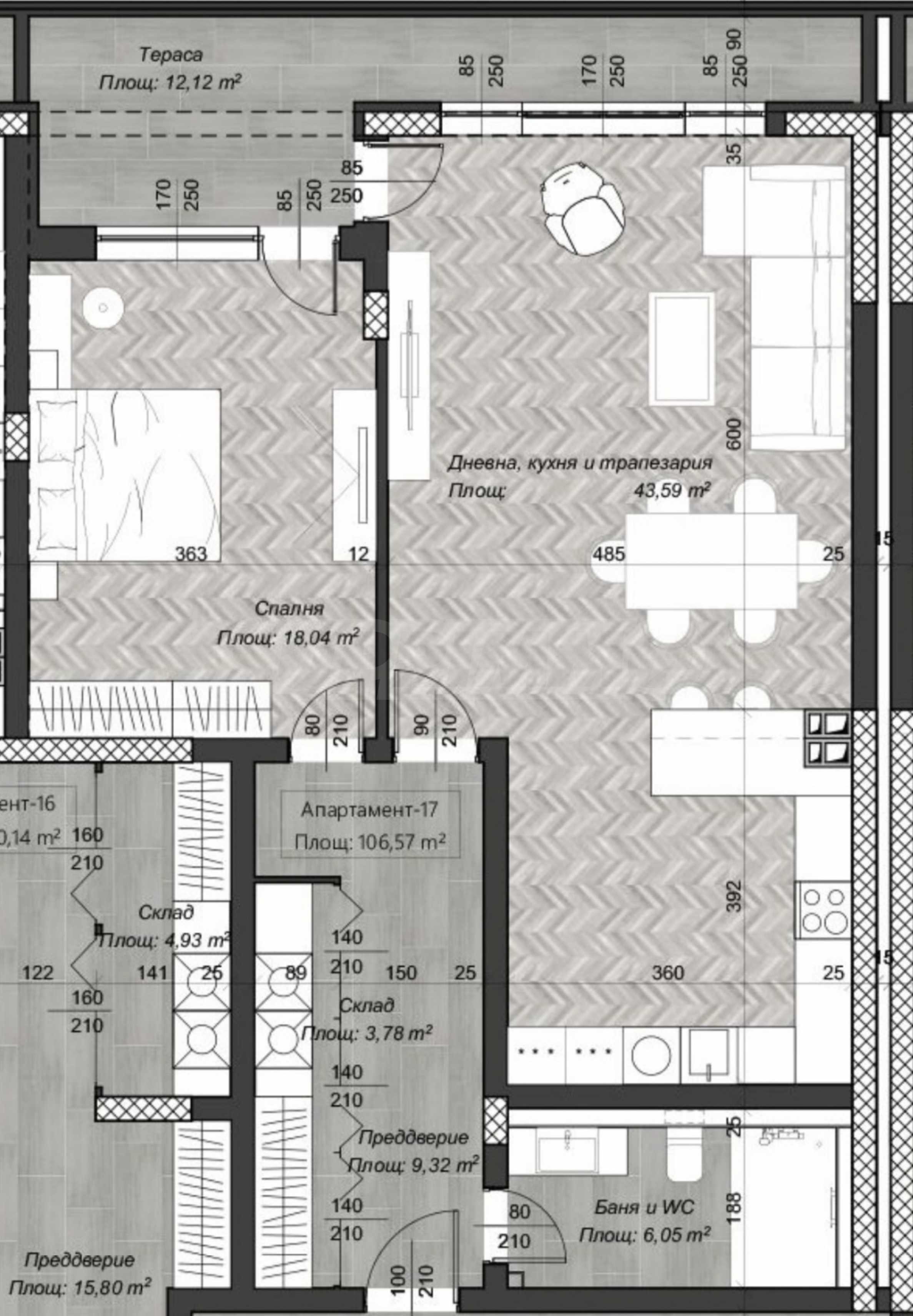
Apartament ma powierzchnię całkowitą 125,67 mkw. m2 (powierzchnia zabudowana 106,57 m2 i powierzchnie wspólne 19,10 m2).
Ekspozycja - wschód.
Dystrybucja:
• hol wejściowy;
• salon;
• łazienka z toaletą;
• sypialnia.
Mieszkanie jest oddawane w stanie wykończonym zgodnie z bułgarskimi normami budowlanymi, z tynkiem i wylewką. Dostępna jest opcja wykończenia pod klucz.
O budynku
Fasada budynku ma czyste kształty i elementy dekoracyjne, które podkreślają bryłę. Z budynku roztacza się malowniczy widok na góry i pomnik-świątynię „Św. Aleksandra Newskiego”. Zaplanowano budowę bogato zagospodarowanego tarasu na dachu, dostępnego dla publiczności. Luksusowe wykończenie części wspólnych z ochroną, na parterze przewidziano pomieszczenia handlowe.
W budynku znajdują się apartamenty dwu-, trzy- i czteropokojowe.
Na parterze znajduje się 18 lokali mieszkalnych. przykryte i 6 szt. otwarte miejsca parkingowe.
Klatki schodowe są oddzielone od przedziału pasażerskiego drzwiami przeciwpożarowymi. W holu wejściowym znajdują się wydzielone części wspólne oraz pomieszczenia ochrony. Zaplanowano wprowadzenie zautomatyzowanego systemu kontroli dostępu. Na tym poziomie zaplanowano również zaplecze techniczne i magazynowe.
Na piętrach od 3 do 13 znajduje się 69 mieszkań o zróżnicowanym typie i powierzchni.
Na najwyższym, 14. piętrze znajduje się wielopokojowy apartament z prywatnym tarasem na dachu, z którego roztacza się panoramiczny widok na miasto.
Dane techniczne:
• Konstrukcja żelbetowa monolityczna;
• Przeszklenia fasadowe zapewniają maksymalne naturalne oświetlenie każdej przestrzeni mieszkalnej;
• Niemiecki profil aluminiowy z potrójnym przeszkleniem Schüco;
• Mur z cegły ceramicznej o grubości 25 cm i 12 cm firmy Wienerberger;
• Ścianki wewnętrzne i obudowy instalacji w pomieszczeniach sanitarnych wykonane są z płyt gipsowo-kartonowych;
• Tarasy wyposażone są w balustrady ażurowe i pełne o wysokości min. 120 cm od gotowej podłogi;
• Przestrzenie wejściowe zaznaczono dekoracyjną ramą z okładziną kamienną;
• Parter ma wykończenie etalbondem, które naturalnie przechodzi poprzez ozdobne elementy ochrony przeciwsłonecznej na wysokości aż do ozdobnego profilu, który obramowuje przestrzeń publiczną;
• Tynki zewnętrzne – poziome jasne – na krawędziach tarasów i balustrad; ciemny kolor – na całej wewnętrznej elewacji;
• Ciemny lacobel – który dodatkowo podkreśla linie pionowe;
• Kratki dekoracyjne;
• Barierka ochronna wykonana z materiału kompozytowego o wysokości min. 120 cm od gotowej podłogi.
Parking:
• Parking podziemny: 38 miejsc parkingowych znajduje się w piwnicy. miejsca parkingowe. Zaplanowano montaż zautomatyzowanego systemu dostępu ze zdalnym sterowaniem. Klatki schodowe są oddzielone od przedziału pasażerskiego drzwiami przeciwpożarowymi. Na tym poziomie zaplanowano zaplecze techniczne i magazynowe.
• Parking naziemny: dysponuje 26 miejscami parkingowymi. miejsca parkingowe, do których można dojechać dwupasmową wewnętrzną rampą.
• Parter: znajduje się tam 18 lokali mieszkalnych. w opakowaniu zbiorczym 7 szt. otwarte miejsca parkingowe.
Plan budowy:
Okres realizacji - 36 miesięcy.
Schematy płatności:
Możliwe są różne formy płatności po negocjacjach.
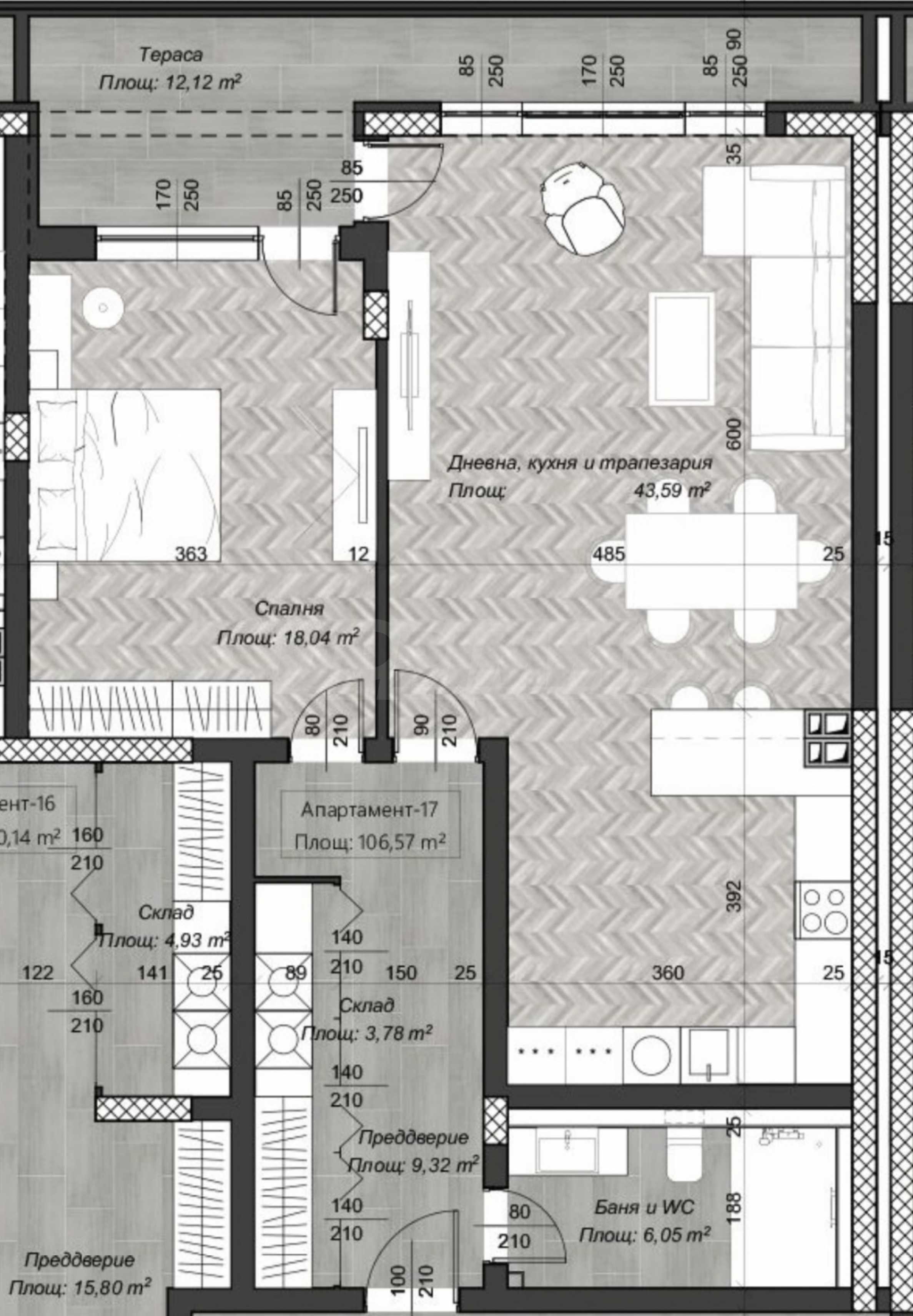
Apartament ma powierzchnię całkowitą 125,67 mkw. m2 (powierzchnia zabudowana 106,57 m2 i powierzchnie wspólne 19,10 m2).
Ekspozycja - wschód.
Dystrybucja:
• hol wejściowy;
• salon;
• łazienka z toaletą;
• sypialnia.
Mieszkanie jest oddawane w stanie wykończonym zgodnie z bułgarskimi normami budowlanymi, z tynkiem i wylewką. Dostępna jest opcja wykończenia pod klucz.
O budynku
Fasada budynku ma czyste kształty i elementy dekoracyjne, które podkreślają bryłę. Z budynku roztacza się malowniczy widok na góry i pomnik-świątynię „Św. Aleksandra Newskiego”. Zaplanowano budowę bogato zagospodarowanego tarasu na dachu, dostępnego dla publiczności. Luksusowe wykończenie części wspólnych z ochroną, na parterze przewidziano pomieszczenia handlowe.
W budynku znajdują się apartamenty dwu-, trzy- i czteropokojowe.
Na parterze znajduje się 18 lokali mieszkalnych. przykryte i 6 szt. otwarte miejsca parkingowe.
Klatki schodowe są oddzielone od przedziału pasażerskiego drzwiami przeciwpożarowymi. W holu wejściowym znajdują się wydzielone części wspólne oraz pomieszczenia ochrony. Zaplanowano wprowadzenie zautomatyzowanego systemu kontroli dostępu. Na tym poziomie zaplanowano również zaplecze techniczne i magazynowe.
Na piętrach od 3 do 13 znajduje się 69 mieszkań o zróżnicowanym typie i powierzchni.
Na najwyższym, 14. piętrze znajduje się wielopokojowy apartament z prywatnym tarasem na dachu, z którego roztacza się panoramiczny widok na miasto.
Dane techniczne:
• Konstrukcja żelbetowa monolityczna;
• Przeszklenia fasadowe zapewniają maksymalne naturalne oświetlenie każdej przestrzeni mieszkalnej;
• Niemiecki profil aluminiowy z potrójnym przeszkleniem Schüco;
• Mur z cegły ceramicznej o grubości 25 cm i 12 cm firmy Wienerberger;
• Ścianki wewnętrzne i obudowy instalacji w pomieszczeniach sanitarnych wykonane są z płyt gipsowo-kartonowych;
• Tarasy wyposażone są w balustrady ażurowe i pełne o wysokości min. 120 cm od gotowej podłogi;
• Przestrzenie wejściowe zaznaczono dekoracyjną ramą z okładziną kamienną;
• Parter ma wykończenie etalbondem, które naturalnie przechodzi poprzez ozdobne elementy ochrony przeciwsłonecznej na wysokości aż do ozdobnego profilu, który obramowuje przestrzeń publiczną;
• Tynki zewnętrzne – poziome jasne – na krawędziach tarasów i balustrad; ciemny kolor – na całej wewnętrznej elewacji;
• Ciemny lacobel – który dodatkowo podkreśla linie pionowe;
• Kratki dekoracyjne;
• Barierka ochronna wykonana z materiału kompozytowego o wysokości min. 120 cm od gotowej podłogi.
Parking:
• Parking podziemny: 38 miejsc parkingowych znajduje się w piwnicy. miejsca parkingowe. Zaplanowano montaż zautomatyzowanego systemu dostępu ze zdalnym sterowaniem. Klatki schodowe są oddzielone od przedziału pasażerskiego drzwiami przeciwpożarowymi. Na tym poziomie zaplanowano zaplecze techniczne i magazynowe.
• Parking naziemny: dysponuje 26 miejscami parkingowymi. miejsca parkingowe, do których można dojechać dwupasmową wewnętrzną rampą.
• Parter: znajduje się tam 18 lokali mieszkalnych. w opakowaniu zbiorczym 7 szt. otwarte miejsca parkingowe.
Plan budowy:
Okres realizacji - 36 miesięcy.
Schematy płatności:
Możliwe są różne formy płatności po negocjacjach.
Zobacz tekst w innych językach (tłumaczenie automatyczne)
Lokalizacja (około)
Przybliżone położenie nieruchomości/kompleksu zaznaczono na mapie czerwonym znacznikiem.
Nasze top oferty do sprzedaz Sofia, Bulgaria
Nieruchomości według rejonu, Sofia
- Nieruchomości w dzielnica"Malinova Dolina"
- Nieruchomości w dzielnica"Krustova Vada"
- Nieruchomości w dzielnica"Manastirski Livadi - East"
- Nieruchomości w dzielnica"Boyana"
- Nieruchomości w dzielnica"Center"
- Nieruchomości w dzielnica"Vitosha"
- Nieruchomości w dzielnica"Dragalevtsi"
- Nieruchomości w dzielnica"Lozenets"
- Nieruchomości w dzielnica"Mladost 3"
- Nieruchomości w dzielnica"Manastirski Livadi - West"
Popularne wyszukiwania
wszystkie według wyszukiwania


ORIGINAL: