Liczba pięter w budynku
5
Piętro
2
Winda
tak
pokoie
1
Łazienki
1

Całkowita powierzchnia
42.49 m2
Powierzchnia zabudowana
35.61 m2
Części wspólne
6.88 m2
Stan
W trakcie budowy
Planowane zakończenie
February 2026

Cena
38 000 €
894 €/m2
Zapytanie o więcej informacji lub oględziny
Pakiet informacyjny
Stan
key-ready (unfurnished)
Umeblowanie
Podłogi
Panele podłogowe
Ściany wewnętrzne
Malowane ściany
Odległości
Ostatnieia aktualizacja
06.10.2025 r.
Odległości od nieruchomości do innych ważnych obiektów
- Wyciąg górski: 1.7km
- Lotnisko Plovdiv (PDV): 80km
Ogrzewanie
- Ogrzewanie elektryczne
Informacje administracyjne dotyczące oferty
- Elektryczność
- Komunalne dostarczanie wody
- Łazienka z toaletą
- Drzwi wewnętrzne
- Izolacja zewnętrzna
- Malowane ściany
- Pancerne drzwi wejściowe
- Panele podłogowe
- Podłoga z płytek granitowych
- Potrójne przeszklenie
- Ramy okienne PCV
- Winda
Tekst został automatycznie przetłumaczony przez oprogramowanie i może zawierać nieścisłości.
Możesz zobaczyć tekst w oryginalnym języku lub przetłumaczyć na inne języki:
Prezentujemy gotowe do sprzedaży studio wakacyjne w nowym budynku w Pamporowie, położone w malowniczej okolicy z czystym powietrzem, piękną przyrodą i możliwością pełnego relaksu w górach.
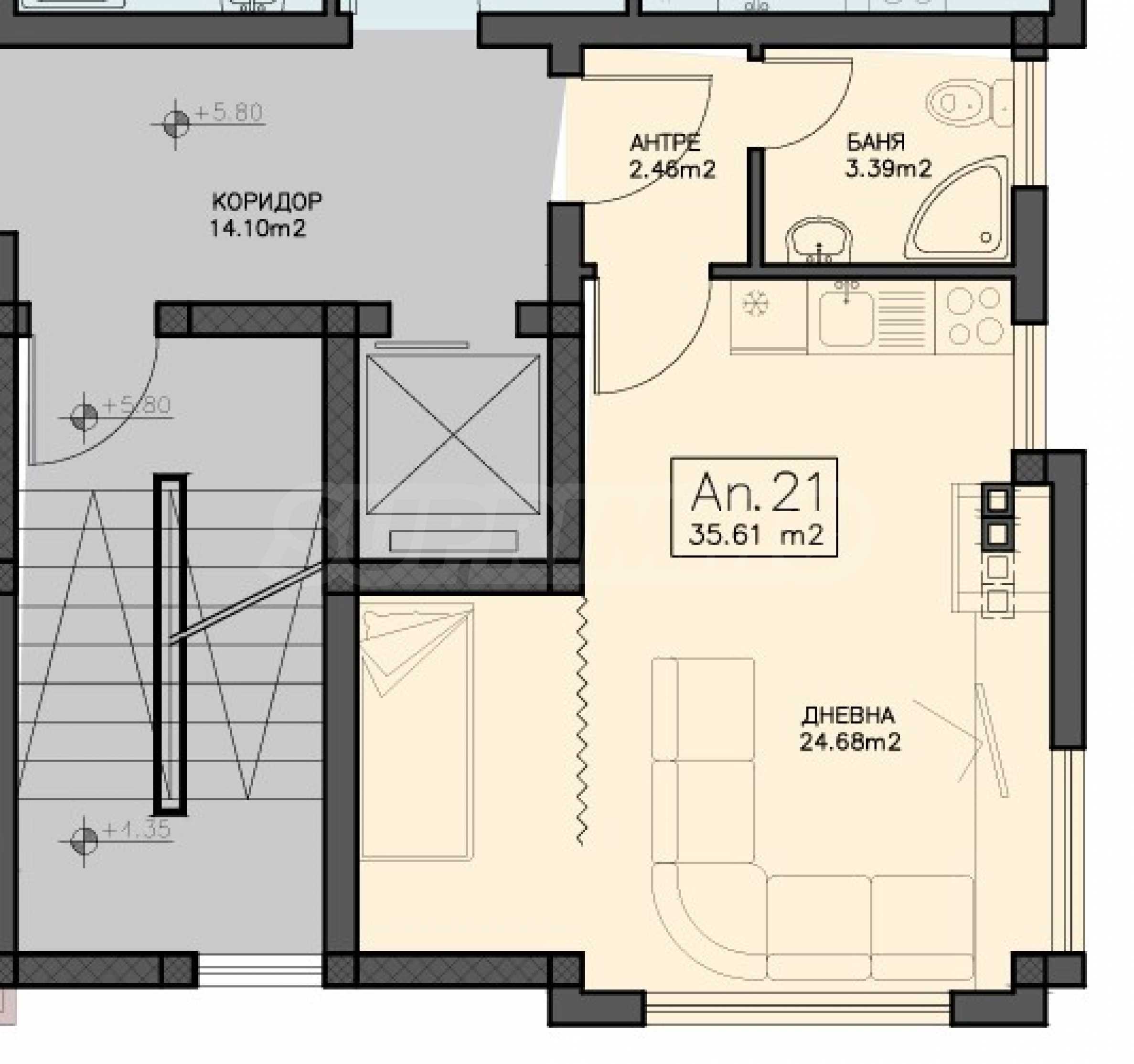
Nieruchomość znajduje się na 2. piętrze i ma powierzchnię całkowitą 42,49 m². Składa się z przedpokoju, łazienki/WC, salonu z aneksem kuchennym - 24,68 m².
PRZED USTAWĄ 15. USTAWĄ 16 - 02.2026
Pamporowo to najbardziej wysunięty na południe ośrodek narciarski w Bułgarii, znany z łagodnego klimatu, słonecznych zimowych dni i dobrze utrzymanych stoków. Oferuje ponad 37 km tras narciarskich, odpowiednich zarówno dla początkujących, jak i zaawansowanych narciarzy. Główne ośrodki narciarskie oferują nowoczesne wyciągi, szkoły narciarskie i wypożyczalnie sprzętu, co czyni ten ośrodek doskonałym miejscem na turystykę zimową i inwestycję.
Budynek położony jest w spokojniejszej części ośrodka.
Tętniące życiem centrum oddalone jest o 15 minut spacerem, a Ośrodek Narciarski nr 1 (Studenets) o 1,7 km. W okolicy znajdują się osiedla willowe, hotele, sklepy i restauracje, które tworzą komfortowe warunki zarówno do wypoczynku, jak i długoterminowego pobytu. Dzięki dogodnemu dojazdowi, odległość do lotniska w Płowdiwie wynosi 80 km, a do lotniska w Sofii – 230 km.
Mieszkanie
Nieruchomości to kawalerki, apartamenty jedno- i trzypokojowe, oddawane w stanie „pod klucz” i gotowe do umeblowania. To doskonała okazja inwestycyjna, zarówno do użytku własnego, jak i na wynajem w sezonie zimowym i letnim.
Prace wykończeniowe w domach:
Budynek dysponuje miejscami parkingowymi na zewnątrz, z których można korzystać za roczną opłatą w wysokości 150 BGN za miejsce. Istnieje również możliwość zakupu miejsca parkingowego po negocjacjach.
Opłata za utrzymanie będzie stanowić jedynie opłatę wpisową.
Czekamy na Państwa zapytanie.
Jeśli chcesz umówić się na obejrzenie interesującej Cię nieruchomości lub odwiedzić jedno z naszych biur, skontaktuj się z nami. Aby umówić się na spotkanie lub oględziny, zadzwoń pod numer telefonu podany w ogłoszeniu lub wyślij zapytanie e-mailem. Nasz konsultant pomoże Ci w ustaleniu wszystkich niezbędnych szczegółów i ustali dogodny termin.
Szukasz odpowiedniej nieruchomości dla siebie?
Skontaktuj się z nami i opowiedz nam o swoich potrzebach i preferencjach. Nasz zespół przeprowadzi dogłębną analizę rynku, aby zaoferować Ci nieruchomości idealnie odpowiadające Twoim kryteriom. Posiadamy wyjątkowe portfolio wysokiej jakości, ekskluzywnych domów, dostępnych wyłącznie dla naszych klientów. Aby być pierwszym, który otrzyma o nich informacje – skontaktuj się z nami.
Usługi dodatkowe
Jako ceniony klient naszej firmy, będziesz miał przywilej korzystania z usług naszego doświadczonego zespołu prawnego całkowicie bezpłatnie. Ponadto oferujemy kompleksowe rozwiązania, w tym ubezpieczenia nieruchomości, bezpłatne doradztwo finansowe, a także korzystne warunki finansowania. Nasze usługi obejmują również odsprzedaż, wynajem i zarządzanie nieruchomościami. Zapewniamy wysokiej jakości remonty i wyposażenie wnętrz za pośrednictwem wyspecjalizowanych firm wchodzących w skład naszej grupy kapitałowej i będących naszymi wieloletnimi partnerami.
Ogledziny nieruchomosci
Mozemy zorganizowac ogledziny nieruchomosci, w dogodnym dla Panstwa terminie. W tym celu prosimy o skontaktowanie sie z agentem odpowiedzialnym za te oferte.
Rezerwacja nieruchomosci
Nieruchomosc moze byc zarezerwowana i wycofana ze sprzedazy po wplaceniu zadatku, po czym ustaje ogladanie z innymi kupujacymi i rozpoczyna sie przygotowanie dokumentow do zawarcia umowy przedwstepnej i ostatecznej.
Prosimy o kontakt z agentem odpowiedzialnym za te nieruchomosc w celu uzyskania szczegolowych informacji dotyczacych procedury zakupu i metod platnosci.
Uslugi dodatkowe i obsluga posprzedazowa
Jestesmy sprawdzona firma o dobrej reputacji i wieloletnim doswiadczeniu. Dlatego bedziemy z Panstwem nie tylko w trakcie zakupu, ale takze po jego zakonczeniu, swiadczac na Panstwa zyczenie dodatkowe uslugi, aby w pelni i bezproblemowo korzystac z nowo zakupionej nieruchomosci. Uslugi, ktore mozemy zaoferowac, obejmuja uzyskanie zgody na kredyt hipoteczny z bulgarskiego banku, ubezpieczenia majatku ruchomego i nieruchomosci, ubezpieczenia na zycie, ubezpieczenia medyczne i samochodowe, prace budowlane i remontowe, meblowanie, uslugi prawne i ksiegowe itp.
Nieruchomość znajduje się na 2. piętrze i ma powierzchnię całkowitą 42,49 m². Składa się z przedpokoju, łazienki/WC, salonu z aneksem kuchennym - 24,68 m².
PRZED USTAWĄ 15. USTAWĄ 16 - 02.2026
Pamporowo to najbardziej wysunięty na południe ośrodek narciarski w Bułgarii, znany z łagodnego klimatu, słonecznych zimowych dni i dobrze utrzymanych stoków. Oferuje ponad 37 km tras narciarskich, odpowiednich zarówno dla początkujących, jak i zaawansowanych narciarzy. Główne ośrodki narciarskie oferują nowoczesne wyciągi, szkoły narciarskie i wypożyczalnie sprzętu, co czyni ten ośrodek doskonałym miejscem na turystykę zimową i inwestycję.
Budynek położony jest w spokojniejszej części ośrodka.
Tętniące życiem centrum oddalone jest o 15 minut spacerem, a Ośrodek Narciarski nr 1 (Studenets) o 1,7 km. W okolicy znajdują się osiedla willowe, hotele, sklepy i restauracje, które tworzą komfortowe warunki zarówno do wypoczynku, jak i długoterminowego pobytu. Dzięki dogodnemu dojazdowi, odległość do lotniska w Płowdiwie wynosi 80 km, a do lotniska w Sofii – 230 km.
Mieszkanie
Nieruchomości to kawalerki, apartamenty jedno- i trzypokojowe, oddawane w stanie „pod klucz” i gotowe do umeblowania. To doskonała okazja inwestycyjna, zarówno do użytku własnego, jak i na wynajem w sezonie zimowym i letnim.
Prace wykończeniowe w domach:
- Podłogi w korytarzach, łazienkach i kuchni – płytki granitowe;
- Łazienki – w pełni wykończone i wyposażone w baterie, prysznice, zabudowy i toalety firm Roca, Grohe lub Geberit, hiszpańskie płytki granitowe, podwieszany sufit z oświetleniem LED, drewniany blat z umywalką i podgrzewaczem wody;
- Salon i sypialnie - podłoga laminowana, ściany malowane farbą lateksową;
- Drzwi wejściowe – pancerne.
- Ogrzewanie - elektryczne;
- Elewacja – połączenie białej okładziny z okładziną drewnianą, typową dla tego regionu; w kolorze białym, ocieplona, otynkowana i łączona kołkami z terakoty, naturalnego drewna;
- Części wspólne – stylowo wykończone, każde wejście posiada windę;
- Stolarka okienna – wysokiej jakości PCV, z profilami REHAU, w kolorze złoty dąb, z przeszkleniem 24 mm; parapety wykonane są z profilu aluminiowego w tym samym kolorze;
- Ściany działowe zewnętrzne i wewnętrzne wykończone czerwoną cegłą o grubości 25 cm i 12 cm.
Budynek dysponuje miejscami parkingowymi na zewnątrz, z których można korzystać za roczną opłatą w wysokości 150 BGN za miejsce. Istnieje również możliwość zakupu miejsca parkingowego po negocjacjach.
Opłata za utrzymanie będzie stanowić jedynie opłatę wpisową.
Czekamy na Państwa zapytanie.
Jeśli chcesz umówić się na obejrzenie interesującej Cię nieruchomości lub odwiedzić jedno z naszych biur, skontaktuj się z nami. Aby umówić się na spotkanie lub oględziny, zadzwoń pod numer telefonu podany w ogłoszeniu lub wyślij zapytanie e-mailem. Nasz konsultant pomoże Ci w ustaleniu wszystkich niezbędnych szczegółów i ustali dogodny termin.
Szukasz odpowiedniej nieruchomości dla siebie?
Skontaktuj się z nami i opowiedz nam o swoich potrzebach i preferencjach. Nasz zespół przeprowadzi dogłębną analizę rynku, aby zaoferować Ci nieruchomości idealnie odpowiadające Twoim kryteriom. Posiadamy wyjątkowe portfolio wysokiej jakości, ekskluzywnych domów, dostępnych wyłącznie dla naszych klientów. Aby być pierwszym, który otrzyma o nich informacje – skontaktuj się z nami.
Usługi dodatkowe
Jako ceniony klient naszej firmy, będziesz miał przywilej korzystania z usług naszego doświadczonego zespołu prawnego całkowicie bezpłatnie. Ponadto oferujemy kompleksowe rozwiązania, w tym ubezpieczenia nieruchomości, bezpłatne doradztwo finansowe, a także korzystne warunki finansowania. Nasze usługi obejmują również odsprzedaż, wynajem i zarządzanie nieruchomościami. Zapewniamy wysokiej jakości remonty i wyposażenie wnętrz za pośrednictwem wyspecjalizowanych firm wchodzących w skład naszej grupy kapitałowej i będących naszymi wieloletnimi partnerami.
Ogledziny nieruchomosci
Mozemy zorganizowac ogledziny nieruchomosci, w dogodnym dla Panstwa terminie. W tym celu prosimy o skontaktowanie sie z agentem odpowiedzialnym za te oferte.
Rezerwacja nieruchomosci
Nieruchomosc moze byc zarezerwowana i wycofana ze sprzedazy po wplaceniu zadatku, po czym ustaje ogladanie z innymi kupujacymi i rozpoczyna sie przygotowanie dokumentow do zawarcia umowy przedwstepnej i ostatecznej.
Prosimy o kontakt z agentem odpowiedzialnym za te nieruchomosc w celu uzyskania szczegolowych informacji dotyczacych procedury zakupu i metod platnosci.
Uslugi dodatkowe i obsluga posprzedazowa
Jestesmy sprawdzona firma o dobrej reputacji i wieloletnim doswiadczeniu. Dlatego bedziemy z Panstwem nie tylko w trakcie zakupu, ale takze po jego zakonczeniu, swiadczac na Panstwa zyczenie dodatkowe uslugi, aby w pelni i bezproblemowo korzystac z nowo zakupionej nieruchomosci. Uslugi, ktore mozemy zaoferowac, obejmuja uzyskanie zgody na kredyt hipoteczny z bulgarskiego banku, ubezpieczenia majatku ruchomego i nieruchomosci, ubezpieczenia na zycie, ubezpieczenia medyczne i samochodowe, prace budowlane i remontowe, meblowanie, uslugi prawne i ksiegowe itp.
Zobacz tekst w innych językach (tłumaczenie automatyczne)
Lokalizacja (około)
Przybliżone położenie nieruchomości/kompleksu zaznaczono na mapie czerwonym znacznikiem.
Nasze top oferty do sprzedaz Pamporovo, Bulgaria
Nieruchomości według rejonu, Pamporovo
- Nieruchomości w dzielnica"Center"
- Sofia
- Varna
- Burgas
- Plovdiv
- Sunny Beach
- Lozenets
- Sveti Vlas
- Bansko
- Borovets


ORIGINAL: