-7% Obniżona
cena
cena
Działka z projektem budowy trzech domów jednorodzinnych z ogródkami w miejscowości Novi Iskar
REF#SOF-130283 / Działka budowlana z projektem / Novi Iskar / Wojewódstwo Sofijskie / Bulgaria / Sprzedaz Na mapie

Całkowita powierzchnia
947 m2

Cena
-7% 192 000 €
180 000 €
(bez VAT)
190 €/m2
(bez VAT)
Zapytanie o więcej informacji lub oględziny
Pakiet informacyjny
Odległości
Ostatnieia aktualizacja
29.01.2026 r.
Odległości od nieruchomości do innych ważnych obiektów
- Lotnisko Sofia (SOF): 25km
Informacje administracyjne dotyczące oferty
- Elektryczność
- Komunalne dostarczanie wody
- Odwodnienie sieciowe
Tekst został automatycznie przetłumaczony przez oprogramowanie i może zawierać nieścisłości.
Możesz zobaczyć tekst w oryginalnym języku lub przetłumaczyć na inne języki:
Oferujemy do sprzedaży działkę budowlaną z projektem inwestycyjnym pod zabudowę trzema domami jednorodzinnymi, położoną w miejscowości... Novi Iskar, rejon Korilo.
Lokalizacja
Nieruchomość położona jest w dogodnej lokalizacji, w pobliżu szkoły, przystanków komunikacji miejskiej i dogodnych połączeń drogowych, które zapewniają łatwy dostęp do centralnych części Sofii. Okolica oferuje spokojną i przyjemną atmosferę, bliskość natury, a jednocześnie wszystkie niezbędne udogodnienia dla miejskiego stylu życia.
Cechy:
Infrastruktura
Przy działce znajduje się droga asfaltowa oraz przyłącze do sieci kanalizacyjnej. Uzgodniono warunki przyłączenia do sieci wodno-kanalizacyjnej i elektrycznej, co ułatwi przyszłą zabudowę.
Każdy z obiektów ma łączną powierzchnię 183 m2, zaprojektowano go z uwzględnieniem funkcjonalnego rozmieszczenia przestrzeni, zapewniając maksymalny komfort i wygodę:
Czekamy na Państwa zapytanie.
Jeśli są Państwo zainteresowani obejrzeniem interesującej Państwa nieruchomości lub odwiedzeniem jednego z naszych biur, prosimy o kontakt. Aby umówić się na spotkanie lub obejrzenie nieruchomości, możesz zadzwonić pod numer telefonu podany w ogłoszeniu lub wysłać zapytanie e-mailem. Nasz konsultant pomoże Ci ustalić wszelkie niezbędne szczegóły i ustali dogodny dla Ciebie termin.
Szukasz odpowiedniej nieruchomości dla siebie?
Nie wahaj się skontaktować z nami i opowiedzieć nam o swoich potrzebach i preferencjach. Nasz zespół przeprowadzi dogłębną analizę rynku, aby zaproponować Ci nieruchomości dokładnie odpowiadające Twoim kryteriom. Posiadamy wyjątkowe portfolio wysokiej jakości, ekskluzywnych domów, które są dostępne wyłącznie dla naszych klientów. Aby otrzymać informacje o nich jako pierwszy – skontaktuj się z nami.
Usługi dodatkowe
Jako ceniony klient naszej firmy, będziesz miał przywilej korzystania z usług naszego doświadczonego zespołu prawnego całkowicie bezpłatnie. Ponadto oferujemy kompleksowe rozwiązania obejmujące ubezpieczenia majątkowe, bezpłatne doradztwo finansowe, a także korzystne warunki finansowania. Nasze usługi obejmują również obszary odsprzedaży, wynajmu i zarządzania nieruchomościami. Oferujemy wysokiej jakości remonty i wyposażenie wnętrz za pośrednictwem wyspecjalizowanych firm wchodzących w skład naszej grupy kapitałowej i będących naszymi wieloletnimi partnerami zawodowymi.
Ogledziny nieruchomosci
Mozemy zorganizowac ogledziny nieruchomosci, w dogodnym dla Panstwa terminie. W tym celu prosimy o skontaktowanie sie z agentem odpowiedzialnym za te oferte.
Rezerwacja nieruchomosci
Nieruchomosc moze byc zarezerwowana i wycofana ze sprzedazy po wplaceniu zadatku, po czym ustaje ogladanie z innymi kupujacymi i rozpoczyna sie przygotowanie dokumentow do zawarcia umowy przedwstepnej i ostatecznej.
Prosimy o kontakt z agentem odpowiedzialnym za te nieruchomosc w celu uzyskania szczegolowych informacji dotyczacych procedury zakupu i metod platnosci.
Uslugi dodatkowe i obsluga posprzedazowa
Jestesmy sprawdzona firma o dobrej reputacji i wieloletnim doswiadczeniu. Dlatego bedziemy z Panstwem nie tylko w trakcie zakupu, ale takze po jego zakonczeniu, swiadczac na Panstwa zyczenie dodatkowe uslugi, aby w pelni i bezproblemowo korzystac z nowo zakupionej nieruchomosci. Uslugi, ktore mozemy zaoferowac, obejmuja uzyskanie zgody na kredyt hipoteczny z bulgarskiego banku, ubezpieczenia majatku ruchomego i nieruchomosci, ubezpieczenia na zycie, ubezpieczenia medyczne i samochodowe, prace budowlane i remontowe, meblowanie, uslugi prawne i ksiegowe itp.
Lokalizacja
Nieruchomość położona jest w dogodnej lokalizacji, w pobliżu szkoły, przystanków komunikacji miejskiej i dogodnych połączeń drogowych, które zapewniają łatwy dostęp do centralnych części Sofii. Okolica oferuje spokojną i przyjemną atmosferę, bliskość natury, a jednocześnie wszystkie niezbędne udogodnienia dla miejskiego stylu życia.
Cechy:
- lokalizacja: na obszarze z rozwiniętą infrastrukturą i szybkim dostępem do stolicy;
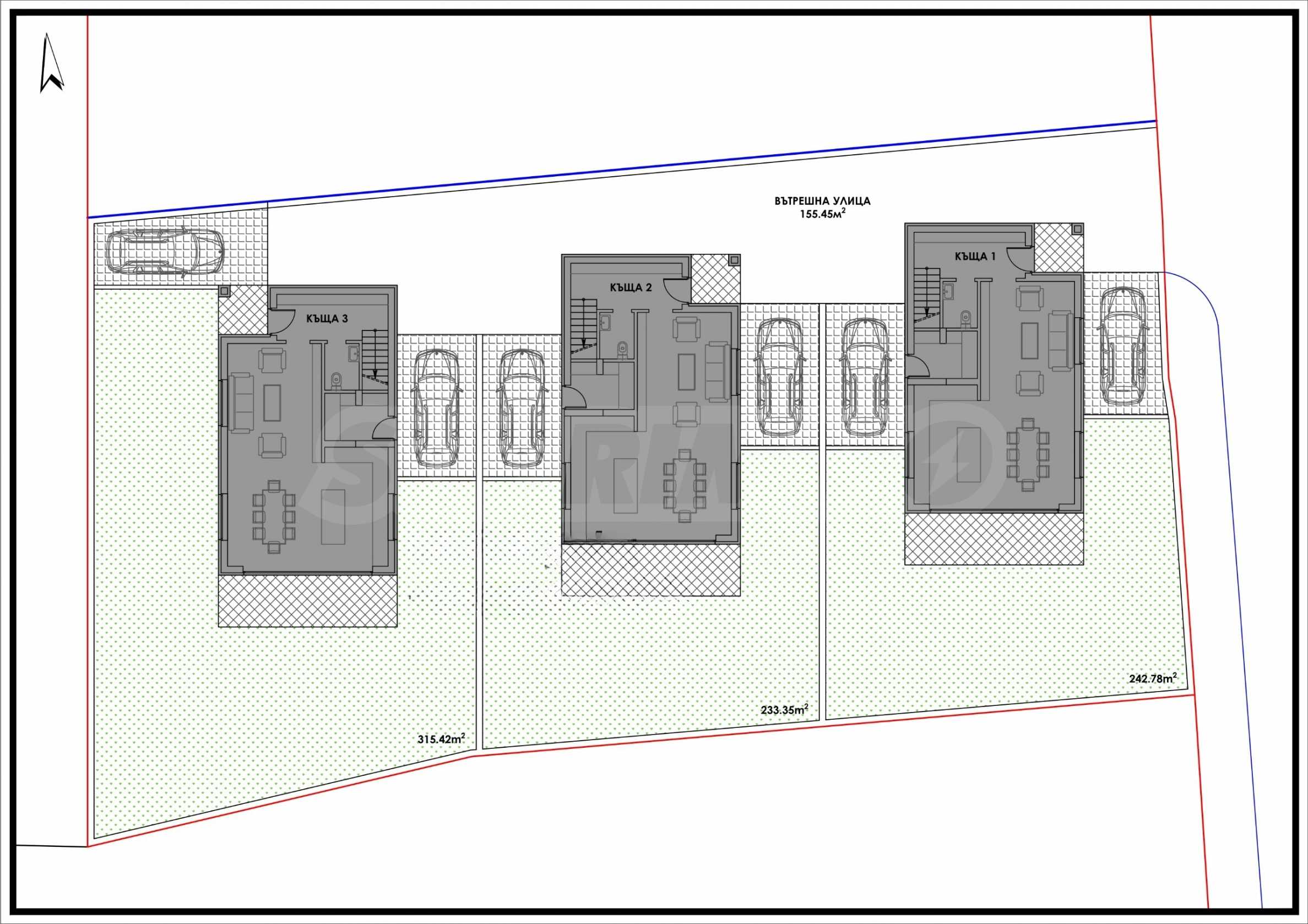
- Powierzchnia działki: 947 m2. z projektem trzech niezależnych domów jednorodzinnych, każdy z osobnym podwórkiem;
- Powierzchnia całkowita: 541,68 m2, tworząca przestronne i funkcjonalne przestrzenie mieszkalne;
- liczba miejsc parkingowych: 6, co zapewnia wygodę i bezpieczeństwo przyszłym właścicielom;
- Gęstość zabudowy: 50%, gwarantująca zrównoważone środowisko między terenami zabudowanymi i zielonymi;
- Współczynnik intensywności (Kint): 1,5% pozwalający na maksymalnie efektywne wykorzystanie terenu;
- wysokość gzymsu: do 10 m. Zgodnie z projektem domy mają wysokość gzymsu 5,6 m.
- Wysokość kalenicy: 7,9 m, odległość między domami - 7 m.
Infrastruktura
Przy działce znajduje się droga asfaltowa oraz przyłącze do sieci kanalizacyjnej. Uzgodniono warunki przyłączenia do sieci wodno-kanalizacyjnej i elektrycznej, co ułatwi przyszłą zabudowę.
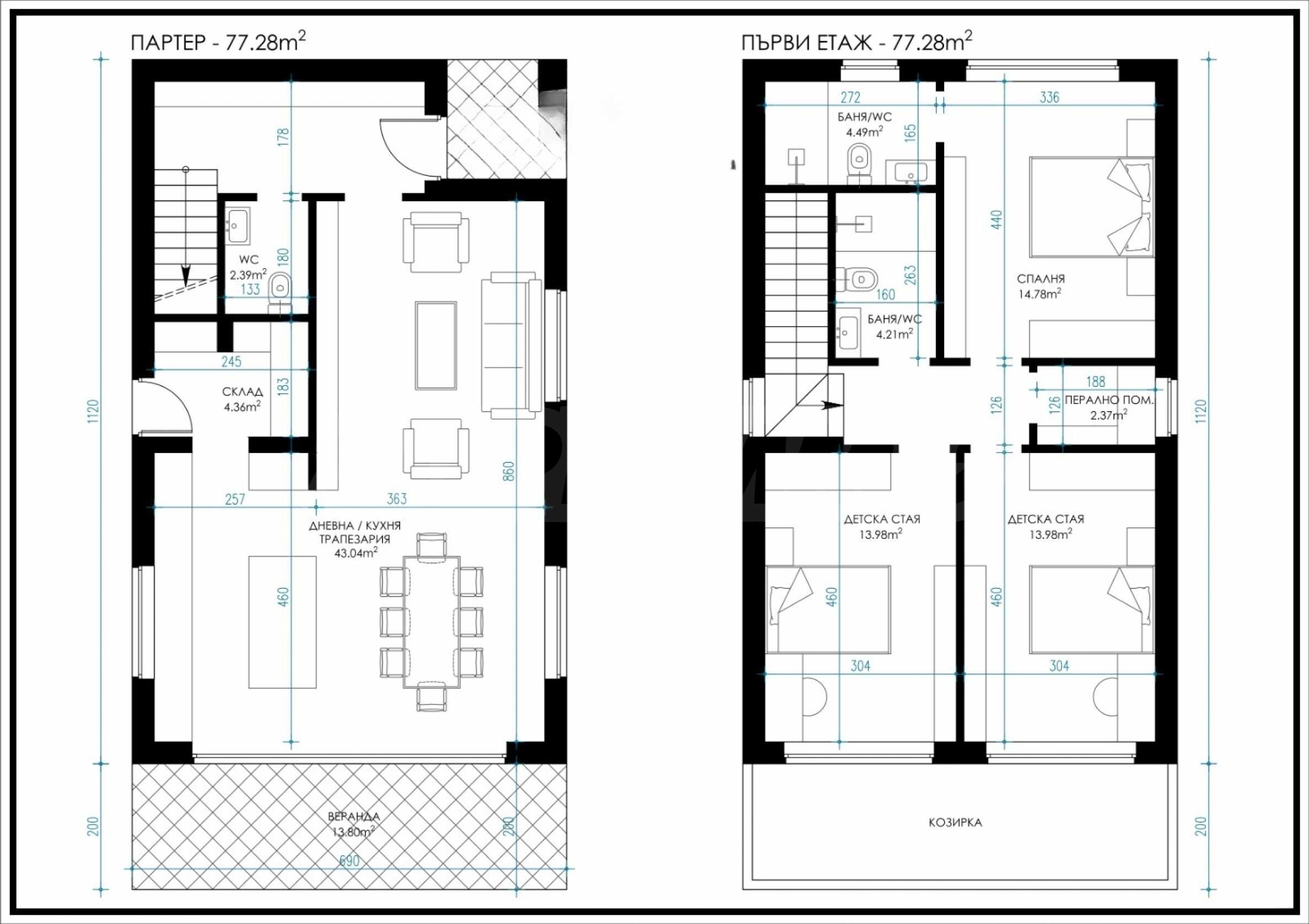
Każdy z obiektów ma łączną powierzchnię 183 m2, zaprojektowano go z uwzględnieniem funkcjonalnego rozmieszczenia przestrzeni, zapewniając maksymalny komfort i wygodę:
- piętro 1: hol wejściowy, salon z kuchnią i jadalnią, łazienka, pomieszczenie gospodarcze;
- Piętro 2: sypialnia główna z prywatną łazienką z toaletą, dwie sypialnie, pralnia, łazienka z toaletą.
Czekamy na Państwa zapytanie.
Jeśli są Państwo zainteresowani obejrzeniem interesującej Państwa nieruchomości lub odwiedzeniem jednego z naszych biur, prosimy o kontakt. Aby umówić się na spotkanie lub obejrzenie nieruchomości, możesz zadzwonić pod numer telefonu podany w ogłoszeniu lub wysłać zapytanie e-mailem. Nasz konsultant pomoże Ci ustalić wszelkie niezbędne szczegóły i ustali dogodny dla Ciebie termin.
Szukasz odpowiedniej nieruchomości dla siebie?
Nie wahaj się skontaktować z nami i opowiedzieć nam o swoich potrzebach i preferencjach. Nasz zespół przeprowadzi dogłębną analizę rynku, aby zaproponować Ci nieruchomości dokładnie odpowiadające Twoim kryteriom. Posiadamy wyjątkowe portfolio wysokiej jakości, ekskluzywnych domów, które są dostępne wyłącznie dla naszych klientów. Aby otrzymać informacje o nich jako pierwszy – skontaktuj się z nami.
Usługi dodatkowe
Jako ceniony klient naszej firmy, będziesz miał przywilej korzystania z usług naszego doświadczonego zespołu prawnego całkowicie bezpłatnie. Ponadto oferujemy kompleksowe rozwiązania obejmujące ubezpieczenia majątkowe, bezpłatne doradztwo finansowe, a także korzystne warunki finansowania. Nasze usługi obejmują również obszary odsprzedaży, wynajmu i zarządzania nieruchomościami. Oferujemy wysokiej jakości remonty i wyposażenie wnętrz za pośrednictwem wyspecjalizowanych firm wchodzących w skład naszej grupy kapitałowej i będących naszymi wieloletnimi partnerami zawodowymi.
Ogledziny nieruchomosci
Mozemy zorganizowac ogledziny nieruchomosci, w dogodnym dla Panstwa terminie. W tym celu prosimy o skontaktowanie sie z agentem odpowiedzialnym za te oferte.
Rezerwacja nieruchomosci
Nieruchomosc moze byc zarezerwowana i wycofana ze sprzedazy po wplaceniu zadatku, po czym ustaje ogladanie z innymi kupujacymi i rozpoczyna sie przygotowanie dokumentow do zawarcia umowy przedwstepnej i ostatecznej.
Prosimy o kontakt z agentem odpowiedzialnym za te nieruchomosc w celu uzyskania szczegolowych informacji dotyczacych procedury zakupu i metod platnosci.
Uslugi dodatkowe i obsluga posprzedazowa
Jestesmy sprawdzona firma o dobrej reputacji i wieloletnim doswiadczeniu. Dlatego bedziemy z Panstwem nie tylko w trakcie zakupu, ale takze po jego zakonczeniu, swiadczac na Panstwa zyczenie dodatkowe uslugi, aby w pelni i bezproblemowo korzystac z nowo zakupionej nieruchomosci. Uslugi, ktore mozemy zaoferowac, obejmuja uzyskanie zgody na kredyt hipoteczny z bulgarskiego banku, ubezpieczenia majatku ruchomego i nieruchomosci, ubezpieczenia na zycie, ubezpieczenia medyczne i samochodowe, prace budowlane i remontowe, meblowanie, uslugi prawne i ksiegowe itp.
Zobacz tekst w innych językach (tłumaczenie automatyczne)
Lokalizacja (około)
Przybliżone położenie nieruchomości/kompleksu zaznaczono na mapie czerwonym znacznikiem.
Nasze top oferty do sprzedaz Novi Iskar, Bulgaria
Nieruchomości według rejonu
wszystko według miasta
Nieruchomość według typu, Novi Iskar
Wszystkie według rodzaju


ORIGINAL: