Liczba pięter w budynku
4
Piętro
3
Winda
tak
pokoie
2
Sypialnie
1
Łazienki
1
Balkony (tarasy) szt.:
1
Piwnica
tak

Całkowita powierzchnia
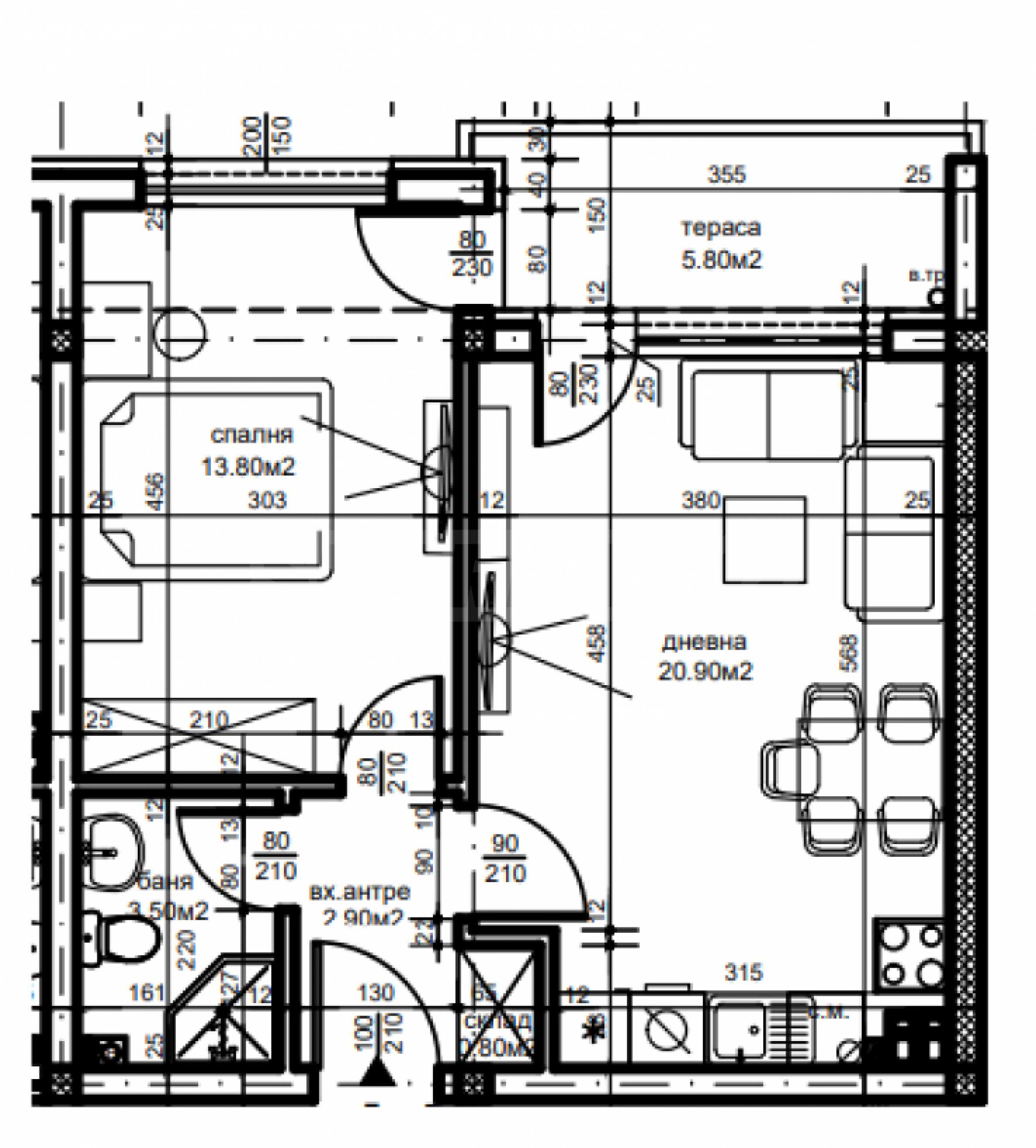
62.20 m2
Powierzchnia zabudowana
54.50 m2
Części wspólne
7.70 m2

Zapytanie o więcej informacji lub oględziny
Pakiet informacyjny
Odległości
Ostatnieia aktualizacja
19.01.2026 r.
Odległości od nieruchomości do innych ważnych obiektów
- Centrum miasta: 4.8km
- Lotnisko Plovdiv (PDV): 16.3km
Widoki z nieruchomości
- Widoki na miasto
Budowa
- Cegła
- Konstrukcja żelbetowa
Informacje administracyjne dotyczące oferty
- Elektryczność
- Woda
- Odwodnienie sieciowe
- Łazienka z toaletą
- Balkon
- Niedokończone wnętrze
- Ramy okienne PCV
- Winda
- W pobliżu sklepy spożywcze
Tekst został automatycznie przetłumaczony przez oprogramowanie i może zawierać nieścisłości.
Możesz zobaczyć tekst w oryginalnym języku lub przetłumaczyć na inne języki:
BEZ PROWIZJI!
Prezentujemy mieszkanie jednopokojowe w nowym kompleksie, na osiedlu. „Belomorskiy” miasta Płowdiw. Dogodna lokalizacja w pobliżu przystanku autobusowego.
Budowa rozpocznie się w lutym 2025 r., a stan surowy zamknięty zostanie w grudniu 2025 r., a zakończenie budowy 16. aktu planowane jest na koniec 2026 r.
Kompleks składa się z 2 oddzielnych budynków mieszkalnych, każdy z parterem i 3 piętrami mieszkalnymi z windą. W ofercie znajdują się apartamenty o różnej wielkości, z dwiema lub trzema sypialniami. Przestrzeń wokół budynków zaprojektowano z miejscami parkingowymi i nasadzeniami zieleni.
Parametry właściwości
Mieszkanie o powierzchni całkowitej 62,20 mkw. znajduje się na 2 piętrze z 4 i jest oddawane w stanie deweloperskim zgodnie z bułgarskim kodeksem cywilnym.
Dane techniczne budynków:
Jeśli są Państwo zainteresowani obejrzeniem interesującej Państwa nieruchomości lub odwiedzeniem jednego z naszych biur, prosimy o kontakt. Aby umówić się na spotkanie lub obejrzenie nieruchomości, możesz zadzwonić pod numer telefonu podany w ogłoszeniu lub wysłać zapytanie e-mailem. Nasz konsultant pomoże Ci ustalić wszelkie niezbędne szczegóły i ustali dogodny dla Ciebie termin.
Szukasz odpowiedniej nieruchomości dla siebie?
Nie wahaj się skontaktować z nami i opowiedzieć nam o swoich potrzebach i preferencjach. Nasz zespół przeprowadzi dogłębną analizę rynku, aby zaproponować Ci nieruchomości dokładnie odpowiadające Twoim kryteriom. Posiadamy wyjątkowe portfolio wysokiej jakości, ekskluzywnych domów, które są dostępne wyłącznie dla naszych klientów. Aby otrzymać informacje o nich jako pierwszy – skontaktuj się z nami.
Usługi dodatkowe
Jako ceniony klient naszej firmy, będziesz miał przywilej korzystania z usług naszego doświadczonego zespołu prawnego całkowicie bezpłatnie. Ponadto oferujemy kompleksowe rozwiązania obejmujące ubezpieczenia majątkowe, bezpłatne doradztwo finansowe, a także korzystne warunki finansowania. Nasze usługi obejmują również obszary odsprzedaży, wynajmu i zarządzania nieruchomościami. Oferujemy wysokiej jakości remonty i wyposażenie wnętrz za pośrednictwem wyspecjalizowanych firm wchodzących w skład naszej grupy kapitałowej i będących naszymi wieloletnimi partnerami zawodowymi.
Prezentujemy mieszkanie jednopokojowe w nowym kompleksie, na osiedlu. „Belomorskiy” miasta Płowdiw. Dogodna lokalizacja w pobliżu przystanku autobusowego.
Budowa rozpocznie się w lutym 2025 r., a stan surowy zamknięty zostanie w grudniu 2025 r., a zakończenie budowy 16. aktu planowane jest na koniec 2026 r.
Kompleks składa się z 2 oddzielnych budynków mieszkalnych, każdy z parterem i 3 piętrami mieszkalnymi z windą. W ofercie znajdują się apartamenty o różnej wielkości, z dwiema lub trzema sypialniami. Przestrzeń wokół budynków zaprojektowano z miejscami parkingowymi i nasadzeniami zieleni.
Parametry właściwości
Mieszkanie o powierzchni całkowitej 62,20 mkw. znajduje się na 2 piętrze z 4 i jest oddawane w stanie deweloperskim zgodnie z bułgarskim kodeksem cywilnym.
Dane techniczne budynków:
- konstrukcja - konstrukcja żelbetowa monolityczna, ściany zewnętrzne murowane z cegły gr. 25 cm, z efektywną izolacją termiczną;
- izolacja termiczna zewnętrzna - 10 cm;
- Okna PCV;
- drzwi wejściowe - pancerne, przeciwpożarowe;
- ściany wewnętrzne i sufit - tynk gipsowy, podłoga - wylewka cementowa;
- Instalacje wodno-kanalizacyjne - wodociągowe - rury polipropylenowe, kanalizacyjne - rury PCV;
- instalacja elektryczna - instalacja trójżyłowa, pozioma i pionowa z zamontowaną rozdzielnicą mieszkaniową;
- instalacje niskoprądowe - wykonywanie okablowania pod instalacje telewizji kablowej, telefonicznej, internetowej i domofonowej;
- instalacja grzewcza - wybudowano trasy pod klimatyzatory;
- wysokiej jakości windy elektryczne z pomieszczeniami bez maszyn i luksusowymi kabinami;
- części wspólne - w pełni wykończone zgodnie z projektem;
- dachy płaskie z hydroizolacją;
- elewacja - wykończona ociepleniem i tynkiem polimerowym;
- taras - posadzka granitowa;
- schody - wykończone podłogą i balustradą aluminiową.
- rezerwacja - 1000 euro;
- przy podpisaniu umowy przedwstępnej - 30%;
- przed Aktem 14 (na drugiej płycie) - 20%;
- Ustawa 14 - 20%;
- po Ustawie 14 (trzy miesiące po Ustawie 14) - 20%;
- Ustawa 15 - 10%.
Jeśli są Państwo zainteresowani obejrzeniem interesującej Państwa nieruchomości lub odwiedzeniem jednego z naszych biur, prosimy o kontakt. Aby umówić się na spotkanie lub obejrzenie nieruchomości, możesz zadzwonić pod numer telefonu podany w ogłoszeniu lub wysłać zapytanie e-mailem. Nasz konsultant pomoże Ci ustalić wszelkie niezbędne szczegóły i ustali dogodny dla Ciebie termin.
Szukasz odpowiedniej nieruchomości dla siebie?
Nie wahaj się skontaktować z nami i opowiedzieć nam o swoich potrzebach i preferencjach. Nasz zespół przeprowadzi dogłębną analizę rynku, aby zaproponować Ci nieruchomości dokładnie odpowiadające Twoim kryteriom. Posiadamy wyjątkowe portfolio wysokiej jakości, ekskluzywnych domów, które są dostępne wyłącznie dla naszych klientów. Aby otrzymać informacje o nich jako pierwszy – skontaktuj się z nami.
Usługi dodatkowe
Jako ceniony klient naszej firmy, będziesz miał przywilej korzystania z usług naszego doświadczonego zespołu prawnego całkowicie bezpłatnie. Ponadto oferujemy kompleksowe rozwiązania obejmujące ubezpieczenia majątkowe, bezpłatne doradztwo finansowe, a także korzystne warunki finansowania. Nasze usługi obejmują również obszary odsprzedaży, wynajmu i zarządzania nieruchomościami. Oferujemy wysokiej jakości remonty i wyposażenie wnętrz za pośrednictwem wyspecjalizowanych firm wchodzących w skład naszej grupy kapitałowej i będących naszymi wieloletnimi partnerami zawodowymi.
Zobacz tekst w innych językach (tłumaczenie automatyczne)
Lokalizacja (około)
Przybliżone położenie nieruchomości/kompleksu zaznaczono na mapie czerwonym znacznikiem.
Nieruchomości według rejonu, Plovdiv
- Nieruchomości w dzielnica"Hristo Smirnenski"
- Nieruchomości w dzielnica"Kurshiyaka"
- Nieruchomości w dzielnica"Ostromila"
- Nieruchomości w dzielnica"Belomorski"
- Nieruchomości w dzielnica"Center"
- Nieruchomości w dzielnica"Trakiya"
- Nieruchomości w dzielnica"Kyuchuk Parij"
- Nieruchomości w dzielnica"Kamenitsa 2"
- Nieruchomości w dzielnica"Kamenitsa 1"
- Nieruchomości w dzielnica"Gagarin"


ORIGINAL: