Liczba pięter w budynku
5
Piętro
4
Winda
tak
pokoie
2
Sypialnie
1
Łazienki
1

Całkowita powierzchnia
68.54 m2
Powierzchnia zabudowana
60.08 m2
Części wspólne
8.46 m2
Stan
W trakcie budowy
Planowane zakończenie
December 2025

Cena
99 100 €
1 446 €/m2
Obowiązkowa opłata za zarządzanie
Zapytanie o więcej informacji lub oględziny
Pakiet informacyjny
Odległości
Ostatnieia aktualizacja
24.11.2025 r.
Odległości od nieruchomości do innych ważnych obiektów
- Morze: 100m
- Lotnisko Burgas (BOJ): 75km
Budowa
- Cegła
Informacje administracyjne dotyczące oferty
- Elektryczność
- Komunalne dostarczanie wody
- dekoracyjne elementy elewacji
- Kanalizacja komunalna
- podwieszany sufit
- Balkon
- Parking na zewnątrz
- Parking podziemny
- Niedokończone wnętrze
Tekst został automatycznie przetłumaczony przez oprogramowanie i może zawierać nieścisłości.
Możesz zobaczyć tekst w oryginalnym języku lub przetłumaczyć na inne języki:
Rozpoczęto budowę.
Oczekiwany Akt 16 - Grudzień 2025
Oferujemy na sprzedaż mieszkanie jednopokojowe w nowym, strzeżonym kompleksie składającym się z trzech ekskluzywnych budynków, położonym zaledwie kilka metrów od Centralnej Plaży w Carewie.
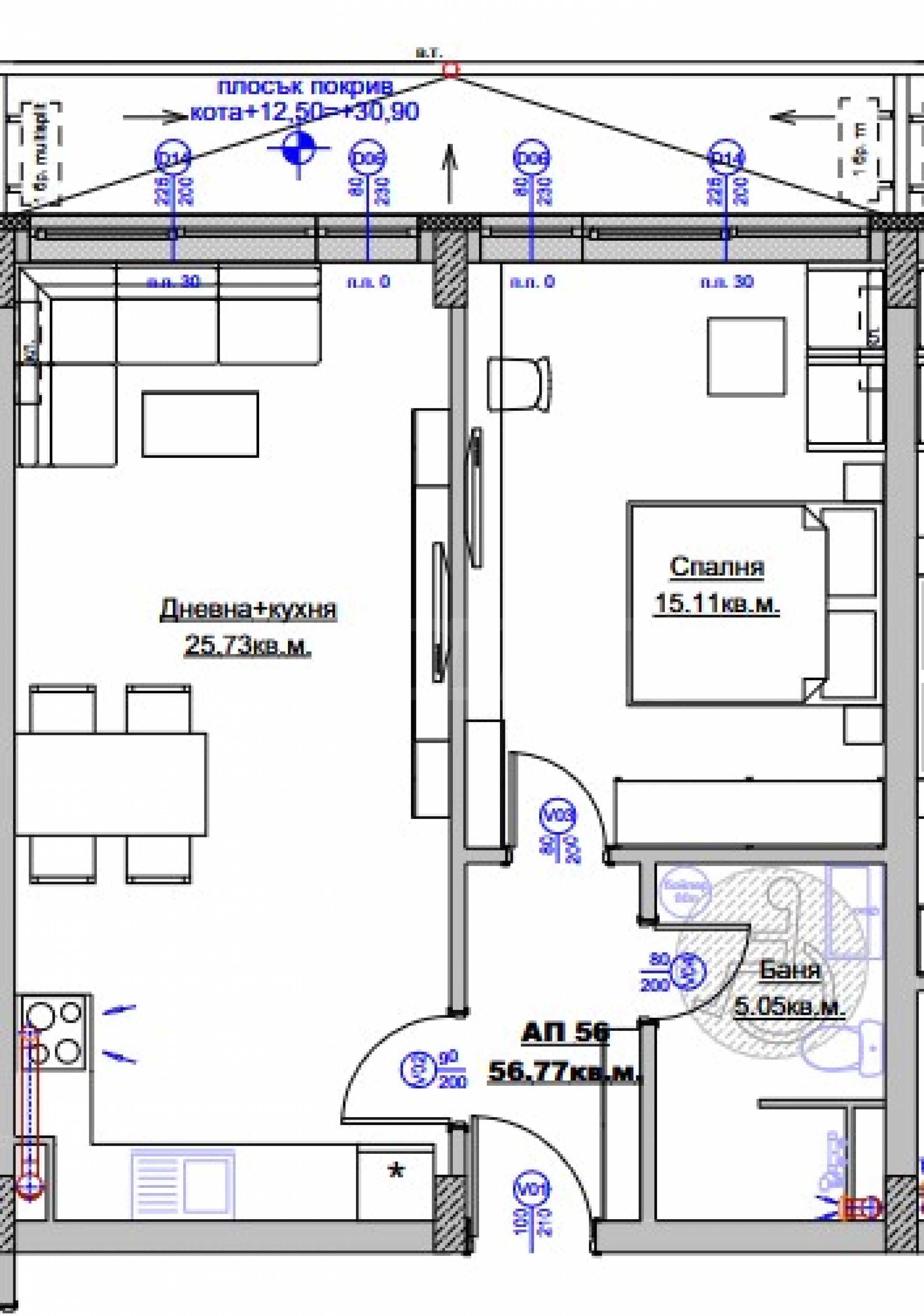
Nieruchomość o powierzchni całkowitej 68,54 m², położona na 4. piętrze, składa się z holu wejściowego, salonu z kuchnią, sypialni oraz łazienki z toaletą. Jest wynajmowana w stanie deweloperskim, zgodnie z bułgarskimi standardami budowlanymi, z tynkiem i wylewką.
Budynki charakteryzują się eleganckim i nowoczesnym wyglądem, a elewacje z płyt HPL, etalbond i tynków mineralnych tworzą wrażenie przytulności i komfortu. Apartamenty to kawalerki, apartamenty jedno- i trzypokojowe o powierzchni od 47,15 m² do 120 m², z malowniczym widokiem na morze i plażę.
Jakość nowego budownictwa:
Parkowanie odbywa się w garażach podziemnych oraz na parkingach naziemnych.
Czekamy na Państwa zapytanie.
Jeśli chcesz umówić się na obejrzenie interesującej Cię nieruchomości lub odwiedzić jedno z naszych biur, skontaktuj się z nami. Aby umówić się na spotkanie lub oględziny, zadzwoń pod numer telefonu podany w ogłoszeniu lub wyślij zapytanie e-mailem. Nasz konsultant pomoże Ci w ustaleniu wszystkich niezbędnych szczegółów i ustali dogodny termin.
Szukasz odpowiedniej nieruchomości dla siebie?
Skontaktuj się z nami i opowiedz nam o swoich potrzebach i preferencjach. Nasz zespół przeprowadzi dogłębną analizę rynku, aby zaoferować Ci nieruchomości idealnie odpowiadające Twoim kryteriom. Posiadamy wyjątkowe portfolio wysokiej jakości, ekskluzywnych domów, dostępnych wyłącznie dla naszych klientów. Aby być pierwszym, który otrzyma o nich informacje – skontaktuj się z nami.
Usługi dodatkowe
Jako ceniony klient naszej firmy, będziesz miał przywilej korzystania z usług naszego doświadczonego zespołu prawnego całkowicie bezpłatnie. Ponadto oferujemy kompleksowe rozwiązania, w tym ubezpieczenia nieruchomości, bezpłatne doradztwo finansowe, a także korzystne warunki finansowania. Nasze usługi obejmują również odsprzedaż, wynajem i zarządzanie nieruchomościami. Zapewniamy wysokiej jakości remonty i wyposażenie wnętrz za pośrednictwem wyspecjalizowanych firm wchodzących w skład naszej grupy kapitałowej i będących naszymi wieloletnimi partnerami.
Ogledziny nieruchomosci
Mozemy zorganizowac ogledziny nieruchomosci, w dogodnym dla Panstwa terminie. W tym celu prosimy o skontaktowanie sie z agentem odpowiedzialnym za te oferte.
Rezerwacja nieruchomosci
Nieruchomosc moze byc zarezerwowana i wycofana ze sprzedazy po wplaceniu zadatku, po czym ustaje ogladanie z innymi kupujacymi i rozpoczyna sie przygotowanie dokumentow do zawarcia umowy przedwstepnej i ostatecznej.
Prosimy o kontakt z agentem odpowiedzialnym za te nieruchomosc w celu uzyskania szczegolowych informacji dotyczacych procedury zakupu i metod platnosci.
Uslugi dodatkowe i obsluga posprzedazowa
Jestesmy sprawdzona firma o dobrej reputacji i wieloletnim doswiadczeniu. Dlatego bedziemy z Panstwem nie tylko w trakcie zakupu, ale takze po jego zakonczeniu, swiadczac na Panstwa zyczenie dodatkowe uslugi, aby w pelni i bezproblemowo korzystac z nowo zakupionej nieruchomosci. Uslugi, ktore mozemy zaoferowac, obejmuja uzyskanie zgody na kredyt hipoteczny z bulgarskiego banku, ubezpieczenia majatku ruchomego i nieruchomosci, ubezpieczenia na zycie, ubezpieczenia medyczne i samochodowe, prace budowlane i remontowe, meblowanie, uslugi prawne i ksiegowe itp.
Oczekiwany Akt 16 - Grudzień 2025
Oferujemy na sprzedaż mieszkanie jednopokojowe w nowym, strzeżonym kompleksie składającym się z trzech ekskluzywnych budynków, położonym zaledwie kilka metrów od Centralnej Plaży w Carewie.
Nieruchomość o powierzchni całkowitej 68,54 m², położona na 4. piętrze, składa się z holu wejściowego, salonu z kuchnią, sypialni oraz łazienki z toaletą. Jest wynajmowana w stanie deweloperskim, zgodnie z bułgarskimi standardami budowlanymi, z tynkiem i wylewką.
Budynki charakteryzują się eleganckim i nowoczesnym wyglądem, a elewacje z płyt HPL, etalbond i tynków mineralnych tworzą wrażenie przytulności i komfortu. Apartamenty to kawalerki, apartamenty jedno- i trzypokojowe o powierzchni od 47,15 m² do 120 m², z malowniczym widokiem na morze i plażę.
Jakość nowego budownictwa:
- Systemy ociepleń Baumit;
- Panele HPL Fundermax;
- Stolarstwo Etem;
- Plastry Röfix;
- Wodoodporność VGF;
- Cegły Wienerberger;
- trzy windy TechPro;
- Materiały elektryczne Legrand;
- Sufity podwieszane Knauf;
- Podłoga Semmelrock.
Parkowanie odbywa się w garażach podziemnych oraz na parkingach naziemnych.
Czekamy na Państwa zapytanie.
Jeśli chcesz umówić się na obejrzenie interesującej Cię nieruchomości lub odwiedzić jedno z naszych biur, skontaktuj się z nami. Aby umówić się na spotkanie lub oględziny, zadzwoń pod numer telefonu podany w ogłoszeniu lub wyślij zapytanie e-mailem. Nasz konsultant pomoże Ci w ustaleniu wszystkich niezbędnych szczegółów i ustali dogodny termin.
Szukasz odpowiedniej nieruchomości dla siebie?
Skontaktuj się z nami i opowiedz nam o swoich potrzebach i preferencjach. Nasz zespół przeprowadzi dogłębną analizę rynku, aby zaoferować Ci nieruchomości idealnie odpowiadające Twoim kryteriom. Posiadamy wyjątkowe portfolio wysokiej jakości, ekskluzywnych domów, dostępnych wyłącznie dla naszych klientów. Aby być pierwszym, który otrzyma o nich informacje – skontaktuj się z nami.
Usługi dodatkowe
Jako ceniony klient naszej firmy, będziesz miał przywilej korzystania z usług naszego doświadczonego zespołu prawnego całkowicie bezpłatnie. Ponadto oferujemy kompleksowe rozwiązania, w tym ubezpieczenia nieruchomości, bezpłatne doradztwo finansowe, a także korzystne warunki finansowania. Nasze usługi obejmują również odsprzedaż, wynajem i zarządzanie nieruchomościami. Zapewniamy wysokiej jakości remonty i wyposażenie wnętrz za pośrednictwem wyspecjalizowanych firm wchodzących w skład naszej grupy kapitałowej i będących naszymi wieloletnimi partnerami.
Ogledziny nieruchomosci
Mozemy zorganizowac ogledziny nieruchomosci, w dogodnym dla Panstwa terminie. W tym celu prosimy o skontaktowanie sie z agentem odpowiedzialnym za te oferte.
Rezerwacja nieruchomosci
Nieruchomosc moze byc zarezerwowana i wycofana ze sprzedazy po wplaceniu zadatku, po czym ustaje ogladanie z innymi kupujacymi i rozpoczyna sie przygotowanie dokumentow do zawarcia umowy przedwstepnej i ostatecznej.
Prosimy o kontakt z agentem odpowiedzialnym za te nieruchomosc w celu uzyskania szczegolowych informacji dotyczacych procedury zakupu i metod platnosci.
Uslugi dodatkowe i obsluga posprzedazowa
Jestesmy sprawdzona firma o dobrej reputacji i wieloletnim doswiadczeniu. Dlatego bedziemy z Panstwem nie tylko w trakcie zakupu, ale takze po jego zakonczeniu, swiadczac na Panstwa zyczenie dodatkowe uslugi, aby w pelni i bezproblemowo korzystac z nowo zakupionej nieruchomosci. Uslugi, ktore mozemy zaoferowac, obejmuja uzyskanie zgody na kredyt hipoteczny z bulgarskiego banku, ubezpieczenia majatku ruchomego i nieruchomosci, ubezpieczenia na zycie, ubezpieczenia medyczne i samochodowe, prace budowlane i remontowe, meblowanie, uslugi prawne i ksiegowe itp.
Zobacz tekst w innych językach (tłumaczenie automatyczne)
Lokalizacja (około)
Przybliżone położenie nieruchomości/kompleksu zaznaczono na mapie czerwonym znacznikiem.
Nasze top oferty do sprzedaz Tsarevo, Bulgaria


ORIGINAL: