Liczba pięter w budynku
3
Winda
nie
pokoie
10
Sypialnie
4
Łazienki
3
Garaże
1
Toalety
3
Piwnica
tak

Powierzchnia budynku
257 m2
Powierzchnia zabudowana
208 m2
Części wspólne
49 m2
Powierzchnia dzałki
324 m2

Cena
729 091 €
(bez VAT)
Zapytanie o więcej informacji lub oględziny
Pakiet informacyjny
Stan
unfinished internally
Umeblowanie
Nieumeblowane
Ogrzewanie
Ogrzewanie gazowe
Klimatyzacja
Standardowy klimatyzator
Odległości
Ostatnieia aktualizacja
07.01.2026 r.
Odległości od nieruchomości do innych ważnych obiektów
Widoki z nieruchomości
- Widoki na wewnętrzny ogród
Budowa
- Konstrukcja żelbetowa
Ogrzewanie
- Ogrzewanie gazowe
Klimatyzacja
- Standardowy klimatyzator
Informacje administracyjne dotyczące oferty
- Elektryczność
- Ogrzewanie na gaz
- Komunalne dostarczanie wody
- izolacja ścian zewnętrznych
Tekst został automatycznie przetłumaczony przez oprogramowanie i może zawierać nieścisłości.
Możesz zobaczyć tekst w oryginalnym języku lub przetłumaczyć na inne języki:
\"Kambanite Gardens\" to nowy strzeżony kompleks mieszkaniowy położony w malowniczej okolicy \"Kambanite\", na granicy Sofii i Parku Przyrody Vitosha. Kompleks ma łatwy dostęp do Ring Road i znajduje się w pobliżu kluczowych miejsc, takich jak Business Park Sofia, IKEA, Ring Mall i Anglo-American School. Łącząc współczesną architekturę, wysokiej jakości materiały i harmonię z naturą, kompleks ten oferuje idealną lokalizację dla Twojego nowego domu.
Prezentujemy jeden z cudownych domów:
• powierzchnia całkowita 257,23 mkw.;
• podwórko: 207,58 m2 (łącznie z werandą: 247,33 m2);
• działka: 324 m2;
• ekspozycja: wschód/zachód.
Dom jest rozłożony na 3 piętrach w następujący sposób :
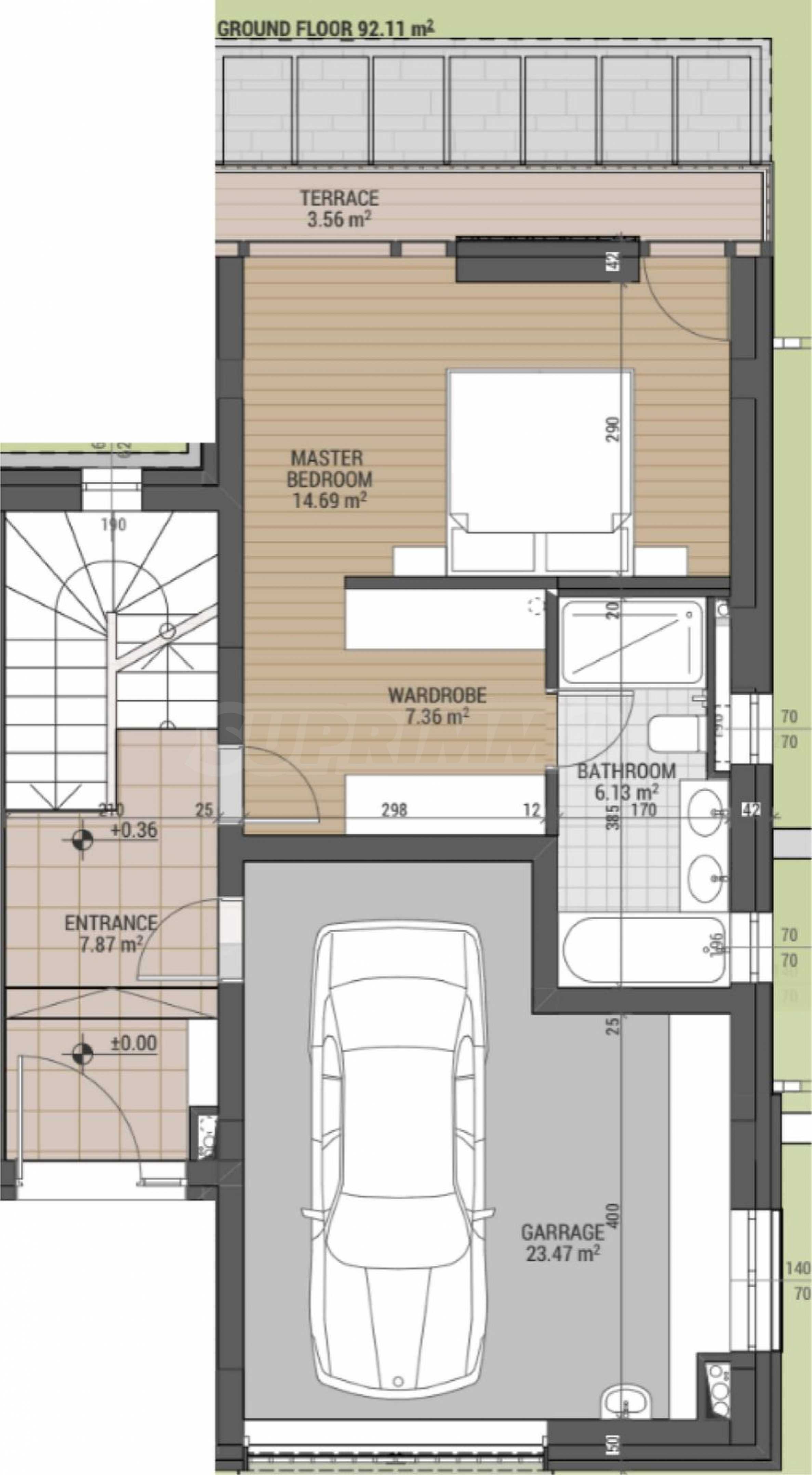
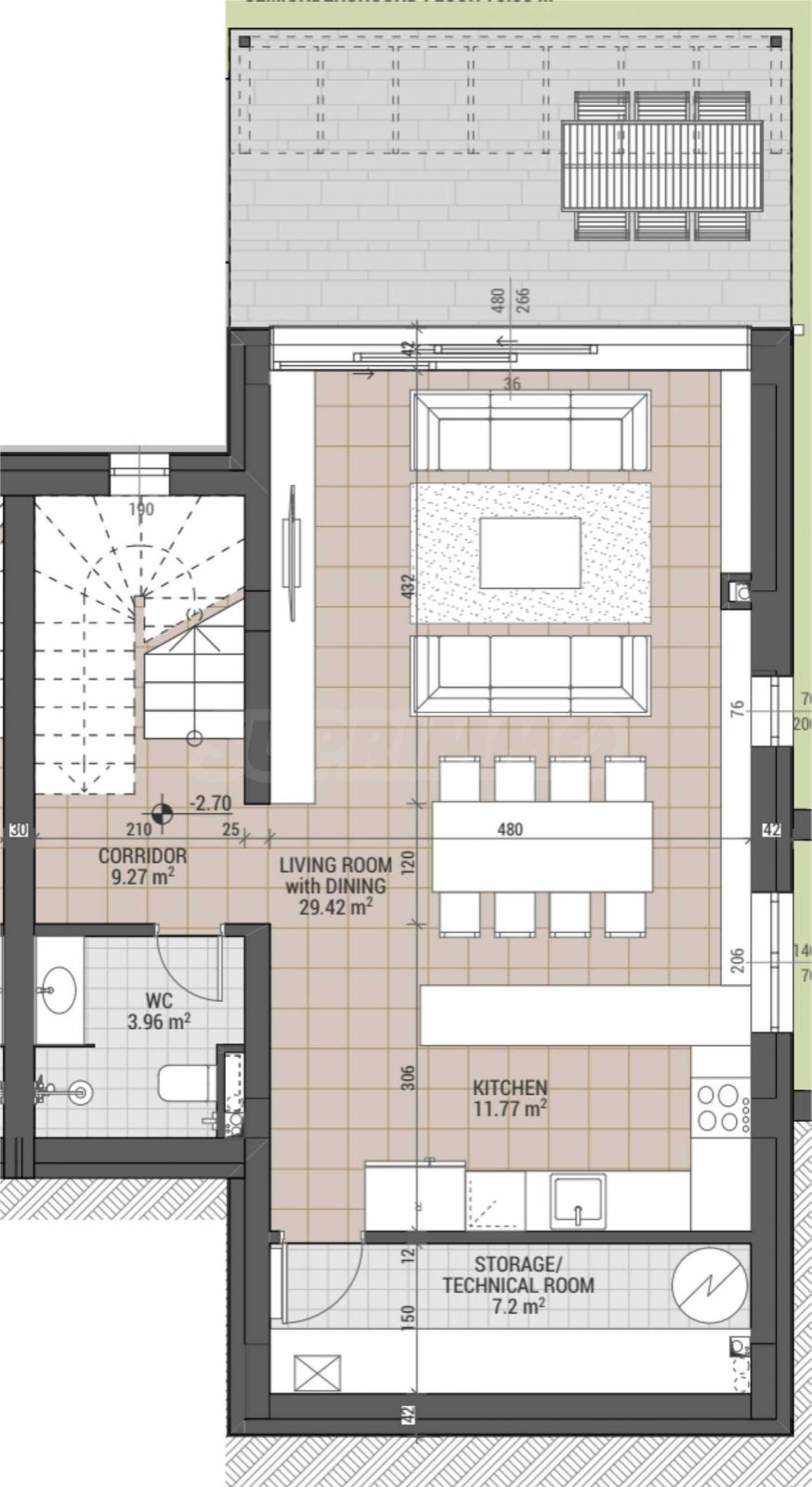
Piętro 1 (92,11 m2):
• przestronny salon z kuchnią;
• pomieszczenie usługowe;
• toaleta;
• dostęp do podwórka i werandy.
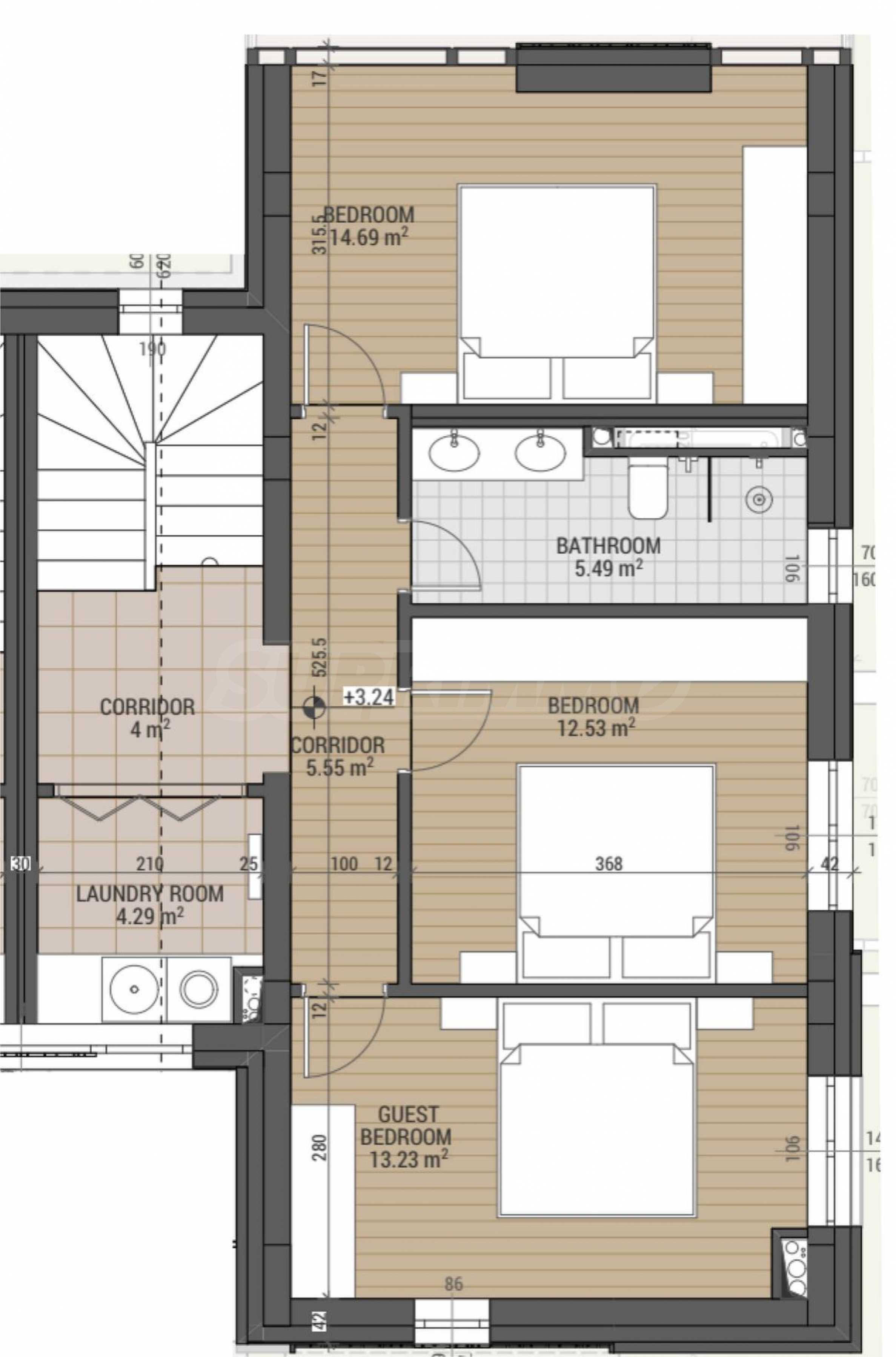
Piętro 2 (82,56 m2):
• 2 sypialnie;
• łazienka z toaletą;
• pomieszczenie mokre.
Piętro 3 (82,56 m2):
• 2 sypialnie;
• łazienka z toaletą.
Garaż – wliczony w cenę.
Kompleks obejmuje:
• Domy: w liczbie 80, o powierzchni od 250 do 350 m2, każdy z własnym podwórkiem i werandą;
• Apartamenty: 50 sztuk, o powierzchni od 75 do 200 m2, zlokalizowane w 4 blokach.
Zalety kompleksu:
• Niska gęstość zabudowy: poniżej 20% powierzchni zabudowanej;
• Zazielenienie: ponad 50% terenów zielonych z różnorodną roślinnością;
• Kontrolowany dostęp i monitoring wideo: całodobowa ochrona dla spokoju Twojej rodziny;
• Profesjonalna konserwacja: gwarantowana jakość i utrzymanie czystości części wspólnych.
Udogodnienia w kompleksie:
• Place zabaw dla dzieci;
• Bieżnie biegowe;
• Boiska sportowe;
• Miejsca do wyprowadzania zwierząt domowych.
Dane techniczne:
Do budowy wykorzystano materiały i technologie najwyższej jakości, m.in. cegły Premium, okna aluminiowe Reynaers, elewację tynkową Baumit oraz wentylowaną elewację ceramiczną.
Plan budowy:
• Rozpoczęcie budowy – kwiecień 2025 r.;
• Planowane zakończenie - 2027
Prezentujemy jeden z cudownych domów:
• powierzchnia całkowita 257,23 mkw.;
• podwórko: 207,58 m2 (łącznie z werandą: 247,33 m2);
• działka: 324 m2;
• ekspozycja: wschód/zachód.
Dom jest rozłożony na 3 piętrach w następujący sposób :
Piętro 1 (92,11 m2):
• przestronny salon z kuchnią;
• pomieszczenie usługowe;
• toaleta;
• dostęp do podwórka i werandy.
Piętro 2 (82,56 m2):
• 2 sypialnie;
• łazienka z toaletą;
• pomieszczenie mokre.
Piętro 3 (82,56 m2):
• 2 sypialnie;
• łazienka z toaletą.
Garaż – wliczony w cenę.
Kompleks obejmuje:
• Domy: w liczbie 80, o powierzchni od 250 do 350 m2, każdy z własnym podwórkiem i werandą;
• Apartamenty: 50 sztuk, o powierzchni od 75 do 200 m2, zlokalizowane w 4 blokach.
Zalety kompleksu:
• Niska gęstość zabudowy: poniżej 20% powierzchni zabudowanej;
• Zazielenienie: ponad 50% terenów zielonych z różnorodną roślinnością;
• Kontrolowany dostęp i monitoring wideo: całodobowa ochrona dla spokoju Twojej rodziny;
• Profesjonalna konserwacja: gwarantowana jakość i utrzymanie czystości części wspólnych.
Udogodnienia w kompleksie:
• Place zabaw dla dzieci;
• Bieżnie biegowe;
• Boiska sportowe;
• Miejsca do wyprowadzania zwierząt domowych.
Dane techniczne:
Do budowy wykorzystano materiały i technologie najwyższej jakości, m.in. cegły Premium, okna aluminiowe Reynaers, elewację tynkową Baumit oraz wentylowaną elewację ceramiczną.
Plan budowy:
• Rozpoczęcie budowy – kwiecień 2025 r.;
• Planowane zakończenie - 2027
Zobacz tekst w innych językach (tłumaczenie automatyczne)
Lokalizacja (około)
Przybliżone położenie nieruchomości/kompleksu zaznaczono na mapie czerwonym znacznikiem.
Nasze top oferty do sprzedaz Sofia, Bulgaria
Nieruchomości według rejonu, Sofia
- Nieruchomości w dzielnica"Malinova Dolina"
- Nieruchomości w dzielnica"Krustova Vada"
- Nieruchomości w dzielnica"Manastirski Livadi - East"
- Nieruchomości w dzielnica"Boyana"
- Nieruchomości w dzielnica"Center"
- Nieruchomości w dzielnica"Vitosha"
- Nieruchomości w dzielnica"Dragalevtsi"
- Nieruchomości w dzielnica"Lozenets"
- Nieruchomości w dzielnica"Mladost 3"
- Nieruchomości w dzielnica"Manastirski Livadi - West"
Popularne wyszukiwania
wszystkie według wyszukiwania


ORIGINAL: