Liczba pięter w budynku
9
Piętro
2
Winda
tak
pokoie
3
Sypialnie
2
Łazienki
1
Powierzchnia balkonów (tarasów)
33.96 m2
Balkony (tarasy) szt.:
1
Toalety
1

Całkowita powierzchnia
114.31 m2
Powierzchnia zabudowana
96.87 m2
Części wspólne
17.44 m2
Taras
33.96 m2
Stan
W trakcie budowy
Planowane zakończenie
November 2027

Cena
222 905 €
1 950 €/m2
Bez prowizji od kupującego
Zapytanie o więcej informacji lub oględziny
Pakiet informacyjny
Stan
unfinished internally
Umeblowanie
Ogrzewanie
Ogrzewanie elektryczne
Okna
Ramy okienne PCV
Odległości
Ostatnieia aktualizacja
21.11.2025 r.
Odległości od nieruchomości do innych ważnych obiektów
- Centrum miasta: 7km
- Lotnisko Sofia (SOF): 5km
Widoki z nieruchomości
- Widoki na miasto
Budowa
- Cegła
Ogrzewanie
- Ogrzewanie elektryczne
Informacje administracyjne dotyczące oferty
- Elektryczność
- Komunalne dostarczanie wody
- dekoracyjne elementy elewacji
- izolacja ścian zewnętrznych
- Odwodnienie sieciowe
- rendering mineralny
- Łazienka z toaletą
- Balkon
- Toaleta
- Niedokończone wnętrze
- Pancerne drzwi wejściowe
- Potrójne przeszklenie
- Ramy okienne PCV
- Winda
Tekst został automatycznie przetłumaczony przez oprogramowanie i może zawierać nieścisłości.
Możesz zobaczyć tekst w oryginalnym języku lub przetłumaczyć na inne języki:
Oferujemy na sprzedaż dwupokojowe mieszkanie, w nowym budynku o eleganckim, klasycznym wystroju, w dogodnej lokalizacji w dzielnicy „Lewski G” w Sofii.
W trakcie budowy. Planowane zakończenie - 11.2027.
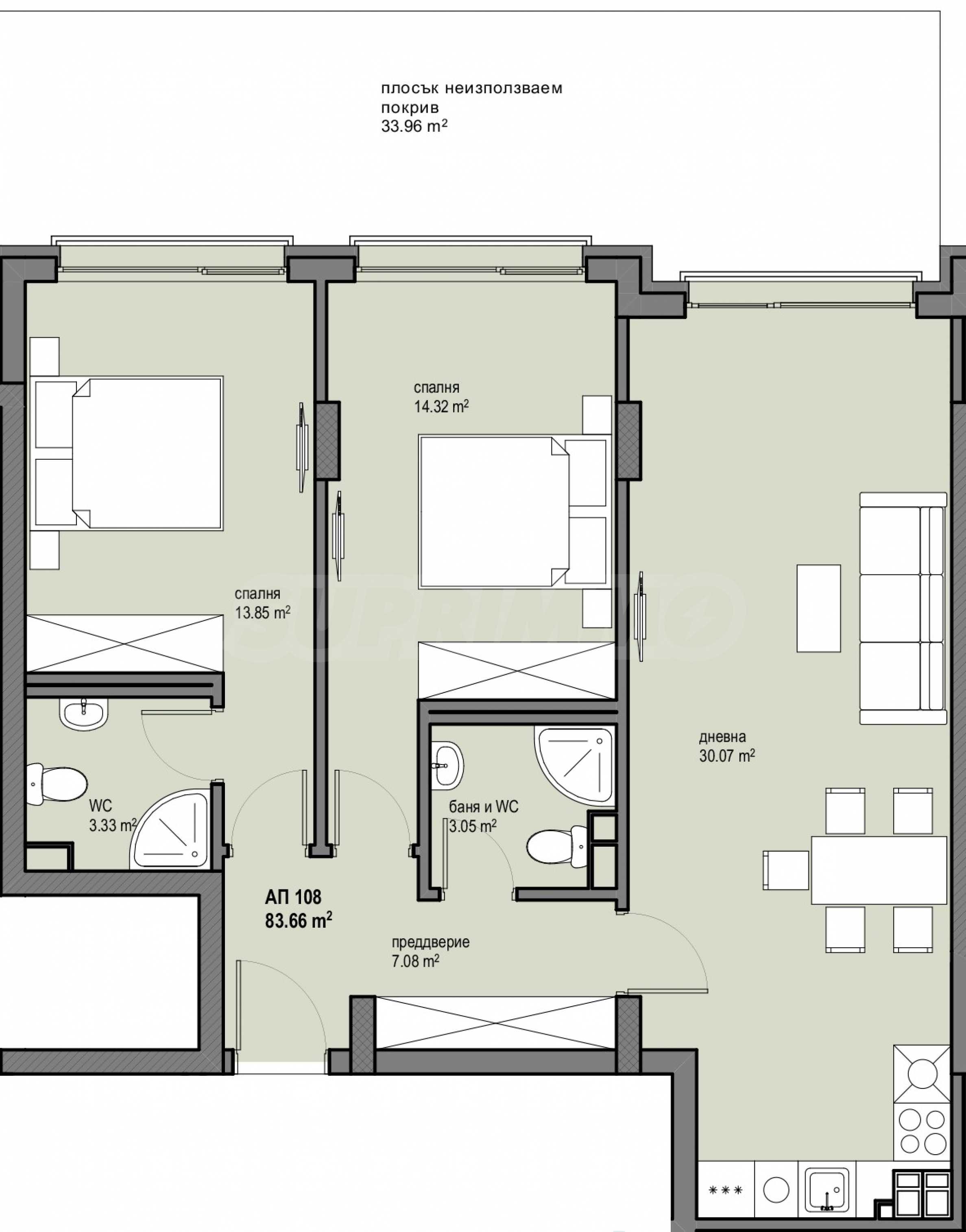
Nieruchomość o powierzchni całkowitej 114,31 m², położona na 2. piętrze, z ekspozycją wschodnią. Składa się z przedpokoju, toalety, łazienki, dwóch sypialni, salonu z kuchnią i jadalnią oraz tarasu o powierzchni 33,96 m².
Wydawany jest w stopniu ukończenia według bułgarskiego kodeksu cywilnego:
• Okna PCV o profilu sześciokomorowym, niemieckim z pakietem trzyszybowym, z jedną szybą niskoemisyjną;
• drzwi wejściowe - pancerne, zamykane na wysokiej klasy zamek tajny;
• ogrzewanie elektryczne z możliwością podłączenia klimatyzatorów;
• wykończenie ścian i sufitów do poziomu gładzi gipsowej z zastosowaniem narożników aluminiowych na krawędziach;
• stropy pomieszczeń nieogrzewanych graniczące z pomieszczeniami ogrzewanymi, z izolacją termiczną z ekstrudowanego polistyrenu XPS;
• pomieszczenia sanitarne i mokre wypełniane są tynkiem wapienno-cementowym;
• wylewka cementowa na podłodze;
• tarasy z płyt granitowych;
• zamontowany panel zlokalizowany w pobliżu drzwi wejściowych;
• instalacje niskoprądowe – zgodnie z projektem, ze skrzynką niskoprądową zamontowaną przy drzwiach wejściowych;
• okablowanie systemu bezpieczeństwa;
• montaż wideodomofonu - okablowanie wykonane, wideodomofon;
• zainstalowane liczniki energii elektrycznej.
Budynek powstaje w pobliżu bulwaru Władimira Wazowa, głównego bulwaru i arterii komunikacyjnej stolicy o długości 5 km, z dogodnym dojazdem komunikacją miejską (linie autobusowe 120, 78), 3 km od stacji metra Teatralna. Obecnie trwają prace nad przedłużeniem linii metra M3 ze stacji Hadji Dimitar do osiedla Levski G.
Wzdłuż przedłużenia bulwaru Władimira Wazowa zaplanowano budowę 3 stacji metra:
• stacja metra „Władimir Wazow” – zaledwie 450 metrów od budynku;
• Stacja metra „Trakia” – 500 metrów;
• stacja metra „Stadion im. Georgija Asparuchowa” – 1,5 km od budynku.
Odległości do kluczowych miejsc, takich jak:
• stadion „Vivacom Arena – Georgi Asparuhov” – 1 km;
• Decathlon – 480 m, kompleks pływacko-rozrywkowy Varadero – 500 m;
• Ulica „Oborishte” i centrum Serdika, bulwar „Madryt”. – 3,5 km;
• Park „Gerena” – 1 km, park „Zaimov” – 5 km;
• centrum Sofii, bulwar Witosza – 7 km;
• Lotnisko w Sofii – 5 km.
Placówki edukacyjne i przedszkola w okolicy: Szkoła Podstawowa nr 199 im. św. Jana Apostoła Teologa – 400 m, Gimnazjum nr 130 im. Stefana Karadży – 900 m, Gimnazjum nr 44 im. Neofita Bozweliego – 2 km, Szkoła Podstawowa nr 49 im. Benito Juareza – 1,9 km; Szkoła Podstawowa nr 92 „Mechta”, Filia Szkoły Podstawowej nr 91 „Słoneczny Zakątek”, Szkoła Podstawowa nr 20 „Park Jaśminowa”.
O budynku
Budynek składa się z dwóch części z apartamentami na 9 kondygnacjach mieszkalnych. Nieruchomości są dwupokojowe, trzypokojowe i czteropokojowe. Istnieje możliwość zakupu garaży w cenach od 26 500 euro, a także komórek lokatorskich.
Dane techniczne budynku:
• monolityczna, żelbetowa, bezbelkowa konstrukcja płyty fundamentowej;
• z hydroizolacją fundamentów budynku - Kryton international Inc. Krystol Waterstop System;
• murowanie z cegły ceramicznej WIENERBERGER;
• ściany zewnętrzne osłonowe - pustak ceramiczny Porotherm gr. 25 cm i system ocieplenia /styropian EPS/;
• ściany wewnętrzne murowane - pustak ceramiczny Porotherm o grubości 12 cm, z izolacją akustyczną między mieszkaniami;
• dach płaski z warstwami układanymi szczegółowo - paroizolacja, izolacja termiczna z ekstrudowanego polistyrenu - XPS, jastrych zbrojony ze spadkiem, dwie warstwy papy hydroizolacyjnej w rolkach; bez mostków termicznych na elementach konstrukcyjnych;
• części wspólne - płytki granitowe lub kamień naturalny;
• windy z luksusowymi kabinami z automatycznymi drzwiami.
Czekamy na Państwa zapytanie.
Jeśli chcesz umówić się na obejrzenie interesującej Cię nieruchomości lub odwiedzić jedno z naszych biur, skontaktuj się z nami. Aby umówić się na spotkanie lub oględziny, zadzwoń pod numer telefonu podany w ogłoszeniu lub wyślij zapytanie e-mailem. Nasz konsultant pomoże Ci w ustaleniu wszystkich niezbędnych szczegółów i ustali dogodny termin.
Szukasz odpowiedniej nieruchomości dla siebie?
Skontaktuj się z nami i opowiedz nam o swoich potrzebach i preferencjach. Nasz zespół przeprowadzi dogłębną analizę rynku, aby zaoferować Ci nieruchomości idealnie odpowiadające Twoim kryteriom. Posiadamy wyjątkowe portfolio wysokiej jakości, ekskluzywnych domów, dostępnych wyłącznie dla naszych klientów. Aby być pierwszym, który otrzyma o nich informacje – skontaktuj się z nami.
Usługi dodatkowe
Jako ceniony klient naszej firmy, będziesz miał przywilej korzystania z usług naszego doświadczonego zespołu prawnego całkowicie bezpłatnie. Ponadto oferujemy kompleksowe rozwiązania, w tym ubezpieczenia nieruchomości, bezpłatne doradztwo finansowe, a także korzystne warunki finansowania. Nasze usługi obejmują również odsprzedaż, wynajem i zarządzanie nieruchomościami. Zapewniamy wysokiej jakości remonty i wyposażenie wnętrz za pośrednictwem wyspecjalizowanych firm wchodzących w skład naszej grupy kapitałowej i będących naszymi wieloletnimi partnerami.
Ogledziny nieruchomosci
Mozemy zorganizowac ogledziny nieruchomosci, w dogodnym dla Panstwa terminie. W tym celu prosimy o skontaktowanie sie z agentem odpowiedzialnym za te oferte.
Rezerwacja nieruchomosci
Nieruchomosc moze byc zarezerwowana i wycofana ze sprzedazy po wplaceniu zadatku, po czym ustaje ogladanie z innymi kupujacymi i rozpoczyna sie przygotowanie dokumentow do zawarcia umowy przedwstepnej i ostatecznej.
Prosimy o kontakt z agentem odpowiedzialnym za te nieruchomosc w celu uzyskania szczegolowych informacji dotyczacych procedury zakupu i metod platnosci.
Uslugi dodatkowe i obsluga posprzedazowa
Jestesmy sprawdzona firma o dobrej reputacji i wieloletnim doswiadczeniu. Dlatego bedziemy z Panstwem nie tylko w trakcie zakupu, ale takze po jego zakonczeniu, swiadczac na Panstwa zyczenie dodatkowe uslugi, aby w pelni i bezproblemowo korzystac z nowo zakupionej nieruchomosci. Uslugi, ktore mozemy zaoferowac, obejmuja uzyskanie zgody na kredyt hipoteczny z bulgarskiego banku, ubezpieczenia majatku ruchomego i nieruchomosci, ubezpieczenia na zycie, ubezpieczenia medyczne i samochodowe, prace budowlane i remontowe, meblowanie, uslugi prawne i ksiegowe itp.
W trakcie budowy. Planowane zakończenie - 11.2027.
Nieruchomość o powierzchni całkowitej 114,31 m², położona na 2. piętrze, z ekspozycją wschodnią. Składa się z przedpokoju, toalety, łazienki, dwóch sypialni, salonu z kuchnią i jadalnią oraz tarasu o powierzchni 33,96 m².
Wydawany jest w stopniu ukończenia według bułgarskiego kodeksu cywilnego:
• Okna PCV o profilu sześciokomorowym, niemieckim z pakietem trzyszybowym, z jedną szybą niskoemisyjną;
• drzwi wejściowe - pancerne, zamykane na wysokiej klasy zamek tajny;
• ogrzewanie elektryczne z możliwością podłączenia klimatyzatorów;
• wykończenie ścian i sufitów do poziomu gładzi gipsowej z zastosowaniem narożników aluminiowych na krawędziach;
• stropy pomieszczeń nieogrzewanych graniczące z pomieszczeniami ogrzewanymi, z izolacją termiczną z ekstrudowanego polistyrenu XPS;
• pomieszczenia sanitarne i mokre wypełniane są tynkiem wapienno-cementowym;
• wylewka cementowa na podłodze;
• tarasy z płyt granitowych;
• zamontowany panel zlokalizowany w pobliżu drzwi wejściowych;
• instalacje niskoprądowe – zgodnie z projektem, ze skrzynką niskoprądową zamontowaną przy drzwiach wejściowych;
• okablowanie systemu bezpieczeństwa;
• montaż wideodomofonu - okablowanie wykonane, wideodomofon;
• zainstalowane liczniki energii elektrycznej.
Budynek powstaje w pobliżu bulwaru Władimira Wazowa, głównego bulwaru i arterii komunikacyjnej stolicy o długości 5 km, z dogodnym dojazdem komunikacją miejską (linie autobusowe 120, 78), 3 km od stacji metra Teatralna. Obecnie trwają prace nad przedłużeniem linii metra M3 ze stacji Hadji Dimitar do osiedla Levski G.
Wzdłuż przedłużenia bulwaru Władimira Wazowa zaplanowano budowę 3 stacji metra:
• stacja metra „Władimir Wazow” – zaledwie 450 metrów od budynku;
• Stacja metra „Trakia” – 500 metrów;
• stacja metra „Stadion im. Georgija Asparuchowa” – 1,5 km od budynku.
Odległości do kluczowych miejsc, takich jak:
• stadion „Vivacom Arena – Georgi Asparuhov” – 1 km;
• Decathlon – 480 m, kompleks pływacko-rozrywkowy Varadero – 500 m;
• Ulica „Oborishte” i centrum Serdika, bulwar „Madryt”. – 3,5 km;
• Park „Gerena” – 1 km, park „Zaimov” – 5 km;
• centrum Sofii, bulwar Witosza – 7 km;
• Lotnisko w Sofii – 5 km.
Placówki edukacyjne i przedszkola w okolicy: Szkoła Podstawowa nr 199 im. św. Jana Apostoła Teologa – 400 m, Gimnazjum nr 130 im. Stefana Karadży – 900 m, Gimnazjum nr 44 im. Neofita Bozweliego – 2 km, Szkoła Podstawowa nr 49 im. Benito Juareza – 1,9 km; Szkoła Podstawowa nr 92 „Mechta”, Filia Szkoły Podstawowej nr 91 „Słoneczny Zakątek”, Szkoła Podstawowa nr 20 „Park Jaśminowa”.
O budynku
Budynek składa się z dwóch części z apartamentami na 9 kondygnacjach mieszkalnych. Nieruchomości są dwupokojowe, trzypokojowe i czteropokojowe. Istnieje możliwość zakupu garaży w cenach od 26 500 euro, a także komórek lokatorskich.
Dane techniczne budynku:
• monolityczna, żelbetowa, bezbelkowa konstrukcja płyty fundamentowej;
• z hydroizolacją fundamentów budynku - Kryton international Inc. Krystol Waterstop System;
• murowanie z cegły ceramicznej WIENERBERGER;
• ściany zewnętrzne osłonowe - pustak ceramiczny Porotherm gr. 25 cm i system ocieplenia /styropian EPS/;
• ściany wewnętrzne murowane - pustak ceramiczny Porotherm o grubości 12 cm, z izolacją akustyczną między mieszkaniami;
• dach płaski z warstwami układanymi szczegółowo - paroizolacja, izolacja termiczna z ekstrudowanego polistyrenu - XPS, jastrych zbrojony ze spadkiem, dwie warstwy papy hydroizolacyjnej w rolkach; bez mostków termicznych na elementach konstrukcyjnych;
• części wspólne - płytki granitowe lub kamień naturalny;
• windy z luksusowymi kabinami z automatycznymi drzwiami.
Czekamy na Państwa zapytanie.
Jeśli chcesz umówić się na obejrzenie interesującej Cię nieruchomości lub odwiedzić jedno z naszych biur, skontaktuj się z nami. Aby umówić się na spotkanie lub oględziny, zadzwoń pod numer telefonu podany w ogłoszeniu lub wyślij zapytanie e-mailem. Nasz konsultant pomoże Ci w ustaleniu wszystkich niezbędnych szczegółów i ustali dogodny termin.
Szukasz odpowiedniej nieruchomości dla siebie?
Skontaktuj się z nami i opowiedz nam o swoich potrzebach i preferencjach. Nasz zespół przeprowadzi dogłębną analizę rynku, aby zaoferować Ci nieruchomości idealnie odpowiadające Twoim kryteriom. Posiadamy wyjątkowe portfolio wysokiej jakości, ekskluzywnych domów, dostępnych wyłącznie dla naszych klientów. Aby być pierwszym, który otrzyma o nich informacje – skontaktuj się z nami.
Usługi dodatkowe
Jako ceniony klient naszej firmy, będziesz miał przywilej korzystania z usług naszego doświadczonego zespołu prawnego całkowicie bezpłatnie. Ponadto oferujemy kompleksowe rozwiązania, w tym ubezpieczenia nieruchomości, bezpłatne doradztwo finansowe, a także korzystne warunki finansowania. Nasze usługi obejmują również odsprzedaż, wynajem i zarządzanie nieruchomościami. Zapewniamy wysokiej jakości remonty i wyposażenie wnętrz za pośrednictwem wyspecjalizowanych firm wchodzących w skład naszej grupy kapitałowej i będących naszymi wieloletnimi partnerami.
Ogledziny nieruchomosci
Mozemy zorganizowac ogledziny nieruchomosci, w dogodnym dla Panstwa terminie. W tym celu prosimy o skontaktowanie sie z agentem odpowiedzialnym za te oferte.
Rezerwacja nieruchomosci
Nieruchomosc moze byc zarezerwowana i wycofana ze sprzedazy po wplaceniu zadatku, po czym ustaje ogladanie z innymi kupujacymi i rozpoczyna sie przygotowanie dokumentow do zawarcia umowy przedwstepnej i ostatecznej.
Prosimy o kontakt z agentem odpowiedzialnym za te nieruchomosc w celu uzyskania szczegolowych informacji dotyczacych procedury zakupu i metod platnosci.
Uslugi dodatkowe i obsluga posprzedazowa
Jestesmy sprawdzona firma o dobrej reputacji i wieloletnim doswiadczeniu. Dlatego bedziemy z Panstwem nie tylko w trakcie zakupu, ale takze po jego zakonczeniu, swiadczac na Panstwa zyczenie dodatkowe uslugi, aby w pelni i bezproblemowo korzystac z nowo zakupionej nieruchomosci. Uslugi, ktore mozemy zaoferowac, obejmuja uzyskanie zgody na kredyt hipoteczny z bulgarskiego banku, ubezpieczenia majatku ruchomego i nieruchomosci, ubezpieczenia na zycie, ubezpieczenia medyczne i samochodowe, prace budowlane i remontowe, meblowanie, uslugi prawne i ksiegowe itp.
Zobacz tekst w innych językach (tłumaczenie automatyczne)
Lokalizacja (około)
Przybliżone położenie nieruchomości/kompleksu zaznaczono na mapie czerwonym znacznikiem.
Nasze top oferty do sprzedaz Sofia, Bulgaria
Nieruchomości według rejonu, Sofia
- Nieruchomości w dzielnica"Malinova Dolina"
- Nieruchomości w dzielnica"Krustova Vada"
- Nieruchomości w dzielnica"Manastirski Livadi - East"
- Nieruchomości w dzielnica"Center"
- Nieruchomości w dzielnica"Boyana"
- Nieruchomości w dzielnica"Vitosha"
- Nieruchomości w dzielnica"Dragalevtsi"
- Nieruchomości w dzielnica"Lozenets"
- Nieruchomości w dzielnica"Manastirski Livadi - West"
- Nieruchomości w dzielnica"Mladost 3"
Popularne wyszukiwania
wszystkie według wyszukiwania


ORIGINAL: