Liczba pięter w budynku
7
Piętro
5
Winda
tak
pokoie
4
Sypialnie
2
Łazienki
2
Balkony (tarasy) szt.:
1
Piwnica
tak

Całkowita powierzchnia
117.56 m2
Powierzchnia zabudowana
99.61 m2
Części wspólne
17.95 m2
Stan
Przedsprzedaż
Planowany początek
August 2025
Oczekiwane zakończenie
December 2026

Cena
206 000 €
1 752 €/m2
Zapytanie o więcej informacji lub oględziny
Pakiet informacyjny
Odległości
Ostatnieia aktualizacja
20.11.2025 r.
Odległości od nieruchomości do innych ważnych obiektów
- Lotnisko Sofia (SOF): 14km
Widoki z nieruchomości
- Widoki na miasto
Budowa
- Cegła
- Konstrukcja żelbetowa
Ogrzewanie
- Centralne ogrzewanie
Informacje administracyjne dotyczące oferty
- Elektryczność
- Komunalne dostarczanie wody
- izolacja ścian zewnętrznych
- luksusowe windy
- Odwodnienie sieciowe
- płaski dach
- płytki granitowe
- renderowanie dekoracyjne
- Łazienka z toaletą
- Balkon
- Klatka schodowa wewnętrzna
- Wewnętrzna łazienka
- Wewnętrzna ubikacja
Tekst został automatycznie przetłumaczony przez oprogramowanie i może zawierać nieścisłości.
Możesz zobaczyć tekst w oryginalnym języku lub przetłumaczyć na inne języki:
Oferujemy na sprzedaż mieszkanie w nowym budynku mieszkalnym, położonym w jednej z najbardziej preferowanych części dzielnicy Lyulin. Znajduje się w cichej i spokojnej okolicy, blisko parku, z szybkim i łatwym połączeniem z centrum miasta.
Obszar ten jest preferowany do zamieszkania ze względu na dobrze rozwiniętą infrastrukturę i komunikację, które są warunkiem koniecznym do komfortowego życia. W pobliżu znajdują się hipermarkety, szkoły, przedszkola, ośrodki medyczne, siłownie, tereny parkowe i dogodny transport publiczny, w tym metro, usługi samochodowe, warsztaty naprawcze, stacje benzynowe, które uzupełniają wygodę i funkcjonalność i spełniają najwyższe wymagania każdego klienta.
Zaprojektowano 7-piętrowy budynek mieszkalny wolnostojący z naziemnymi miejscami parkingowymi i garażami.
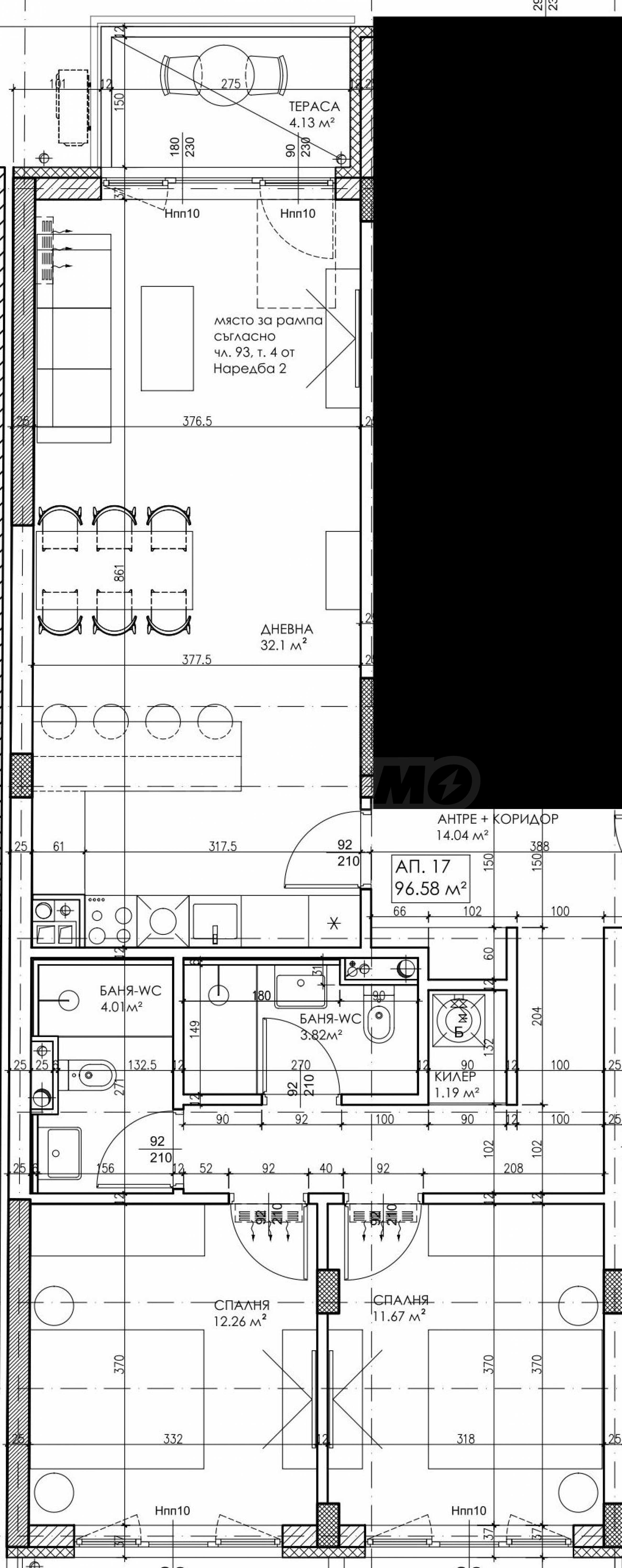
Mieszkanie jest lokalem trzypokojowym, o powierzchni całkowitej 117,56 mkw. (powierzchnia netto 96,58 mkw. + powierzchnie wspólne 17,95 mkw.) i znajduje się na piątym piętrze.
Dystrybucja:
Mieszkanie oferowane jest na sprzedaż w wykończeniu wysokiej jakości według bułgarskich standardów, z tynkiem i jastrychem.
Nowoczesne i wysokiej jakości budownictwo, wysoki standard jakości zastosowanych materiałów:
Sprawdzony deweloper z bogatym portfolio zrealizowanych budynków, które zachwycają jakością i wizją!
Rozpoczęcie budowy – wiosna 2025 r.
Ustawa 16 - Grudzień 2026
Elastyczny system płatności - dostosowany do etapów budowy, możliwości i życzeń kupującego:
Brak prowizji od kupującego!
Czekamy na Państwa zapytanie.
Jeśli chcesz umówić się na obejrzenie interesującej Cię nieruchomości lub odwiedzić jedno z naszych biur, skontaktuj się z nami. Aby umówić się na spotkanie lub obejrzenie nieruchomości, możesz zadzwonić pod numer telefonu podany w ogłoszeniu lub wysłać zapytanie e-mailem. Nasz konsultant pomoże Ci we wszystkich niezbędnych szczegółach i ustali dogodny dla Ciebie termin.
Szukasz odpowiedniej nieruchomości dla siebie?
Nie wahaj się skontaktować z nami i opowiedzieć nam o swoich potrzebach i preferencjach. Nasz zespół przeprowadzi dokładne badanie rynku, aby zaoferować Ci nieruchomości, które dokładnie spełniają Twoje kryteria. Posiadamy wyjątkowe portfolio wysokiej jakości i ekskluzywnych domów, które są dostępne tylko dla naszych klientów. Aby jako pierwszy otrzymać informacje o nich – skontaktuj się z nami.
Usługi dodatkowe
Jako ceniony klient naszej firmy, będziesz miał przywilej korzystania z usług naszego doświadczonego zespołu prawnego całkowicie bezpłatnie. Ponadto oferujemy kompleksowe rozwiązania, w tym ubezpieczenia majątkowe, bezpłatne doradztwo finansowe, a także korzystne warunki finansowania. Nasze usługi obejmują również obszar odsprzedaży, wynajmu i zarządzania nieruchomościami. Zapewniamy wysokiej jakości renowację i wyposażenie za pośrednictwem wyspecjalizowanych firm, które są częścią naszej grupy korporacyjnej i są naszymi wieloletnimi partnerami zawodowymi.
Obszar ten jest preferowany do zamieszkania ze względu na dobrze rozwiniętą infrastrukturę i komunikację, które są warunkiem koniecznym do komfortowego życia. W pobliżu znajdują się hipermarkety, szkoły, przedszkola, ośrodki medyczne, siłownie, tereny parkowe i dogodny transport publiczny, w tym metro, usługi samochodowe, warsztaty naprawcze, stacje benzynowe, które uzupełniają wygodę i funkcjonalność i spełniają najwyższe wymagania każdego klienta.
Zaprojektowano 7-piętrowy budynek mieszkalny wolnostojący z naziemnymi miejscami parkingowymi i garażami.
Mieszkanie jest lokalem trzypokojowym, o powierzchni całkowitej 117,56 mkw. (powierzchnia netto 96,58 mkw. + powierzchnie wspólne 17,95 mkw.) i znajduje się na piątym piętrze.
Dystrybucja:
- korytarz;
- salon z kuchnią i jadalnią;
- dwie sypialnie;
- dwie łazienki z toaletami;
- taras.
Mieszkanie oferowane jest na sprzedaż w wykończeniu wysokiej jakości według bułgarskich standardów, z tynkiem i jastrychem.
Nowoczesne i wysokiej jakości budownictwo, wysoki standard jakości zastosowanych materiałów:
- Monolityczna konstrukcja żelbetowa, odporna na trzęsienia ziemi;
- Ściany zewnętrzne i wewnętrzne wykonane z czerwonej cegły ceramicznej od wiodącego europejskiego producenta Wienerberger;
- Zapewniona izolacja cieplna, wodna i akustyczna;
- Tynki wewnętrzne wykonane z naturalnego gipsu dla zdrowego środowiska;
- Instalacje wykonywane z materiałów certyfikowanych, pochodzących od renomowanych producentów;
- Stylowa fasada o klasycznej architekturze;
- Stolarka wysokiej jakości, profil pięciokomorowy produkcji niemieckiej i potrójne szyby;
- Szkło wysokoenergetyczne i niskoemisyjne;
- Duża i cicha winda. Piękne, mocne i bezpieczne drzwi zewnętrzne;
- Reprezentacyjne części wspólne z nowoczesnymi, zmywalnymi tynkami wewnętrznymi w ciepłych kolorach i naturalną granitową podłogą na klatkach schodowych i korytarzach.
- Materiały zapewniające łatwą konserwację, trwałość i poczucie komfortu w domu.
- Budynek będzie ogrzewany przez centralną elektrociepłownię (ciepła woda i ogrzewanie)
Sprawdzony deweloper z bogatym portfolio zrealizowanych budynków, które zachwycają jakością i wizją!
Rozpoczęcie budowy – wiosna 2025 r.
Ustawa 16 - Grudzień 2026
Elastyczny system płatności - dostosowany do etapów budowy, możliwości i życzeń kupującego:
- 40% - umowa przedwstępna
- 40% - po zakończeniu stanu surowego (Ustawa 14)
- 20% - na Akt 16
Brak prowizji od kupującego!
Czekamy na Państwa zapytanie.
Jeśli chcesz umówić się na obejrzenie interesującej Cię nieruchomości lub odwiedzić jedno z naszych biur, skontaktuj się z nami. Aby umówić się na spotkanie lub obejrzenie nieruchomości, możesz zadzwonić pod numer telefonu podany w ogłoszeniu lub wysłać zapytanie e-mailem. Nasz konsultant pomoże Ci we wszystkich niezbędnych szczegółach i ustali dogodny dla Ciebie termin.
Szukasz odpowiedniej nieruchomości dla siebie?
Nie wahaj się skontaktować z nami i opowiedzieć nam o swoich potrzebach i preferencjach. Nasz zespół przeprowadzi dokładne badanie rynku, aby zaoferować Ci nieruchomości, które dokładnie spełniają Twoje kryteria. Posiadamy wyjątkowe portfolio wysokiej jakości i ekskluzywnych domów, które są dostępne tylko dla naszych klientów. Aby jako pierwszy otrzymać informacje o nich – skontaktuj się z nami.
Usługi dodatkowe
Jako ceniony klient naszej firmy, będziesz miał przywilej korzystania z usług naszego doświadczonego zespołu prawnego całkowicie bezpłatnie. Ponadto oferujemy kompleksowe rozwiązania, w tym ubezpieczenia majątkowe, bezpłatne doradztwo finansowe, a także korzystne warunki finansowania. Nasze usługi obejmują również obszar odsprzedaży, wynajmu i zarządzania nieruchomościami. Zapewniamy wysokiej jakości renowację i wyposażenie za pośrednictwem wyspecjalizowanych firm, które są częścią naszej grupy korporacyjnej i są naszymi wieloletnimi partnerami zawodowymi.
Zobacz tekst w innych językach (tłumaczenie automatyczne)
Lokalizacja (około)
Przybliżone położenie nieruchomości/kompleksu zaznaczono na mapie czerwonym znacznikiem.
Nasze top oferty do sprzedaz Sofia, Bulgaria
Nieruchomości według rejonu, Sofia
- Nieruchomości w dzielnica"Malinova Dolina"
- Nieruchomości w dzielnica"Krustova Vada"
- Nieruchomości w dzielnica"Manastirski Livadi - East"
- Nieruchomości w dzielnica"Center"
- Nieruchomości w dzielnica"Boyana"
- Nieruchomości w dzielnica"Dragalevtsi"
- Nieruchomości w dzielnica"Vitosha"
- Nieruchomości w dzielnica"Lozenets"
- Nieruchomości w dzielnica"Ovcha Kupel"
- Nieruchomości w dzielnica"Mladost 3"
Popularne wyszukiwania
wszystkie według wyszukiwania


ORIGINAL: