Liczba pięter w budynku
10
Piętro
4
Winda
tak
pokoie
2
Sypialnie
1
Łazienki
1
Balkony (tarasy) szt.:
1

Całkowita powierzchnia
72.45 m2
Powierzchnia zabudowana
61.95 m2
Części wspólne
10.50 m2
Stan
W trakcie budowy
Planowane zakończenie
July 2028

Cena
123 165 €
1 700 €/m2
Bez prowizji od kupującego
Zapytanie o więcej informacji lub oględziny
Pakiet informacyjny
Odległości
Ostatnieia aktualizacja
20.01.2026 r.
Liczba zapytań
1 szt. (za ostatnie 30 dni)
Odległości od nieruchomości do innych ważnych obiektów
- Morze: 2.3km
- Lotnisko Burgas (BOJ): 11.2km
Widoki z nieruchomości
- Widoki na miasto
Budowa
- Cegła
Informacje administracyjne dotyczące oferty
- Elektryczność
- Komunalne dostarczanie wody
- Odwodnienie sieciowe
- Niedokończone wnętrze
Tekst został automatycznie przetłumaczony przez oprogramowanie i może zawierać nieścisłości.
Możesz zobaczyć tekst w oryginalnym języku lub przetłumaczyć na inne języki:
Rozpoczęto budowę.
Oczekiwany Akt 16 - lipiec 2028
Oferujemy na sprzedaż mieszkanie jednopokojowe w nowym, wielofunkcyjnym budynku z lokalami mieszkalnymi i usługowymi, w dzielnicy „Bratya Miladinovi” w Burgas.
Zakup bez prowizji.
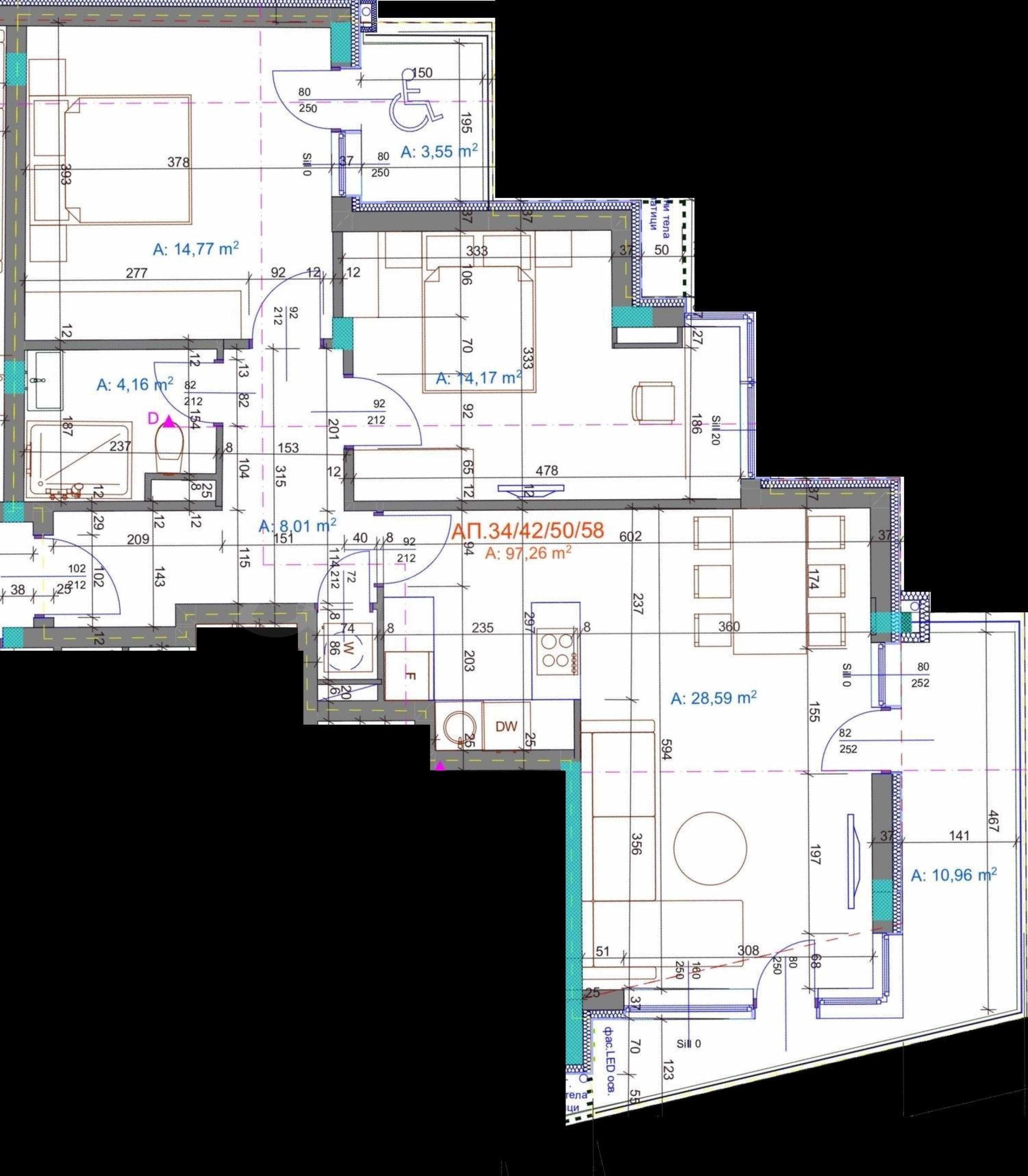
Nieruchomość o powierzchni całkowitej 72,45 mkw. położona jest na 4 piętrze i ma następujący rozkład: przedpokój, pomieszczenie gospodarcze, salon z kuchnią, sypialnia, łazienka z WC, taras.
Nieruchomość sprzedawana jest w stanie ukończonym, zgodnie z bułgarskimi normami budowlanymi, wysoka jakość wykonania.
Budynek o nowoczesnej architekturze, zaprojektowany na 10 piętrach z dwiema windami, dwu- i trzypokojowe apartamenty o powierzchni od 69,34 mkw. do 136,39 mkw., a także powierzchnie komercyjne - biura i sklepy, dwa poziomy z garażami podziemnymi z rampą i platformą hydrauliczną.
Lokalizacja
W pobliżu znajdują się sklepy Billa, Lidl, Jysk oraz przystanki komunikacji miejskiej, z szybkim dojazdem głównymi drogami do każdego punktu miasta.
Czekamy na Państwa zapytanie.
Jeśli chcesz umówić się na obejrzenie interesującej Cię nieruchomości lub odwiedzić jedno z naszych biur, skontaktuj się z nami. Aby umówić się na spotkanie lub oględziny, zadzwoń pod numer telefonu podany w ogłoszeniu lub wyślij zapytanie e-mailem. Nasz konsultant pomoże Ci w ustaleniu wszystkich niezbędnych szczegółów i ustali dogodny termin.
Szukasz odpowiedniej nieruchomości dla siebie?
Skontaktuj się z nami i opowiedz nam o swoich potrzebach i preferencjach. Nasz zespół przeprowadzi dogłębną analizę rynku, aby zaoferować Ci nieruchomości idealnie odpowiadające Twoim kryteriom. Posiadamy wyjątkowe portfolio wysokiej jakości, ekskluzywnych domów, dostępnych wyłącznie dla naszych klientów. Aby być pierwszym, który otrzyma o nich informacje – skontaktuj się z nami.
Usługi dodatkowe
Jako ceniony klient naszej firmy, będziesz miał przywilej korzystania z usług naszego doświadczonego zespołu prawnego całkowicie bezpłatnie. Ponadto oferujemy kompleksowe rozwiązania, w tym ubezpieczenia majątkowe, bezpłatne doradztwo finansowe, a także korzystne warunki finansowania. Nasze usługi obejmują również odsprzedaż, wynajem i zarządzanie nieruchomościami. Zapewniamy wysokiej jakości remonty i wyposażenie wnętrz za pośrednictwem wyspecjalizowanych firm wchodzących w skład naszej grupy kapitałowej i będących naszymi wieloletnimi partnerami.
Oczekiwany Akt 16 - lipiec 2028
Oferujemy na sprzedaż mieszkanie jednopokojowe w nowym, wielofunkcyjnym budynku z lokalami mieszkalnymi i usługowymi, w dzielnicy „Bratya Miladinovi” w Burgas.
Zakup bez prowizji.
Nieruchomość o powierzchni całkowitej 72,45 mkw. położona jest na 4 piętrze i ma następujący rozkład: przedpokój, pomieszczenie gospodarcze, salon z kuchnią, sypialnia, łazienka z WC, taras.
Nieruchomość sprzedawana jest w stanie ukończonym, zgodnie z bułgarskimi normami budowlanymi, wysoka jakość wykonania.
Budynek o nowoczesnej architekturze, zaprojektowany na 10 piętrach z dwiema windami, dwu- i trzypokojowe apartamenty o powierzchni od 69,34 mkw. do 136,39 mkw., a także powierzchnie komercyjne - biura i sklepy, dwa poziomy z garażami podziemnymi z rampą i platformą hydrauliczną.
Lokalizacja
W pobliżu znajdują się sklepy Billa, Lidl, Jysk oraz przystanki komunikacji miejskiej, z szybkim dojazdem głównymi drogami do każdego punktu miasta.
Czekamy na Państwa zapytanie.
Jeśli chcesz umówić się na obejrzenie interesującej Cię nieruchomości lub odwiedzić jedno z naszych biur, skontaktuj się z nami. Aby umówić się na spotkanie lub oględziny, zadzwoń pod numer telefonu podany w ogłoszeniu lub wyślij zapytanie e-mailem. Nasz konsultant pomoże Ci w ustaleniu wszystkich niezbędnych szczegółów i ustali dogodny termin.
Szukasz odpowiedniej nieruchomości dla siebie?
Skontaktuj się z nami i opowiedz nam o swoich potrzebach i preferencjach. Nasz zespół przeprowadzi dogłębną analizę rynku, aby zaoferować Ci nieruchomości idealnie odpowiadające Twoim kryteriom. Posiadamy wyjątkowe portfolio wysokiej jakości, ekskluzywnych domów, dostępnych wyłącznie dla naszych klientów. Aby być pierwszym, który otrzyma o nich informacje – skontaktuj się z nami.
Usługi dodatkowe
Jako ceniony klient naszej firmy, będziesz miał przywilej korzystania z usług naszego doświadczonego zespołu prawnego całkowicie bezpłatnie. Ponadto oferujemy kompleksowe rozwiązania, w tym ubezpieczenia majątkowe, bezpłatne doradztwo finansowe, a także korzystne warunki finansowania. Nasze usługi obejmują również odsprzedaż, wynajem i zarządzanie nieruchomościami. Zapewniamy wysokiej jakości remonty i wyposażenie wnętrz za pośrednictwem wyspecjalizowanych firm wchodzących w skład naszej grupy kapitałowej i będących naszymi wieloletnimi partnerami.
Zobacz tekst w innych językach (tłumaczenie automatyczne)
Lokalizacja (około)
Przybliżone położenie nieruchomości/kompleksu zaznaczono na mapie czerwonym znacznikiem.
Nasze top oferty do sprzedaz Burgas, Bulgaria
Nieruchomości według rejonu, Burgas
- Nieruchomości w dzielnica"Sarafovo"
- Nieruchomości w dzielnica"Horizont"
- Nieruchomości w dzielnica"Slaveykov"
- Nieruchomości w dzielnica"Center"
- Nieruchomości w dzielnica"Meden rudnik - zona V"
- Nieruchomości w dzielnica"Kraymorie"
- Nieruchomości w dzielnica"Meden rudnik - zona D"
- Nieruchomości w dzielnica"Bratya Miladinovi"
- Nieruchomości w dzielnica"Madika"
- Nieruchomości w dzielnica"Zornitsa"


ORIGINAL: