Klasa budynku/kompleksu
Wysoki standard
Liczba pięter w budynku
7
Piętro
4
Winda
tak
pokoie
3
Sypialnie
2
Łazienki
1
Balkony (tarasy) szt.:
1
Toalety
1

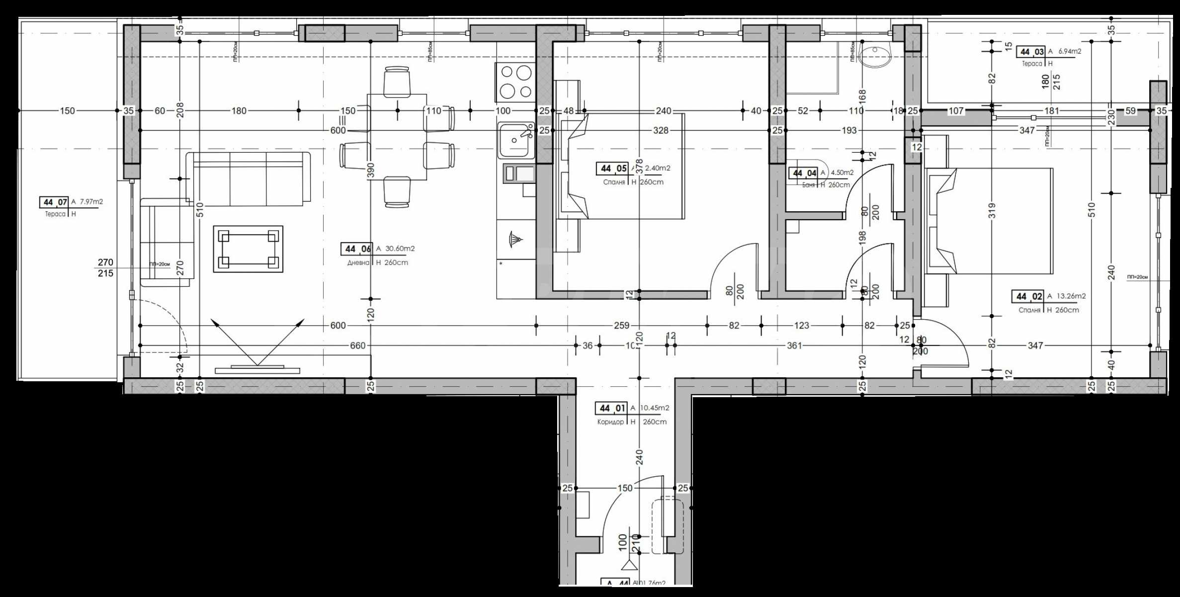
Całkowita powierzchnia
117.28 m2
Powierzchnia zabudowana
101.76 m2
Części wspólne
15.52 m2
Stan
W trakcie budowy
Planowane zakończenie
December 2027

Cena
145 000 €
1 236 €/m2
Bez prowizji od kupującego
Zapytanie o więcej informacji lub oględziny
Pakiet informacyjny
Odległości
Ostatnieia aktualizacja
16.04.2026 r.
Odległości od nieruchomości do innych ważnych obiektów
- Centrum miasta: 2.2km
- Lotnisko Plovdiv (PDV): 15.8km
Widoki z nieruchomości
- Widoki na miasto
Budowa
- Cegła
- Konstrukcja żelbetowa
Informacje administracyjne dotyczące oferty
- Elektryczność
- Komunalne dostarczanie wody
- Woda
- Kanalizacja komunalna
- Łazienka z toaletą
- Balkon
- Niedokończone wnętrze
- Ramy okienne PCV
- Winda
- W pobliżu sklepy spożywcze
Tekst został automatycznie przetłumaczony przez oprogramowanie i może zawierać nieścisłości.
Możesz zobaczyć tekst w oryginalnym języku lub przetłumaczyć na inne języki:
Prezentujemy przestronne, dwupokojowe mieszkanie w nowym kompleksie w dzielnicy Karshiyaka. Doskonała lokalizacja w pobliżu rzeki Maricy, Kanału Wioślarskiego, Uniwersyteckiego Szpitala Wieloprofilowego UMBAL Plovdiv, Uniwersytetu w Płowdiwie, szkół językowych, sklepu Alati i kompleksu Ogrodów Maritsa.
Akt 16 ma się zakończyć pod koniec 2027 roku.
BRAK PROWIZJI!
Projekt składa się z 2 budynków i czterech części mieszkalnych. Części mieszkalne są typowe – lustrzane i powtarzalne. Oferuje kawalerki, mieszkania dwupokojowe, trzypokojowe i czteropokojowe, komórki garażowe oraz miejsca parkingowe, zrealizowane w całości w garażu podziemnym, a także otoczenie parkowe z dwoma kącikami dla dzieci.
Nieruchomość o powierzchni całkowitej 117,28 mkw. położona jest na 4 piętrze w 7.
Mieszkania przekazywane są w stanie wykończenia zgodnym z bułgarskim kodeksem cywilnym:
• okna wysokiej jakości 7-komorowe z pakietem trzyszybowym;
• przygotowanie domów do stosowania rozwiązań typu „smart home”;
• wygłuszenie podłóg.
Dodatkowe udogodnienia zapewniane przez projekty:
• instalacja fotowoltaiczna na dachach - dla zapewnienia ogólnego zużycia - części wspólne, oświetlenie parku itp.;
• 24-godzinny monitoring wideo;
• stacje ładowania pojazdów elektrycznych – 22 kW;
• centralna instalacja do filtrowania i odkamieniania wody pitnej;
• instalacja do wykorzystania wody deszczowej na potrzeby nawadniania wraz ze zbiornikiem.
Standardowy schemat płatności:
• umowa przedwstępna 30%;
• 50% dla Ustawy 14;
• 20% dla Ustawy 15.
Aby uzyskać więcej informacji skontaktuj się z brokerem odpowiedzialnym za ofertę.
Akt 16 ma się zakończyć pod koniec 2027 roku.
BRAK PROWIZJI!
Projekt składa się z 2 budynków i czterech części mieszkalnych. Części mieszkalne są typowe – lustrzane i powtarzalne. Oferuje kawalerki, mieszkania dwupokojowe, trzypokojowe i czteropokojowe, komórki garażowe oraz miejsca parkingowe, zrealizowane w całości w garażu podziemnym, a także otoczenie parkowe z dwoma kącikami dla dzieci.
Nieruchomość o powierzchni całkowitej 117,28 mkw. położona jest na 4 piętrze w 7.
Mieszkania przekazywane są w stanie wykończenia zgodnym z bułgarskim kodeksem cywilnym:
• okna wysokiej jakości 7-komorowe z pakietem trzyszybowym;
• przygotowanie domów do stosowania rozwiązań typu „smart home”;
• wygłuszenie podłóg.
Dodatkowe udogodnienia zapewniane przez projekty:
• instalacja fotowoltaiczna na dachach - dla zapewnienia ogólnego zużycia - części wspólne, oświetlenie parku itp.;
• 24-godzinny monitoring wideo;
• stacje ładowania pojazdów elektrycznych – 22 kW;
• centralna instalacja do filtrowania i odkamieniania wody pitnej;
• instalacja do wykorzystania wody deszczowej na potrzeby nawadniania wraz ze zbiornikiem.
Standardowy schemat płatności:
• umowa przedwstępna 30%;
• 50% dla Ustawy 14;
• 20% dla Ustawy 15.
Aby uzyskać więcej informacji skontaktuj się z brokerem odpowiedzialnym za ofertę.
Zobacz tekst w innych językach (tłumaczenie automatyczne)
Lokalizacja (około)
Przybliżone położenie nieruchomości/kompleksu zaznaczono na mapie czerwonym znacznikiem.
Nasze top oferty do sprzedaz Plovdiv, Bulgaria


ORIGINAL: