Liczba pięter w budynku
5
Piętro
3
Winda
tak
pokoie
2
Sypialnie
1
Łazienki
1
Balkony (tarasy) szt.:
1
Toalety
1

Całkowita powierzchnia
76.86 m2
Powierzchnia zabudowana
65.56 m2
Części wspólne
11.30 m2
Ogród
5.46 m2

Cena
84 546 €
(bez VAT)
1 100 €/m2
(bez VAT)
Bez prowizji od kupującego
Zapytanie o więcej informacji lub oględziny
Pakiet informacyjny
Okna
Ramy okienne PCV
Odległości
Ostatnieia aktualizacja
08.11.2025 r.
Liczba zapytań
1 szt. (za ostatnie 30 dni)
Odległości od nieruchomości do innych ważnych obiektów
- Lotnisko Plovdiv (PDV): 94km
Budowa
- Cegła
Informacje administracyjne dotyczące oferty
- Elektryczność
- Woda
- kamień naturalny
- luksusowe windy
- Odwodnienie sieciowe
- płytki granitowe
- spadzisty dach
- Balkon
- Ramy okienne PCV
Tekst został automatycznie przetłumaczony przez oprogramowanie i może zawierać nieścisłości.
Możesz zobaczyć tekst w oryginalnym języku lub przetłumaczyć na inne języki:
Oferujemy apartament z jedną sypialnią i ogródkiem w nowym budynku o nowoczesnym designie i architekturze, zaledwie kilka metrów od centrum Welingradu i strefy SPA.
Blisko basenów mineralnych, hoteli, parku, szpitala, apteki, przedszkola, szkoły i sklepów.
Budynek jest w trakcie budowy i oferuje przestronne i jasne apartamenty z dwiema i trzema sypialniami oraz miejsca parkingowe.
Nadaje się na dom rodzinny lub nieruchomość wakacyjną.
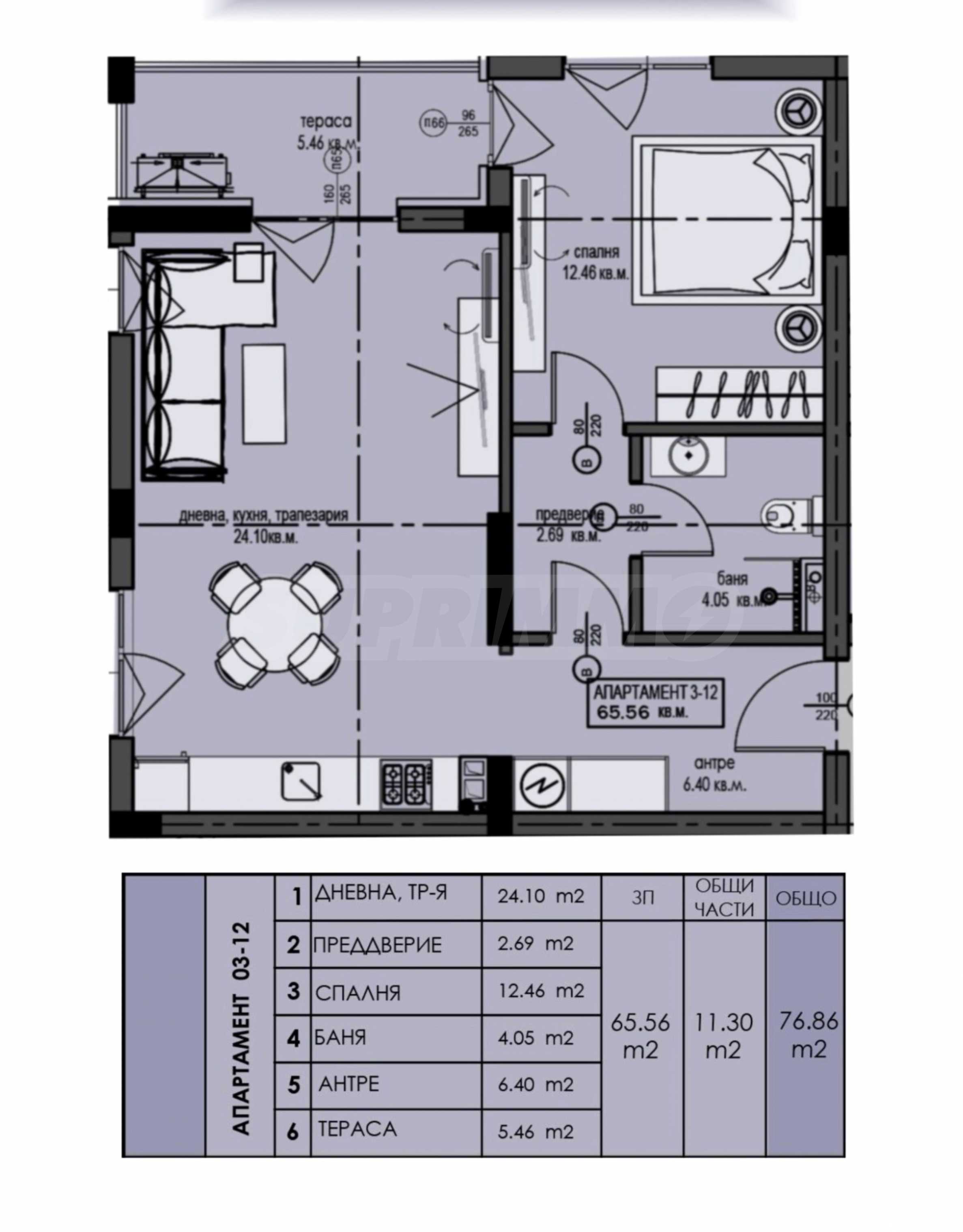
Układ nieruchomości: powierzchnia całkowita 76,86 m2 (powierzchnia netto 65,56 m2 + powierzchnie wspólne 11,30 m2), położone na trzecim piętrze.
Możliwość zakupu miejsca parkingowego.
BRAK PROWIZJI!
Piękna przyroda, źródła mineralne i warunki klimatyczne sprzyjające leczeniu wielu chorób sprawiają, że Welingrad jest popularnym celem podróży zarówno dla turystów bułgarskich, jak i zagranicznych. Na terenie miasta znajdują się 3 sanatoria, ponad 60 hoteli i domów wypoczynkowych, 140 placówek gastronomicznych i rozrywkowych. Zmodernizowano 6 kompleksów wypoczynkowych, oferujących szeroki wachlarz usług balneologicznych. Zmodernizowano publiczne kąpieliska mineralne i wybudowano 22 baseny mineralne, zarówno odkryte, jak i kryte.
Czekamy na Państwa zapytanie.
Jeśli chcesz umówić się na obejrzenie interesującej Cię nieruchomości lub odwiedzić jedno z naszych biur, skontaktuj się z nami. Aby umówić się na spotkanie lub oględziny, zadzwoń pod numer telefonu podany w ogłoszeniu lub wyślij zapytanie e-mailem. Nasz konsultant pomoże Ci w ustaleniu wszystkich niezbędnych szczegółów i ustali dogodny termin.
Szukasz odpowiedniej nieruchomości dla siebie?
Skontaktuj się z nami i opowiedz nam o swoich potrzebach i preferencjach. Nasz zespół przeprowadzi dogłębną analizę rynku, aby zaoferować Ci nieruchomości idealnie odpowiadające Twoim kryteriom. Posiadamy wyjątkowe portfolio wysokiej jakości, ekskluzywnych domów, dostępnych wyłącznie dla naszych klientów. Aby być pierwszym, który otrzyma o nich informacje – skontaktuj się z nami.
Usługi dodatkowe
Jako ceniony klient naszej firmy, będziesz miał przywilej korzystania z usług naszego doświadczonego zespołu prawnego całkowicie bezpłatnie. Ponadto oferujemy kompleksowe rozwiązania, w tym ubezpieczenia nieruchomości, bezpłatne doradztwo finansowe, a także korzystne warunki finansowania. Nasze usługi obejmują również odsprzedaż, wynajem i zarządzanie nieruchomościami. Zapewniamy wysokiej jakości remonty i wyposażenie wnętrz za pośrednictwem wyspecjalizowanych firm wchodzących w skład naszej grupy kapitałowej i będących naszymi wieloletnimi partnerami.
Ogledziny nieruchomosci
Mozemy zorganizowac ogledziny nieruchomosci, w dogodnym dla Panstwa terminie. W tym celu prosimy o skontaktowanie sie z agentem odpowiedzialnym za te oferte.
Rezerwacja nieruchomosci
Nieruchomosc moze byc zarezerwowana i wycofana ze sprzedazy po wplaceniu zadatku, po czym ustaje ogladanie z innymi kupujacymi i rozpoczyna sie przygotowanie dokumentow do zawarcia umowy przedwstepnej i ostatecznej.
Prosimy o kontakt z agentem odpowiedzialnym za te nieruchomosc w celu uzyskania szczegolowych informacji dotyczacych procedury zakupu i metod platnosci.
Uslugi dodatkowe i obsluga posprzedazowa
Jestesmy sprawdzona firma o dobrej reputacji i wieloletnim doswiadczeniu. Dlatego bedziemy z Panstwem nie tylko w trakcie zakupu, ale takze po jego zakonczeniu, swiadczac na Panstwa zyczenie dodatkowe uslugi, aby w pelni i bezproblemowo korzystac z nowo zakupionej nieruchomosci. Uslugi, ktore mozemy zaoferowac, obejmuja uzyskanie zgody na kredyt hipoteczny z bulgarskiego banku, ubezpieczenia majatku ruchomego i nieruchomosci, ubezpieczenia na zycie, ubezpieczenia medyczne i samochodowe, prace budowlane i remontowe, meblowanie, uslugi prawne i ksiegowe itp.
Blisko basenów mineralnych, hoteli, parku, szpitala, apteki, przedszkola, szkoły i sklepów.
Budynek jest w trakcie budowy i oferuje przestronne i jasne apartamenty z dwiema i trzema sypialniami oraz miejsca parkingowe.
Nadaje się na dom rodzinny lub nieruchomość wakacyjną.
Układ nieruchomości: powierzchnia całkowita 76,86 m2 (powierzchnia netto 65,56 m2 + powierzchnie wspólne 11,30 m2), położone na trzecim piętrze.
Możliwość zakupu miejsca parkingowego.
BRAK PROWIZJI!
Piękna przyroda, źródła mineralne i warunki klimatyczne sprzyjające leczeniu wielu chorób sprawiają, że Welingrad jest popularnym celem podróży zarówno dla turystów bułgarskich, jak i zagranicznych. Na terenie miasta znajdują się 3 sanatoria, ponad 60 hoteli i domów wypoczynkowych, 140 placówek gastronomicznych i rozrywkowych. Zmodernizowano 6 kompleksów wypoczynkowych, oferujących szeroki wachlarz usług balneologicznych. Zmodernizowano publiczne kąpieliska mineralne i wybudowano 22 baseny mineralne, zarówno odkryte, jak i kryte.
Czekamy na Państwa zapytanie.
Jeśli chcesz umówić się na obejrzenie interesującej Cię nieruchomości lub odwiedzić jedno z naszych biur, skontaktuj się z nami. Aby umówić się na spotkanie lub oględziny, zadzwoń pod numer telefonu podany w ogłoszeniu lub wyślij zapytanie e-mailem. Nasz konsultant pomoże Ci w ustaleniu wszystkich niezbędnych szczegółów i ustali dogodny termin.
Szukasz odpowiedniej nieruchomości dla siebie?
Skontaktuj się z nami i opowiedz nam o swoich potrzebach i preferencjach. Nasz zespół przeprowadzi dogłębną analizę rynku, aby zaoferować Ci nieruchomości idealnie odpowiadające Twoim kryteriom. Posiadamy wyjątkowe portfolio wysokiej jakości, ekskluzywnych domów, dostępnych wyłącznie dla naszych klientów. Aby być pierwszym, który otrzyma o nich informacje – skontaktuj się z nami.
Usługi dodatkowe
Jako ceniony klient naszej firmy, będziesz miał przywilej korzystania z usług naszego doświadczonego zespołu prawnego całkowicie bezpłatnie. Ponadto oferujemy kompleksowe rozwiązania, w tym ubezpieczenia nieruchomości, bezpłatne doradztwo finansowe, a także korzystne warunki finansowania. Nasze usługi obejmują również odsprzedaż, wynajem i zarządzanie nieruchomościami. Zapewniamy wysokiej jakości remonty i wyposażenie wnętrz za pośrednictwem wyspecjalizowanych firm wchodzących w skład naszej grupy kapitałowej i będących naszymi wieloletnimi partnerami.
Ogledziny nieruchomosci
Mozemy zorganizowac ogledziny nieruchomosci, w dogodnym dla Panstwa terminie. W tym celu prosimy o skontaktowanie sie z agentem odpowiedzialnym za te oferte.
Rezerwacja nieruchomosci
Nieruchomosc moze byc zarezerwowana i wycofana ze sprzedazy po wplaceniu zadatku, po czym ustaje ogladanie z innymi kupujacymi i rozpoczyna sie przygotowanie dokumentow do zawarcia umowy przedwstepnej i ostatecznej.
Prosimy o kontakt z agentem odpowiedzialnym za te nieruchomosc w celu uzyskania szczegolowych informacji dotyczacych procedury zakupu i metod platnosci.
Uslugi dodatkowe i obsluga posprzedazowa
Jestesmy sprawdzona firma o dobrej reputacji i wieloletnim doswiadczeniu. Dlatego bedziemy z Panstwem nie tylko w trakcie zakupu, ale takze po jego zakonczeniu, swiadczac na Panstwa zyczenie dodatkowe uslugi, aby w pelni i bezproblemowo korzystac z nowo zakupionej nieruchomosci. Uslugi, ktore mozemy zaoferowac, obejmuja uzyskanie zgody na kredyt hipoteczny z bulgarskiego banku, ubezpieczenia majatku ruchomego i nieruchomosci, ubezpieczenia na zycie, ubezpieczenia medyczne i samochodowe, prace budowlane i remontowe, meblowanie, uslugi prawne i ksiegowe itp.
Zobacz tekst w innych językach (tłumaczenie automatyczne)
Lokalizacja (około)
Przybliżone położenie nieruchomości/kompleksu zaznaczono na mapie czerwonym znacznikiem.
Nasze top oferty do sprzedaz Velingrad, Bulgaria


ORIGINAL: