Liczba pięter w budynku
3
Piętro
2
Winda
tak
pokoie
3
Sypialnie
2
Łazienki
2
Balkony (tarasy) szt.:
1

Całkowita powierzchnia
128 m2
Powierzchnia zabudowana
114 m2
Części wspólne
14 m2

Cena
447 300 €
(bez VAT)
3 495 €/m2
(bez VAT)
Bez prowizji od kupującego
Zapytanie o więcej informacji lub oględziny
Pakiet informacyjny
Odległości
Ostatnieia aktualizacja
18.03.2026 r.
Odległości od nieruchomości do innych ważnych obiektów
- Centrum miasta: 7km
- Lotnisko Sofia (SOF): 14km
Widoki z nieruchomości
- Widoki na miasto
- Widoki na wewnętrzny ogród
Informacje administracyjne dotyczące oferty
- Elektryczność
- Komunalne dostarczanie wody
- Łazienka z toaletą
- Magazynek
- Niedokończone wnętrze
- Osiedle zamknięte
Tekst został automatycznie przetłumaczony przez oprogramowanie i może zawierać nieścisłości.
Możesz zobaczyć tekst w oryginalnym języku lub przetłumaczyć na inne języki:
Prezentujemy na sprzedaż trzypokojowe mieszkanie w nowym, zadbanym budynku o nowoczesnym wyglądzie i niewielkiej liczbie mieszkań, położonym w jednej z najbardziej prestiżowych dzielnic Sofii – „Bojanie”. Koncepcja budynku to harmonia natury, estetyka i jakość życia.
Lokalizacja
Budynek, z dogodnym dojazdem z obwodnicy, położony jest w cichej i zielonej okolicy u podnóża Góry Witosza, oferując jednocześnie dogodny dostęp do sklepów, szkół i komunikacji miejskiej. Okolica łączy w sobie spokój natury z szybkim dostępem do centrum miasta, co czyni tę nieruchomość doskonałym wyborem dla rodziny lub jako inwestycja.
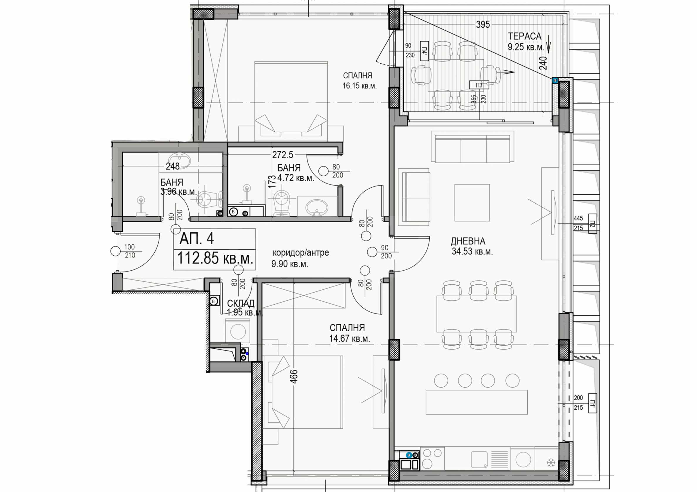
Dystrybucja:
• hol wejściowy;
• przestronny salon – 35 m2;
• dwie sypialnie;
• dwie łazienki z toaletą;
• taras – 9 mkw.
Dlaczego warto wybrać nieruchomość w tym budynku:
• budynek butikowy wyróżnia się elegancką elewacją, starannie dobranymi materiałami i funkcjonalnym rozmieszczeniem nieruchomości;
• tylko jedno wejście;
• winda umożliwiająca dostęp do każdego poziomu;
• parking podziemny;
• ograniczona liczba domów zapewniająca większy komfort i spokój ducha;
• u podnóża Góry Witosza, w miejscu o czystym powietrzu.
Istnieje możliwość zakupu miejsc parkingowych w cenie 35.000 euro / 68.454,05 BGN bez VAT.
Planowane zakończenie budowy – 2027 r.
Podana cena nie zawiera podatku VAT.
Czekamy na Państwa zapytanie.
Jeśli chcesz umówić się na obejrzenie interesującej Cię nieruchomości lub odwiedzić jedno z naszych biur, skontaktuj się z nami. Aby umówić się na spotkanie lub oględziny, zadzwoń pod numer telefonu podany w ogłoszeniu lub wyślij zapytanie e-mailem. Nasz konsultant pomoże Ci w ustaleniu wszystkich niezbędnych szczegółów i ustali dogodny termin.
Szukasz odpowiedniej nieruchomości dla siebie?
Skontaktuj się z nami i opowiedz nam o swoich potrzebach i preferencjach. Nasz zespół przeprowadzi dogłębną analizę rynku, aby zaoferować Ci nieruchomości idealnie odpowiadające Twoim kryteriom. Posiadamy wyjątkowe portfolio wysokiej jakości, ekskluzywnych domów, dostępnych wyłącznie dla naszych klientów. Aby być pierwszym, który otrzyma o nich informacje – skontaktuj się z nami.
Usługi dodatkowe
Jako ceniony klient naszej firmy, będziesz miał przywilej korzystania z usług naszego doświadczonego zespołu prawnego całkowicie bezpłatnie. Ponadto oferujemy kompleksowe rozwiązania, w tym ubezpieczenia nieruchomości, bezpłatne doradztwo finansowe, a także korzystne warunki finansowania. Nasze usługi obejmują również odsprzedaż, wynajem i zarządzanie nieruchomościami. Zapewniamy wysokiej jakości remonty i wyposażenie wnętrz za pośrednictwem wyspecjalizowanych firm wchodzących w skład naszej grupy kapitałowej i będących naszymi wieloletnimi partnerami.
Ogledziny nieruchomosci
Mozemy zorganizowac ogledziny nieruchomosci, w dogodnym dla Panstwa terminie. W tym celu prosimy o skontaktowanie sie z agentem odpowiedzialnym za te oferte.
Rezerwacja nieruchomosci
Nieruchomosc moze byc zarezerwowana i wycofana ze sprzedazy po wplaceniu zadatku, po czym ustaje ogladanie z innymi kupujacymi i rozpoczyna sie przygotowanie dokumentow do zawarcia umowy przedwstepnej i ostatecznej.
Prosimy o kontakt z agentem odpowiedzialnym za te nieruchomosc w celu uzyskania szczegolowych informacji dotyczacych procedury zakupu i metod platnosci.
Uslugi dodatkowe i obsluga posprzedazowa
Jestesmy sprawdzona firma o dobrej reputacji i wieloletnim doswiadczeniu. Dlatego bedziemy z Panstwem nie tylko w trakcie zakupu, ale takze po jego zakonczeniu, swiadczac na Panstwa zyczenie dodatkowe uslugi, aby w pelni i bezproblemowo korzystac z nowo zakupionej nieruchomosci. Uslugi, ktore mozemy zaoferowac, obejmuja uzyskanie zgody na kredyt hipoteczny z bulgarskiego banku, ubezpieczenia majatku ruchomego i nieruchomosci, ubezpieczenia na zycie, ubezpieczenia medyczne i samochodowe, prace budowlane i remontowe, meblowanie, uslugi prawne i ksiegowe itp.
Lokalizacja
Budynek, z dogodnym dojazdem z obwodnicy, położony jest w cichej i zielonej okolicy u podnóża Góry Witosza, oferując jednocześnie dogodny dostęp do sklepów, szkół i komunikacji miejskiej. Okolica łączy w sobie spokój natury z szybkim dostępem do centrum miasta, co czyni tę nieruchomość doskonałym wyborem dla rodziny lub jako inwestycja.
Dystrybucja:
• hol wejściowy;
• przestronny salon – 35 m2;
• dwie sypialnie;
• dwie łazienki z toaletą;
• taras – 9 mkw.
Dlaczego warto wybrać nieruchomość w tym budynku:
• budynek butikowy wyróżnia się elegancką elewacją, starannie dobranymi materiałami i funkcjonalnym rozmieszczeniem nieruchomości;
• tylko jedno wejście;
• winda umożliwiająca dostęp do każdego poziomu;
• parking podziemny;
• ograniczona liczba domów zapewniająca większy komfort i spokój ducha;
• u podnóża Góry Witosza, w miejscu o czystym powietrzu.
Istnieje możliwość zakupu miejsc parkingowych w cenie 35.000 euro / 68.454,05 BGN bez VAT.
Planowane zakończenie budowy – 2027 r.
Podana cena nie zawiera podatku VAT.
Czekamy na Państwa zapytanie.
Jeśli chcesz umówić się na obejrzenie interesującej Cię nieruchomości lub odwiedzić jedno z naszych biur, skontaktuj się z nami. Aby umówić się na spotkanie lub oględziny, zadzwoń pod numer telefonu podany w ogłoszeniu lub wyślij zapytanie e-mailem. Nasz konsultant pomoże Ci w ustaleniu wszystkich niezbędnych szczegółów i ustali dogodny termin.
Szukasz odpowiedniej nieruchomości dla siebie?
Skontaktuj się z nami i opowiedz nam o swoich potrzebach i preferencjach. Nasz zespół przeprowadzi dogłębną analizę rynku, aby zaoferować Ci nieruchomości idealnie odpowiadające Twoim kryteriom. Posiadamy wyjątkowe portfolio wysokiej jakości, ekskluzywnych domów, dostępnych wyłącznie dla naszych klientów. Aby być pierwszym, który otrzyma o nich informacje – skontaktuj się z nami.
Usługi dodatkowe
Jako ceniony klient naszej firmy, będziesz miał przywilej korzystania z usług naszego doświadczonego zespołu prawnego całkowicie bezpłatnie. Ponadto oferujemy kompleksowe rozwiązania, w tym ubezpieczenia nieruchomości, bezpłatne doradztwo finansowe, a także korzystne warunki finansowania. Nasze usługi obejmują również odsprzedaż, wynajem i zarządzanie nieruchomościami. Zapewniamy wysokiej jakości remonty i wyposażenie wnętrz za pośrednictwem wyspecjalizowanych firm wchodzących w skład naszej grupy kapitałowej i będących naszymi wieloletnimi partnerami.
Ogledziny nieruchomosci
Mozemy zorganizowac ogledziny nieruchomosci, w dogodnym dla Panstwa terminie. W tym celu prosimy o skontaktowanie sie z agentem odpowiedzialnym za te oferte.
Rezerwacja nieruchomosci
Nieruchomosc moze byc zarezerwowana i wycofana ze sprzedazy po wplaceniu zadatku, po czym ustaje ogladanie z innymi kupujacymi i rozpoczyna sie przygotowanie dokumentow do zawarcia umowy przedwstepnej i ostatecznej.
Prosimy o kontakt z agentem odpowiedzialnym za te nieruchomosc w celu uzyskania szczegolowych informacji dotyczacych procedury zakupu i metod platnosci.
Uslugi dodatkowe i obsluga posprzedazowa
Jestesmy sprawdzona firma o dobrej reputacji i wieloletnim doswiadczeniu. Dlatego bedziemy z Panstwem nie tylko w trakcie zakupu, ale takze po jego zakonczeniu, swiadczac na Panstwa zyczenie dodatkowe uslugi, aby w pelni i bezproblemowo korzystac z nowo zakupionej nieruchomosci. Uslugi, ktore mozemy zaoferowac, obejmuja uzyskanie zgody na kredyt hipoteczny z bulgarskiego banku, ubezpieczenia majatku ruchomego i nieruchomosci, ubezpieczenia na zycie, ubezpieczenia medyczne i samochodowe, prace budowlane i remontowe, meblowanie, uslugi prawne i ksiegowe itp.
Zobacz tekst w innych językach (tłumaczenie automatyczne)
Lokalizacja (około)
Przybliżone położenie nieruchomości/kompleksu zaznaczono na mapie czerwonym znacznikiem.
Nasze top oferty do sprzedaz Sofia, Bulgaria


ORIGINAL: