Liczba pięter w budynku
14
Piętro
5
Winda
tak
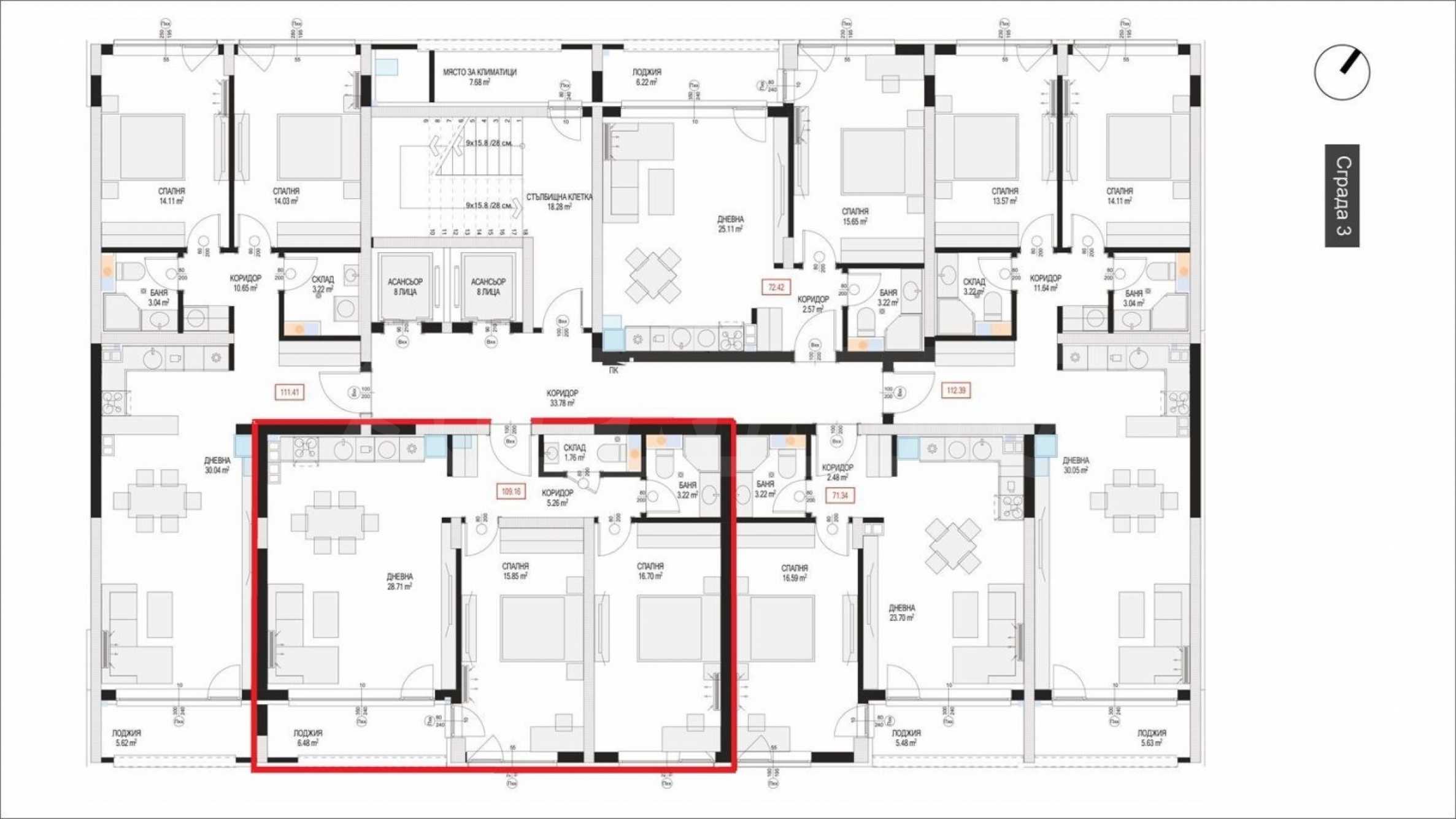
pokoie
3
Sypialnie
2
Łazienki
1
Balkony (tarasy) szt.:
1
Toalety
2

Całkowita powierzchnia
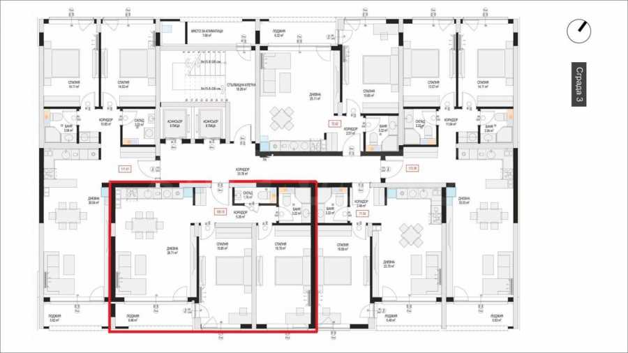
109.16 m2
Powierzchnia zabudowana
90.76 m2
Części wspólne
18.40 m2
Stan
W trakcie budowy
Planowane zakończenie
September 2026

Cena
249 167 €
(bez VAT)
2 283 €/m2
(bez VAT)
Bez prowizji od kupującego
Zapytanie o więcej informacji lub oględziny
Pakiet informacyjny
Stan
unfinished internally
Umeblowanie
Ogrzewanie
Ogrzewanie gazowe
Klimatyzacja
System klimatyzacji, Klimatyzator inwerterowy
Odległości
Ostatnieia aktualizacja
17.11.2025 r.
Odległości od nieruchomości do innych ważnych obiektów
- Centrum miasta: 7km
- Lotnisko Sofia (SOF): 22km
- Sklep spożywczy: 400m
- Przystanek: 100m
- Szpital: 1km
- Szkoła: 1km
Widoki z nieruchomości
- Widoki na góry
- Widoki na miasto
- Widoki na park
- Widoki na wewnętrzny ogród
Ogrzewanie
- Ogrzewanie gazowe
Klimatyzacja
- Klimatyzator inwerterowy
- System klimatyzacji
Informacje administracyjne dotyczące oferty
- Ogrzewanie na gaz
- kamień naturalny
- wentylowana elewacja
- Ramy okienne PCV
Tekst został automatycznie przetłumaczony przez oprogramowanie i może zawierać nieścisłości.
Możesz zobaczyć tekst w oryginalnym języku lub przetłumaczyć na inne języki:
BRAK PROWIZJI OD KUPUJĄCEGO!
Prezentujemy Państwu przestronny, dwupokojowy apartament o powierzchni całkowitej 109,16 m², zlokalizowany na 5. piętrze apartamentowca. Apartament ma ekspozycję południowo-wschodnią, co gwarantuje mnóstwo naturalnego światła, a z okien roztacza się imponujący widok na panoramę Gór Witosza. Nieruchomość jest częścią nowego kompleksu w południowej części Sofii, który łączy w sobie nowoczesną architekturę, funkcjonalność i bliskość natury.
Zalety kompleksu:
Niezakłócony widok na górę Witosza i miasto;
Własny park z bogatą architekturą krajobrazową i ponad 80% wolnej powierzchni o łącznej powierzchni 11 akrów;
Strefy relaksu i spotkań towarzyskich, strefa zdrowia, wielofunkcyjny plac zabaw, siłownia na świeżym powietrzu i place zabaw;
Przestronne domy z ponad 40% większą ilością naturalnego światła niż przeciętne standardy europejskie;
Budynki z awangardową wizją i długoterminową wartością inwestycyjną.
Lokalizacja : Kompleks położony jest w południowej części Sofii, z w pełni rozwiniętą infrastrukturą – siecią transportową, ścieżkami rowerowymi, chodnikami i parkiem. Okolica oferuje wszystkie udogodnienia południowych dzielnic, a jednocześnie ciszę i bliskość natury.
Elastyczny plan płatności:
20% po podpisaniu umowy;
70% po otrzymaniu Ustawy 15;
10% po uruchomieniu (Ustawa 16).
Dodatkowe parametry:
- Ogrzewanie odbywa się za pomocą gazu i prądu (za pomocą klimatyzatorów)
- Etap budowy: budynek ma ukończony stan surowy (ACT 14), a całkowite ukończenie planowane jest na rok 2026.
Czekamy na Państwa zapytanie.
Jeśli chcesz umówić się na obejrzenie interesującej Cię nieruchomości lub odwiedzić jedno z naszych biur, skontaktuj się z nami. Aby umówić się na spotkanie lub oględziny, zadzwoń pod numer telefonu podany w ogłoszeniu lub wyślij zapytanie e-mailem. Nasz konsultant pomoże Ci w ustaleniu wszystkich niezbędnych szczegółów i ustali dogodny termin.
Szukasz odpowiedniej nieruchomości dla siebie?
Skontaktuj się z nami i opowiedz nam o swoich potrzebach i preferencjach. Nasz zespół przeprowadzi dogłębną analizę rynku, aby zaoferować Ci nieruchomości idealnie odpowiadające Twoim kryteriom. Posiadamy wyjątkowe portfolio wysokiej jakości, ekskluzywnych domów, dostępnych wyłącznie dla naszych klientów. Aby być pierwszym, który otrzyma o nich informacje – skontaktuj się z nami.
Usługi dodatkowe
Jako ceniony klient naszej firmy, będziesz miał przywilej korzystania z usług naszego doświadczonego zespołu prawnego całkowicie bezpłatnie. Ponadto oferujemy kompleksowe rozwiązania, w tym ubezpieczenia nieruchomości, bezpłatne doradztwo finansowe, a także korzystne warunki finansowania. Nasze usługi obejmują również odsprzedaż, wynajem i zarządzanie nieruchomościami. Zapewniamy wysokiej jakości remonty i wyposażenie wnętrz za pośrednictwem wyspecjalizowanych firm wchodzących w skład naszej grupy kapitałowej i będących naszymi wieloletnimi partnerami.
Prezentujemy Państwu przestronny, dwupokojowy apartament o powierzchni całkowitej 109,16 m², zlokalizowany na 5. piętrze apartamentowca. Apartament ma ekspozycję południowo-wschodnią, co gwarantuje mnóstwo naturalnego światła, a z okien roztacza się imponujący widok na panoramę Gór Witosza. Nieruchomość jest częścią nowego kompleksu w południowej części Sofii, który łączy w sobie nowoczesną architekturę, funkcjonalność i bliskość natury.
Zalety kompleksu:
Lokalizacja : Kompleks położony jest w południowej części Sofii, z w pełni rozwiniętą infrastrukturą – siecią transportową, ścieżkami rowerowymi, chodnikami i parkiem. Okolica oferuje wszystkie udogodnienia południowych dzielnic, a jednocześnie ciszę i bliskość natury.
Elastyczny plan płatności:
Dodatkowe parametry:
- Ogrzewanie odbywa się za pomocą gazu i prądu (za pomocą klimatyzatorów)
- Etap budowy: budynek ma ukończony stan surowy (ACT 14), a całkowite ukończenie planowane jest na rok 2026.
Czekamy na Państwa zapytanie.
Jeśli chcesz umówić się na obejrzenie interesującej Cię nieruchomości lub odwiedzić jedno z naszych biur, skontaktuj się z nami. Aby umówić się na spotkanie lub oględziny, zadzwoń pod numer telefonu podany w ogłoszeniu lub wyślij zapytanie e-mailem. Nasz konsultant pomoże Ci w ustaleniu wszystkich niezbędnych szczegółów i ustali dogodny termin.
Szukasz odpowiedniej nieruchomości dla siebie?
Skontaktuj się z nami i opowiedz nam o swoich potrzebach i preferencjach. Nasz zespół przeprowadzi dogłębną analizę rynku, aby zaoferować Ci nieruchomości idealnie odpowiadające Twoim kryteriom. Posiadamy wyjątkowe portfolio wysokiej jakości, ekskluzywnych domów, dostępnych wyłącznie dla naszych klientów. Aby być pierwszym, który otrzyma o nich informacje – skontaktuj się z nami.
Usługi dodatkowe
Jako ceniony klient naszej firmy, będziesz miał przywilej korzystania z usług naszego doświadczonego zespołu prawnego całkowicie bezpłatnie. Ponadto oferujemy kompleksowe rozwiązania, w tym ubezpieczenia nieruchomości, bezpłatne doradztwo finansowe, a także korzystne warunki finansowania. Nasze usługi obejmują również odsprzedaż, wynajem i zarządzanie nieruchomościami. Zapewniamy wysokiej jakości remonty i wyposażenie wnętrz za pośrednictwem wyspecjalizowanych firm wchodzących w skład naszej grupy kapitałowej i będących naszymi wieloletnimi partnerami.
Zobacz tekst w innych językach (tłumaczenie automatyczne)
Lokalizacja (około)
Przybliżone położenie nieruchomości/kompleksu zaznaczono na mapie czerwonym znacznikiem.
Nasze top oferty do sprzedaz Sofia, Bulgaria
Nieruchomości według rejonu, Sofia
- Nieruchomości w dzielnica"Malinova Dolina"
- Nieruchomości w dzielnica"Krustova Vada"
- Nieruchomości w dzielnica"Manastirski Livadi - East"
- Nieruchomości w dzielnica"Center"
- Nieruchomości w dzielnica"Boyana"
- Nieruchomości w dzielnica"Dragalevtsi"
- Nieruchomości w dzielnica"Vitosha"
- Nieruchomości w dzielnica"Lozenets"
- Nieruchomości w dzielnica"Ovcha Kupel"
- Nieruchomości w dzielnica"Mladost 3"
Popularne wyszukiwania
wszystkie według wyszukiwania


ORIGINAL: