Klasa budynku/kompleksu
Standardowy
Liczba pięter w budynku
5
Piętro
5
Winda
tak
pokoie
3
Sypialnie
2
Łazienki
1
Balkony (tarasy) szt.:
1

Całkowita powierzchnia
93.38 m2
Powierzchnia zabudowana
75.64 m2
Części wspólne
17.74 m2
Ogród
212.39 m2
Stan
W trakcie budowy
Planowane zakończenie
August 2027

Cena
258 808 €
2 772 €/m2
Brak opłaty za utrzymanie
Bez prowizji od kupującego
Zapytanie o więcej informacji lub oględziny
Pakiet informacyjny
Odległości
Ostatnieia aktualizacja
19.01.2026 r.
Odległości od nieruchomości do innych ważnych obiektów
- Lotnisko Burgas (BOJ): 8km
Informacje administracyjne dotyczące oferty
- spadzisty dach
- Balkon
- Miejsce parkingowe
- Niedokończone wnętrze
- Pancerne drzwi wejściowe
- Ramy okienne PCV
- Winda
Tekst został automatycznie przetłumaczony przez oprogramowanie i może zawierać nieścisłości.
Możesz zobaczyć tekst w oryginalnym języku lub przetłumaczyć na inne języki:
Oferujemy przestronny, dwupokojowy apartament, zlokalizowany w nowoczesnym, nowym budynku, wyróżniającym się eleganckim wyglądem, wysoką jakością wykonania i dbałością o detale. Nieruchomość położona jest w jednej z najbardziej zielonych i cenionych dzielnic Burgas – kompleksie mieszkaniowym Zornica, który oferuje idealną równowagę między spokojem, nowoczesną infrastrukturą i bliskością morza. Lokalizacja zapewnia szybki dostęp do centrum miasta, szkół, parków i udogodnień, gwarantując aktywny i komfortowy styl życia.
Gradacja:
• W budowie od 08.2025.
• Planowany termin zakończenia - 24 miesiące.
Lokalizacja i zalety:
• Budynek znajduje się na obszarze o ograniczonych możliwościach zabudowy, co gwarantuje trwałą wartość w dłuższej perspektywie czasowej.
• Lokalizacja zapewnia równowagę między komunikacją a spokojem - w pobliżu znajdują się: centrum miasta, Ogród Nadmorski, główne drogi, przedszkole, szkoła, hala sportowa, przystanki komunikacji miejskiej oraz różnorodne sklepy i restauracje.
• W zasięgu krótkiego spaceru znajdują się klinika 4Life, poliklinika, klinika dziecięca i laboratoria zdrowia, co sprawia, że obszar ten jest wyjątkowo odpowiedni dla rodzin i osób poszukujących komfortu i bezpieczeństwa.
Cechy budynku:
• Pięć pięter mieszkalnych z mieszkaniami dwu- i trzypokojowymi, wybudowanych zgodnie z bułgarskimi normami budowlanymi.
• Piwnica z garażami i miejscami parkingowymi zapewnia właścicielom wygodę i bezpieczeństwo.
• Nowoczesna architektura i energooszczędne rozwiązania gwarantujące niskie koszty utrzymania i ogrzewania.
• Wysokiej jakości materiały i precyzyjne wykonanie – standard gwarantujący długotrwałą wartość i wygodę.
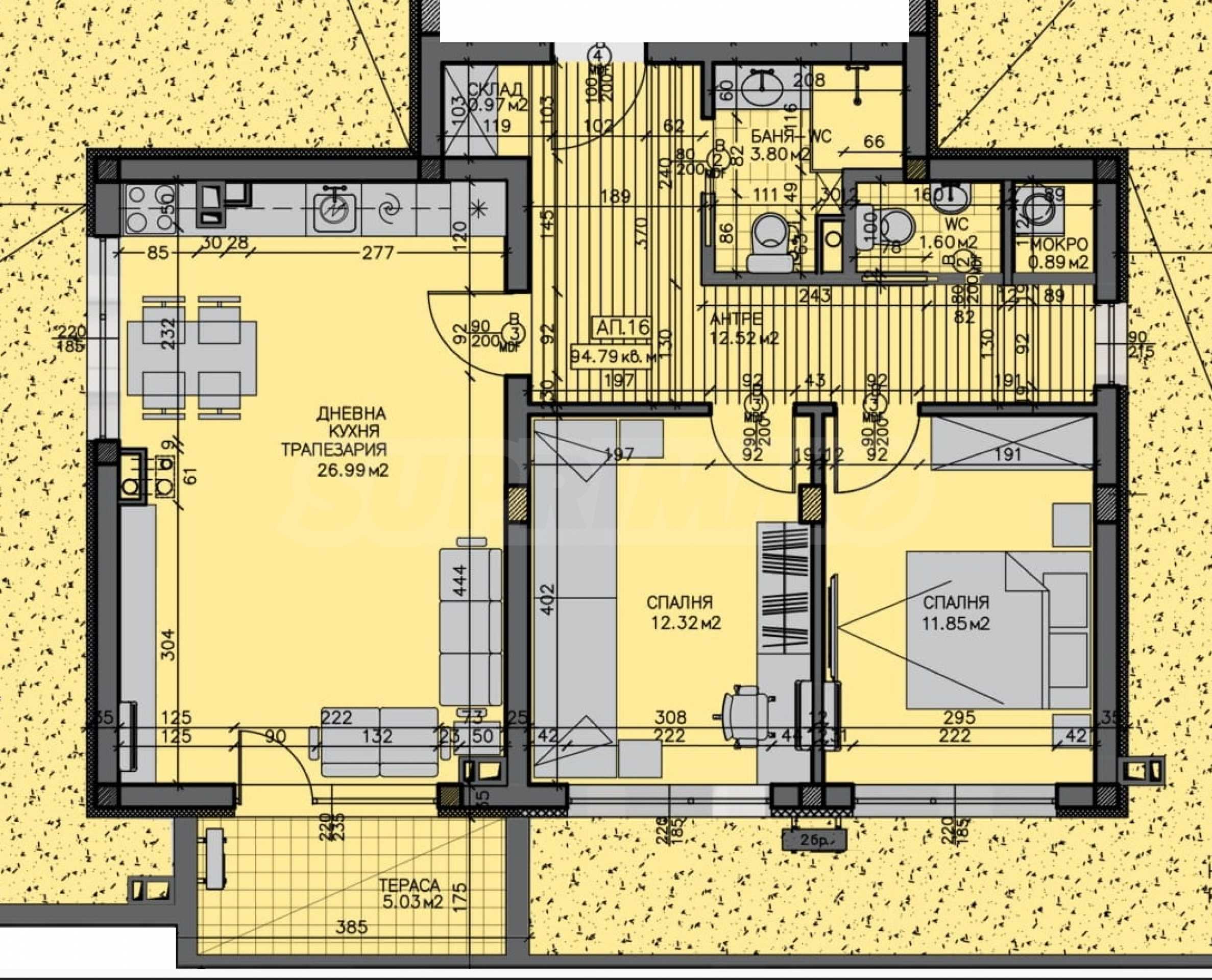
Cechy nieruchomości
• Znajduje się na piątym piętrze budynku mieszkalnego;
• Powierzchnia całkowita: 93,38 mkw.;
• Powierzchnie wspólne: 17,74 mkw.;
• Ekspozycja: wschodnia;
• Układ: przestronny salon z kuchnią i jadalnią, dwie sypialnie, łazienka z toaletą i taras;
• Nieruchomość posiada ogród o powierzchni 212,39 mkw.
Zalety:
• Nowoczesna architektura i elegancka fasada;
• Brak opłat za utrzymanie;
• Efektywność energetyczna i nowoczesne instalacje;
• Spokojne otoczenie z rozwijającą się infrastrukturą;
• Lokalizacja odpowiednia do zamieszkania przez cały rok;
• Atrakcyjne ceny i elastyczne plany płatności.
Standardowy schemat płatności:
• 40% – w ciągu 7 dni od podpisania umowy przedwstępnej;
• 30% – po wydaniu Ustawy nr 14;
• 20% – dla Ustawy 15;
• 10% – dla Ustawy 16.
*Możliwe jest również przygotowanie indywidualnego planu spłat dostosowanego do potrzeb klienta.
Czekamy na Państwa zapytanie.
Jeśli chcesz umówić się na obejrzenie interesującej Cię nieruchomości lub odwiedzić jedno z naszych biur, skontaktuj się z nami. Aby umówić się na spotkanie lub oględziny, zadzwoń pod numer telefonu podany w ogłoszeniu lub wyślij zapytanie e-mailem. Nasz konsultant pomoże Ci w ustaleniu wszystkich niezbędnych szczegółów i ustali dogodny termin.
Szukasz odpowiedniej nieruchomości dla siebie?
Skontaktuj się z nami i opowiedz nam o swoich potrzebach i preferencjach. Nasz zespół przeprowadzi dogłębną analizę rynku, aby zaoferować Ci nieruchomości idealnie odpowiadające Twoim kryteriom. Posiadamy wyjątkowe portfolio wysokiej jakości, ekskluzywnych domów, dostępnych wyłącznie dla naszych klientów. Aby być pierwszym, który otrzyma o nich informacje – skontaktuj się z nami.
Usługi dodatkowe
Jako ceniony klient naszej firmy, będziesz miał przywilej korzystania z usług naszego doświadczonego zespołu prawnego całkowicie bezpłatnie. Ponadto oferujemy kompleksowe rozwiązania, w tym ubezpieczenia nieruchomości, bezpłatne doradztwo finansowe, a także korzystne warunki finansowania. Nasze usługi obejmują również odsprzedaż, wynajem i zarządzanie nieruchomościami. Zapewniamy wysokiej jakości remonty i wyposażenie wnętrz za pośrednictwem wyspecjalizowanych firm wchodzących w skład naszej grupy kapitałowej i będących naszymi wieloletnimi partnerami.
Ogledziny nieruchomosci
Mozemy zorganizowac ogledziny nieruchomosci, w dogodnym dla Panstwa terminie. W tym celu prosimy o skontaktowanie sie z agentem odpowiedzialnym za te oferte.
Rezerwacja nieruchomosci
Nieruchomosc moze byc zarezerwowana i wycofana ze sprzedazy po wplaceniu zadatku, po czym ustaje ogladanie z innymi kupujacymi i rozpoczyna sie przygotowanie dokumentow do zawarcia umowy przedwstepnej i ostatecznej.
Prosimy o kontakt z agentem odpowiedzialnym za te nieruchomosc w celu uzyskania szczegolowych informacji dotyczacych procedury zakupu i metod platnosci.
Uslugi dodatkowe i obsluga posprzedazowa
Jestesmy sprawdzona firma o dobrej reputacji i wieloletnim doswiadczeniu. Dlatego bedziemy z Panstwem nie tylko w trakcie zakupu, ale takze po jego zakonczeniu, swiadczac na Panstwa zyczenie dodatkowe uslugi, aby w pelni i bezproblemowo korzystac z nowo zakupionej nieruchomosci. Uslugi, ktore mozemy zaoferowac, obejmuja uzyskanie zgody na kredyt hipoteczny z bulgarskiego banku, ubezpieczenia majatku ruchomego i nieruchomosci, ubezpieczenia na zycie, ubezpieczenia medyczne i samochodowe, prace budowlane i remontowe, meblowanie, uslugi prawne i ksiegowe itp.
Gradacja:
• W budowie od 08.2025.
• Planowany termin zakończenia - 24 miesiące.
Lokalizacja i zalety:
• Budynek znajduje się na obszarze o ograniczonych możliwościach zabudowy, co gwarantuje trwałą wartość w dłuższej perspektywie czasowej.
• Lokalizacja zapewnia równowagę między komunikacją a spokojem - w pobliżu znajdują się: centrum miasta, Ogród Nadmorski, główne drogi, przedszkole, szkoła, hala sportowa, przystanki komunikacji miejskiej oraz różnorodne sklepy i restauracje.
• W zasięgu krótkiego spaceru znajdują się klinika 4Life, poliklinika, klinika dziecięca i laboratoria zdrowia, co sprawia, że obszar ten jest wyjątkowo odpowiedni dla rodzin i osób poszukujących komfortu i bezpieczeństwa.
Cechy budynku:
• Pięć pięter mieszkalnych z mieszkaniami dwu- i trzypokojowymi, wybudowanych zgodnie z bułgarskimi normami budowlanymi.
• Piwnica z garażami i miejscami parkingowymi zapewnia właścicielom wygodę i bezpieczeństwo.
• Nowoczesna architektura i energooszczędne rozwiązania gwarantujące niskie koszty utrzymania i ogrzewania.
• Wysokiej jakości materiały i precyzyjne wykonanie – standard gwarantujący długotrwałą wartość i wygodę.
Cechy nieruchomości
• Znajduje się na piątym piętrze budynku mieszkalnego;
• Powierzchnia całkowita: 93,38 mkw.;
• Powierzchnie wspólne: 17,74 mkw.;
• Ekspozycja: wschodnia;
• Układ: przestronny salon z kuchnią i jadalnią, dwie sypialnie, łazienka z toaletą i taras;
• Nieruchomość posiada ogród o powierzchni 212,39 mkw.
Zalety:
• Nowoczesna architektura i elegancka fasada;
• Brak opłat za utrzymanie;
• Efektywność energetyczna i nowoczesne instalacje;
• Spokojne otoczenie z rozwijającą się infrastrukturą;
• Lokalizacja odpowiednia do zamieszkania przez cały rok;
• Atrakcyjne ceny i elastyczne plany płatności.
Standardowy schemat płatności:
• 40% – w ciągu 7 dni od podpisania umowy przedwstępnej;
• 30% – po wydaniu Ustawy nr 14;
• 20% – dla Ustawy 15;
• 10% – dla Ustawy 16.
*Możliwe jest również przygotowanie indywidualnego planu spłat dostosowanego do potrzeb klienta.
Czekamy na Państwa zapytanie.
Jeśli chcesz umówić się na obejrzenie interesującej Cię nieruchomości lub odwiedzić jedno z naszych biur, skontaktuj się z nami. Aby umówić się na spotkanie lub oględziny, zadzwoń pod numer telefonu podany w ogłoszeniu lub wyślij zapytanie e-mailem. Nasz konsultant pomoże Ci w ustaleniu wszystkich niezbędnych szczegółów i ustali dogodny termin.
Szukasz odpowiedniej nieruchomości dla siebie?
Skontaktuj się z nami i opowiedz nam o swoich potrzebach i preferencjach. Nasz zespół przeprowadzi dogłębną analizę rynku, aby zaoferować Ci nieruchomości idealnie odpowiadające Twoim kryteriom. Posiadamy wyjątkowe portfolio wysokiej jakości, ekskluzywnych domów, dostępnych wyłącznie dla naszych klientów. Aby być pierwszym, który otrzyma o nich informacje – skontaktuj się z nami.
Usługi dodatkowe
Jako ceniony klient naszej firmy, będziesz miał przywilej korzystania z usług naszego doświadczonego zespołu prawnego całkowicie bezpłatnie. Ponadto oferujemy kompleksowe rozwiązania, w tym ubezpieczenia nieruchomości, bezpłatne doradztwo finansowe, a także korzystne warunki finansowania. Nasze usługi obejmują również odsprzedaż, wynajem i zarządzanie nieruchomościami. Zapewniamy wysokiej jakości remonty i wyposażenie wnętrz za pośrednictwem wyspecjalizowanych firm wchodzących w skład naszej grupy kapitałowej i będących naszymi wieloletnimi partnerami.
Ogledziny nieruchomosci
Mozemy zorganizowac ogledziny nieruchomosci, w dogodnym dla Panstwa terminie. W tym celu prosimy o skontaktowanie sie z agentem odpowiedzialnym za te oferte.
Rezerwacja nieruchomosci
Nieruchomosc moze byc zarezerwowana i wycofana ze sprzedazy po wplaceniu zadatku, po czym ustaje ogladanie z innymi kupujacymi i rozpoczyna sie przygotowanie dokumentow do zawarcia umowy przedwstepnej i ostatecznej.
Prosimy o kontakt z agentem odpowiedzialnym za te nieruchomosc w celu uzyskania szczegolowych informacji dotyczacych procedury zakupu i metod platnosci.
Uslugi dodatkowe i obsluga posprzedazowa
Jestesmy sprawdzona firma o dobrej reputacji i wieloletnim doswiadczeniu. Dlatego bedziemy z Panstwem nie tylko w trakcie zakupu, ale takze po jego zakonczeniu, swiadczac na Panstwa zyczenie dodatkowe uslugi, aby w pelni i bezproblemowo korzystac z nowo zakupionej nieruchomosci. Uslugi, ktore mozemy zaoferowac, obejmuja uzyskanie zgody na kredyt hipoteczny z bulgarskiego banku, ubezpieczenia majatku ruchomego i nieruchomosci, ubezpieczenia na zycie, ubezpieczenia medyczne i samochodowe, prace budowlane i remontowe, meblowanie, uslugi prawne i ksiegowe itp.
Zobacz tekst w innych językach (tłumaczenie automatyczne)
Lokalizacja (około)
Przybliżone położenie nieruchomości/kompleksu zaznaczono na mapie czerwonym znacznikiem.
Nasze top oferty do sprzedaz Burgas, Bulgaria
Nieruchomości według rejonu, Burgas
- Nieruchomości w dzielnica"Sarafovo"
- Nieruchomości w dzielnica"Horizont"
- Nieruchomości w dzielnica"Slaveykov"
- Nieruchomości w dzielnica"Center"
- Nieruchomości w dzielnica"Meden rudnik - zona V"
- Nieruchomości w dzielnica"Kraymorie"
- Nieruchomości w dzielnica"Meden rudnik - zona D"
- Nieruchomości w dzielnica"Bratya Miladinovi"
- Nieruchomości w dzielnica"Madika"
- Nieruchomości w dzielnica"Zornitsa"


ORIGINAL: