Liczba pięter w budynku
4
Piętro
2
Winda
tak
pokoie
3
Sypialnie
2
Łazienki
1
Balkony (tarasy) szt.:
1
Toalety
1

Całkowita powierzchnia
107.46 m2
Powierzchnia zabudowana
88.66 m2
Części wspólne
18.80 m2

Cena
250 382 €
2 330 €/m2
Bez prowizji od kupującego
Zapytanie o więcej informacji lub oględziny
Pakiet informacyjny
Odległości
Ostatnieia aktualizacja
07.11.2025 r.
Odległości od nieruchomości do innych ważnych obiektów
- Centrum miasta: 7.7km
- Lotnisko Sofia (SOF): 7km
Widoki z nieruchomości
- Widoki na miasto
- Widoki na wewnętrzny ogród
Ogrzewanie
- Pompa ciepła
Informacje administracyjne dotyczące oferty
- Elektryczność
- Komunalne dostarczanie wody
- drzwi automatyczne
- Łazienka z toaletą
- Balkon
- Niedokończone wnętrze
- Osiedle zamknięte
- Ogród
Tekst został automatycznie przetłumaczony przez oprogramowanie i może zawierać nieścisłości.
Możesz zobaczyć tekst w oryginalnym języku lub przetłumaczyć na inne języki:
Prezentujemy dwupokojowe mieszkanie w nowym, strzeżonym kompleksie z parkiem i stylową wizją architektoniczną, w dzielnicy „Malinova Dolina”.
PRZED AKTEM 15!
Lokalizacja jest dogodna pod względem komunikacyjnym, blisko ulicy Prof. Krikora Azaryana, która zapewnia dostęp do bulwarów Simeonovsko Shosse i Kliment Ohridski, a stamtąd do wszystkich punktów stolicy. W zasięgu spaceru znajdują się Zimowy Pałac Sportu, Narodowa Akademia Sportu, Park Vartopo oraz wszystkie udogodnienia Studentski Grad.
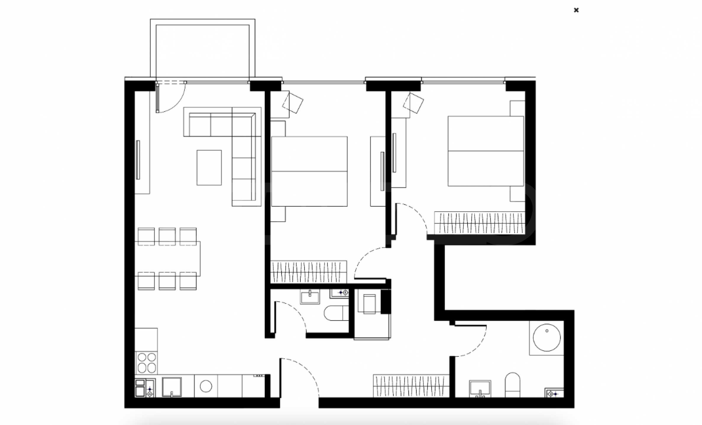
Nieruchomość położona jest na 3 piętrze z 4, zorientowana jest na północny/wschód i oferuje powierzchnię całkowitą 119,59 m².
Dystrybucja:
O kompleksie
Osiedle składa się z trzech czteropiętrowych budynków z własnym parkiem o powierzchni 1500 m², z bogatą zielenią i bezruchem samochodowym, co zapewni mieszkańcom spokojną atmosferę życia. Apartamenty charakteryzują się funkcjonalnym rozkładem i korzystną ekspozycją, a większość z nich oferuje widok na Górę Witosza.
Miejsca parkingowe znajdują się w garażach podziemnych, z możliwością zakupu. Ceny zaczynają się od 34 000 euro (66 498 BGN).
Dane techniczne:
Apartamenty będą wyposażone w indywidualny system odzysku ciepła, który zapewnia wymianę powietrza, zapewniając stały dopływ czystego i świeżego powietrza. System ten jest wykorzystywany zarówno w sezonie zimowym, jak i ciepłym.
Odległości:
Aby uzyskać dodatkowe informacje na temat interesującego Cię rodzaju nieruchomości, skontaktuj się z pośrednikiem odpowiedzialnym za ofertę.
Ogledziny nieruchomosci
Mozemy zorganizowac ogledziny nieruchomosci, w dogodnym dla Panstwa terminie. W tym celu prosimy o skontaktowanie sie z agentem odpowiedzialnym za te oferte.
Rezerwacja nieruchomosci
Nieruchomosc moze byc zarezerwowana i wycofana ze sprzedazy po wplaceniu zadatku, po czym ustaje ogladanie z innymi kupujacymi i rozpoczyna sie przygotowanie dokumentow do zawarcia umowy przedwstepnej i ostatecznej.
Prosimy o kontakt z agentem odpowiedzialnym za te nieruchomosc w celu uzyskania szczegolowych informacji dotyczacych procedury zakupu i metod platnosci.
Uslugi dodatkowe i obsluga posprzedazowa
Jestesmy sprawdzona firma o dobrej reputacji i wieloletnim doswiadczeniu. Dlatego bedziemy z Panstwem nie tylko w trakcie zakupu, ale takze po jego zakonczeniu, swiadczac na Panstwa zyczenie dodatkowe uslugi, aby w pelni i bezproblemowo korzystac z nowo zakupionej nieruchomosci. Uslugi, ktore mozemy zaoferowac, obejmuja uzyskanie zgody na kredyt hipoteczny z bulgarskiego banku, ubezpieczenia majatku ruchomego i nieruchomosci, ubezpieczenia na zycie, ubezpieczenia medyczne i samochodowe, prace budowlane i remontowe, meblowanie, uslugi prawne i ksiegowe itp.
PRZED AKTEM 15!
Lokalizacja jest dogodna pod względem komunikacyjnym, blisko ulicy Prof. Krikora Azaryana, która zapewnia dostęp do bulwarów Simeonovsko Shosse i Kliment Ohridski, a stamtąd do wszystkich punktów stolicy. W zasięgu spaceru znajdują się Zimowy Pałac Sportu, Narodowa Akademia Sportu, Park Vartopo oraz wszystkie udogodnienia Studentski Grad.
Nieruchomość położona jest na 3 piętrze z 4, zorientowana jest na północny/wschód i oferuje powierzchnię całkowitą 119,59 m².
Dystrybucja:
- korytarz;
- łazienka z WC - 5,67 m2;
- toaleta - 2,27 mkw;
- pomieszczenie magazynowe/mokre;
- sypialnia - 14,95 mkw;
- druga sypialnia - 12,95 mkw;
- salon z kuchnią i jadalnią - 26,79 m2;
- taras - 4,05 mkw.
O kompleksie
Osiedle składa się z trzech czteropiętrowych budynków z własnym parkiem o powierzchni 1500 m², z bogatą zielenią i bezruchem samochodowym, co zapewni mieszkańcom spokojną atmosferę życia. Apartamenty charakteryzują się funkcjonalnym rozkładem i korzystną ekspozycją, a większość z nich oferuje widok na Górę Witosza.
Miejsca parkingowe znajdują się w garażach podziemnych, z możliwością zakupu. Ceny zaczynają się od 34 000 euro (66 498 BGN).
Dane techniczne:
- konstrukcja - żelbetowa, monolityczna;
- system hydroizolacji całej piwnicy, a także poddaszy i tarasów;
- ocieplenie elewacji - styropian 12 cm z okładziną dekoracyjną z systemu Caparol Meldorfer (cegła klinkierowa);
- izolacja dachu 12 cm XPS;
- części wspólne z podłogą z granitu imitującego naturalny kamień, sufity z płyt gipsowo-kartonowych z oświetleniem LED;
- windy - Orona;
- Okna metalowe Deceuninck 6-komorowe, z pakietem trzyszybowym;
- system domofonowy do kontroli dostępu;
- Ogrzewanie elektryczne z planowaną instalacją pompy ciepła.
Apartamenty będą wyposażone w indywidualny system odzysku ciepła, który zapewnia wymianę powietrza, zapewniając stały dopływ czystego i świeżego powietrza. System ten jest wykorzystywany zarówno w sezonie zimowym, jak i ciepłym.
Odległości:
- 1,6 km od największego centrum handlowego stolicy - Ring Mall Sofia;
- 300 m od parku Vartopo II;
- 2 km od Parku Studenckiego;
- 500 m od przystanku autobusowego;
- 3 km od stacji metra Mladost;
- W okolicy znajdują się sklepy Fantastico, Kaufland, LIDL;
- liczne sklepy, kawiarnie i restauracje w dzielnicy „Studentski Grad”, która znajduje się blisko ośrodka.
Aby uzyskać dodatkowe informacje na temat interesującego Cię rodzaju nieruchomości, skontaktuj się z pośrednikiem odpowiedzialnym za ofertę.
Ogledziny nieruchomosci
Mozemy zorganizowac ogledziny nieruchomosci, w dogodnym dla Panstwa terminie. W tym celu prosimy o skontaktowanie sie z agentem odpowiedzialnym za te oferte.
Rezerwacja nieruchomosci
Nieruchomosc moze byc zarezerwowana i wycofana ze sprzedazy po wplaceniu zadatku, po czym ustaje ogladanie z innymi kupujacymi i rozpoczyna sie przygotowanie dokumentow do zawarcia umowy przedwstepnej i ostatecznej.
Prosimy o kontakt z agentem odpowiedzialnym za te nieruchomosc w celu uzyskania szczegolowych informacji dotyczacych procedury zakupu i metod platnosci.
Uslugi dodatkowe i obsluga posprzedazowa
Jestesmy sprawdzona firma o dobrej reputacji i wieloletnim doswiadczeniu. Dlatego bedziemy z Panstwem nie tylko w trakcie zakupu, ale takze po jego zakonczeniu, swiadczac na Panstwa zyczenie dodatkowe uslugi, aby w pelni i bezproblemowo korzystac z nowo zakupionej nieruchomosci. Uslugi, ktore mozemy zaoferowac, obejmuja uzyskanie zgody na kredyt hipoteczny z bulgarskiego banku, ubezpieczenia majatku ruchomego i nieruchomosci, ubezpieczenia na zycie, ubezpieczenia medyczne i samochodowe, prace budowlane i remontowe, meblowanie, uslugi prawne i ksiegowe itp.
Zobacz tekst w innych językach (tłumaczenie automatyczne)
Lokalizacja (około)
Przybliżone położenie nieruchomości/kompleksu zaznaczono na mapie czerwonym znacznikiem.
Nasze top oferty do sprzedaz Sofia, Bulgaria
Nieruchomości według rejonu, Sofia
- Nieruchomości w dzielnica"Malinova Dolina"
- Nieruchomości w dzielnica"Krustova Vada"
- Nieruchomości w dzielnica"Manastirski Livadi - East"
- Nieruchomości w dzielnica"Center"
- Nieruchomości w dzielnica"Boyana"
- Nieruchomości w dzielnica"Dragalevtsi"
- Nieruchomości w dzielnica"Vitosha"
- Nieruchomości w dzielnica"Lozenets"
- Nieruchomości w dzielnica"Mladost 3"
- Nieruchomości w dzielnica"Manastirski Livadi - West"
Popularne wyszukiwania
wszystkie według wyszukiwania


ORIGINAL: