Klasa budynku/kompleksu
Standardowy
Liczba pięter w budynku
6
Piętro
2
pokoie
3
Sypialnie
2
Łazienki
1
Toalety
1
Piwnica
tak
Piwnica (powierzchnia)
1.90 m2

Całkowita powierzchnia
94.21 m2
Stan
W trakcie budowy
Planowane zakończenie
April 2028

Cena
170 237 €
1 807 €/m2
Zapytanie o więcej informacji lub oględziny
Pakiet informacyjny
Stan
unfinished internally
Umeblowanie
Ściany wewnętrzne
Izolacja wewnętrzna
Ogrzewanie
Klimatyzacje
Odległości
Ostatnieia aktualizacja
01.12.2025 r.
Odległości od nieruchomości do innych ważnych obiektów
- Centrum miasta: 5.5km
- Lotnisko Sofia (SOF): 13km
Budowa
- Konstrukcja żelbetowa
Ogrzewanie
- Klimatyzacje
Informacje administracyjne dotyczące oferty
- Elektryczność
- Woda
- Balkon
- Izolacja wewnętrzna
- Niedokończone wnętrze
- Potrójne przeszklenie
- Ramy okienne PCV
- Winda
Tekst został automatycznie przetłumaczony przez oprogramowanie i może zawierać nieścisłości.
Możesz zobaczyć tekst w oryginalnym języku lub przetłumaczyć na inne języki:
Prezentujemy na sprzedaż trzypokojowe mieszkanie w nowym budynku mieszkalnym w jednej z dynamicznie rozwijających się dzielnic stolicy – „Modern Suburb”. Budynek został zaprojektowany z myślą o osobach poszukujących komfortu, bezpieczeństwa i dostępności, bez kompromisów w zakresie jakości i efektywności energetycznej.
Parametry właściwości
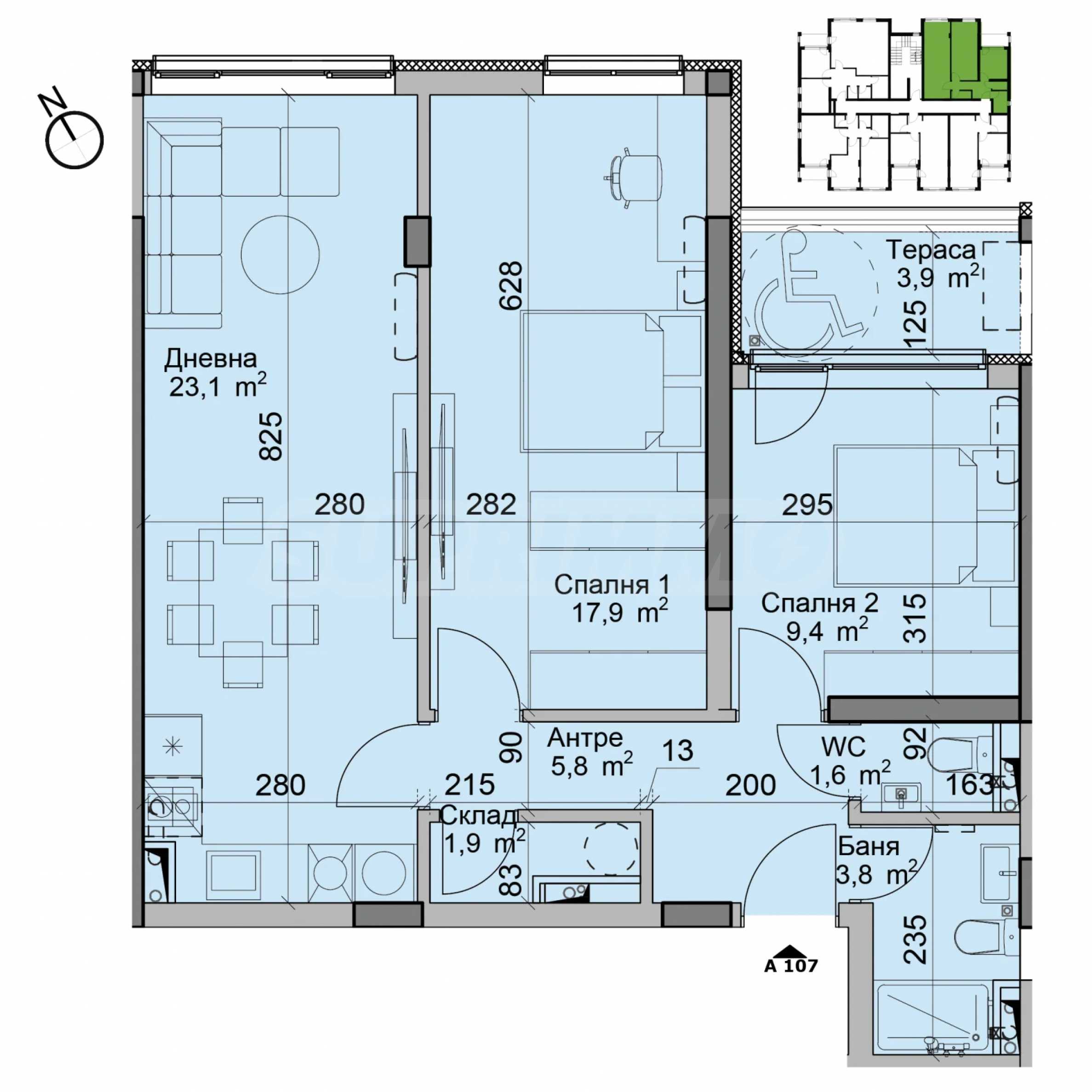
Mieszkanie o powierzchni całkowitej 94,21 m2 znajduje się na 2 piętrze i ma następujący układ:
• 2 sypialnie
• salon;
• łazienka z toaletą;
• taras.
Lokalizacja i otoczenie
Budynek położony jest w cichej i dobrze rozwiniętej dzielnicy miejskiej, oferując doskonałe połączenie z głównymi arteriami komunikacyjnymi, takimi jak bulwar Slivnitsa i ulica Lomsko. W pobliżu znajdują się hipermarkety, szkoły, przedszkola, placówki służby zdrowia oraz przystanki komunikacji miejskiej, a także szybki dostęp do stacji metra Slivnitsa, co czyni to miejsce dogodnym zarówno do zamieszkania, jak i inwestycji.
Oczekiwany Akt 16 – kwiecień 2028 r.
*Oferowana cena została ustalona na podstawie planu płatności „50%/30%/10%/10%”.
Dostępne są również dwa dodatkowe systemy: „30%/30%/30%/10%” i „20%/0%/0%/80%”.
Budynek składa się z 25 apartamentów, w tym trzypokojowych i jednego dwupokojowego na sprzedaż, zaprojektowanych z dbałością o funkcjonalność, światło i przestrzeń. Apartamenty oferowane są zgodnie z bułgarskimi standardami budowlanymi (tynk i wylewka). Projekt charakteryzuje się nowoczesną kompozycją elewacji, zapewniającą maksymalne doświetlenie naturalne, a także oknami PCV Gealan 8000 z potrójnymi szybami, zapewniającymi optymalną izolację akustyczną i cieplną. Nowoczesna wizja architektoniczna łączy się z praktycznymi rozwiązaniami i energooszczędnymi technologiami, zapewniając komfortowe warunki i niskie koszty utrzymania.
Główne cechy:
• konstrukcja żelbetowa monolityczna z pustaków Porotherm 25 Light Plus firmy Wienerberger;
• wysokiej klasy izolacyjność termiczna elewacji i stolarka o współczynniku energetycznym Ug = 0,7 W/m²K;
• doskonała izolacja akustyczna oraz ochrona przed zimnem, wilgocią i przeciągami – gwarantowana przez uszczelki EPDM;
• Winda Orona X15 – model bez maszynowni, o pojemności 6 osób i dostępie dla osób niepełnosprawnych;
• Drzwi wejściowe pancerne Parkdoor SL208 – nowoczesny design i wysoki poziom bezpieczeństwa;
• system hydroizolacji piwnic – dwuwarstwowa membrana bitumiczna i dodatkowa ochrona HDPE;
• dach z izolacją termiczną XPS o grubości 12 cm i dwuwarstwową membraną bitumiczną z posypką;
• moc elektryczna do 10 kW na mieszkanie – gwarancja niezawodnego zasilania;
• miejsca zabudowy dla zewnętrznych jednostek klimatyzacyjnych wraz z orurowaniem i odpływem;
• zagospodarowany dziedziniec z placem zabaw, miejscami rekreacyjnymi i ogrodzonym obszarem dla zwierząt.
Zalety budynku:
• efektywność energetyczna – budynek o niskim zużyciu energii i minimalnym wpływie na środowisko;
• funkcjonalne i jasne domy o optymalnym rozkładzie;
• 15 miejsc parkingowych i 8 garaży – wygoda dla każdego właściciela;
• spokojna okolica z nowoczesną infrastrukturą i dogodnym oraz szybkim dojazdem do centrum.
Czekamy na Państwa zapytanie.
Jeśli chcesz umówić się na obejrzenie interesującej Cię nieruchomości lub odwiedzić jedno z naszych biur, skontaktuj się z nami. Aby umówić się na spotkanie lub oględziny, zadzwoń pod numer telefonu podany w ogłoszeniu lub wyślij zapytanie e-mailem. Nasz konsultant pomoże Ci w ustaleniu wszystkich niezbędnych szczegółów i ustali dogodny termin.
Szukasz odpowiedniej nieruchomości dla siebie?
Skontaktuj się z nami i opowiedz nam o swoich potrzebach i preferencjach. Nasz zespół przeprowadzi dogłębną analizę rynku, aby zaoferować Ci nieruchomości idealnie odpowiadające Twoim kryteriom. Posiadamy wyjątkowe portfolio wysokiej jakości, ekskluzywnych domów, dostępnych wyłącznie dla naszych klientów. Aby być pierwszym, który otrzyma o nich informacje – skontaktuj się z nami.
Usługi dodatkowe
Jako ceniony klient naszej firmy, będziesz miał przywilej korzystania z usług naszego doświadczonego zespołu prawnego całkowicie bezpłatnie. Ponadto oferujemy kompleksowe rozwiązania, w tym ubezpieczenia nieruchomości, bezpłatne doradztwo finansowe, a także korzystne warunki finansowania. Nasze usługi obejmują również odsprzedaż, wynajem i zarządzanie nieruchomościami. Zapewniamy wysokiej jakości remonty i wyposażenie wnętrz za pośrednictwem wyspecjalizowanych firm wchodzących w skład naszej grupy kapitałowej i będących naszymi wieloletnimi partnerami.
Ogledziny nieruchomosci
Mozemy zorganizowac ogledziny nieruchomosci, w dogodnym dla Panstwa terminie. W tym celu prosimy o skontaktowanie sie z agentem odpowiedzialnym za te oferte.
Rezerwacja nieruchomosci
Nieruchomosc moze byc zarezerwowana i wycofana ze sprzedazy po wplaceniu zadatku, po czym ustaje ogladanie z innymi kupujacymi i rozpoczyna sie przygotowanie dokumentow do zawarcia umowy przedwstepnej i ostatecznej.
Prosimy o kontakt z agentem odpowiedzialnym za te nieruchomosc w celu uzyskania szczegolowych informacji dotyczacych procedury zakupu i metod platnosci.
Uslugi dodatkowe i obsluga posprzedazowa
Jestesmy sprawdzona firma o dobrej reputacji i wieloletnim doswiadczeniu. Dlatego bedziemy z Panstwem nie tylko w trakcie zakupu, ale takze po jego zakonczeniu, swiadczac na Panstwa zyczenie dodatkowe uslugi, aby w pelni i bezproblemowo korzystac z nowo zakupionej nieruchomosci. Uslugi, ktore mozemy zaoferowac, obejmuja uzyskanie zgody na kredyt hipoteczny z bulgarskiego banku, ubezpieczenia majatku ruchomego i nieruchomosci, ubezpieczenia na zycie, ubezpieczenia medyczne i samochodowe, prace budowlane i remontowe, meblowanie, uslugi prawne i ksiegowe itp.
Parametry właściwości
Mieszkanie o powierzchni całkowitej 94,21 m2 znajduje się na 2 piętrze i ma następujący układ:
• 2 sypialnie
• salon;
• łazienka z toaletą;
• taras.
Lokalizacja i otoczenie
Budynek położony jest w cichej i dobrze rozwiniętej dzielnicy miejskiej, oferując doskonałe połączenie z głównymi arteriami komunikacyjnymi, takimi jak bulwar Slivnitsa i ulica Lomsko. W pobliżu znajdują się hipermarkety, szkoły, przedszkola, placówki służby zdrowia oraz przystanki komunikacji miejskiej, a także szybki dostęp do stacji metra Slivnitsa, co czyni to miejsce dogodnym zarówno do zamieszkania, jak i inwestycji.
Oczekiwany Akt 16 – kwiecień 2028 r.
*Oferowana cena została ustalona na podstawie planu płatności „50%/30%/10%/10%”.
Dostępne są również dwa dodatkowe systemy: „30%/30%/30%/10%” i „20%/0%/0%/80%”.
Budynek składa się z 25 apartamentów, w tym trzypokojowych i jednego dwupokojowego na sprzedaż, zaprojektowanych z dbałością o funkcjonalność, światło i przestrzeń. Apartamenty oferowane są zgodnie z bułgarskimi standardami budowlanymi (tynk i wylewka). Projekt charakteryzuje się nowoczesną kompozycją elewacji, zapewniającą maksymalne doświetlenie naturalne, a także oknami PCV Gealan 8000 z potrójnymi szybami, zapewniającymi optymalną izolację akustyczną i cieplną. Nowoczesna wizja architektoniczna łączy się z praktycznymi rozwiązaniami i energooszczędnymi technologiami, zapewniając komfortowe warunki i niskie koszty utrzymania.
Główne cechy:
• konstrukcja żelbetowa monolityczna z pustaków Porotherm 25 Light Plus firmy Wienerberger;
• wysokiej klasy izolacyjność termiczna elewacji i stolarka o współczynniku energetycznym Ug = 0,7 W/m²K;
• doskonała izolacja akustyczna oraz ochrona przed zimnem, wilgocią i przeciągami – gwarantowana przez uszczelki EPDM;
• Winda Orona X15 – model bez maszynowni, o pojemności 6 osób i dostępie dla osób niepełnosprawnych;
• Drzwi wejściowe pancerne Parkdoor SL208 – nowoczesny design i wysoki poziom bezpieczeństwa;
• system hydroizolacji piwnic – dwuwarstwowa membrana bitumiczna i dodatkowa ochrona HDPE;
• dach z izolacją termiczną XPS o grubości 12 cm i dwuwarstwową membraną bitumiczną z posypką;
• moc elektryczna do 10 kW na mieszkanie – gwarancja niezawodnego zasilania;
• miejsca zabudowy dla zewnętrznych jednostek klimatyzacyjnych wraz z orurowaniem i odpływem;
• zagospodarowany dziedziniec z placem zabaw, miejscami rekreacyjnymi i ogrodzonym obszarem dla zwierząt.
Zalety budynku:
• efektywność energetyczna – budynek o niskim zużyciu energii i minimalnym wpływie na środowisko;
• funkcjonalne i jasne domy o optymalnym rozkładzie;
• 15 miejsc parkingowych i 8 garaży – wygoda dla każdego właściciela;
• spokojna okolica z nowoczesną infrastrukturą i dogodnym oraz szybkim dojazdem do centrum.
Czekamy na Państwa zapytanie.
Jeśli chcesz umówić się na obejrzenie interesującej Cię nieruchomości lub odwiedzić jedno z naszych biur, skontaktuj się z nami. Aby umówić się na spotkanie lub oględziny, zadzwoń pod numer telefonu podany w ogłoszeniu lub wyślij zapytanie e-mailem. Nasz konsultant pomoże Ci w ustaleniu wszystkich niezbędnych szczegółów i ustali dogodny termin.
Szukasz odpowiedniej nieruchomości dla siebie?
Skontaktuj się z nami i opowiedz nam o swoich potrzebach i preferencjach. Nasz zespół przeprowadzi dogłębną analizę rynku, aby zaoferować Ci nieruchomości idealnie odpowiadające Twoim kryteriom. Posiadamy wyjątkowe portfolio wysokiej jakości, ekskluzywnych domów, dostępnych wyłącznie dla naszych klientów. Aby być pierwszym, który otrzyma o nich informacje – skontaktuj się z nami.
Usługi dodatkowe
Jako ceniony klient naszej firmy, będziesz miał przywilej korzystania z usług naszego doświadczonego zespołu prawnego całkowicie bezpłatnie. Ponadto oferujemy kompleksowe rozwiązania, w tym ubezpieczenia nieruchomości, bezpłatne doradztwo finansowe, a także korzystne warunki finansowania. Nasze usługi obejmują również odsprzedaż, wynajem i zarządzanie nieruchomościami. Zapewniamy wysokiej jakości remonty i wyposażenie wnętrz za pośrednictwem wyspecjalizowanych firm wchodzących w skład naszej grupy kapitałowej i będących naszymi wieloletnimi partnerami.
Ogledziny nieruchomosci
Mozemy zorganizowac ogledziny nieruchomosci, w dogodnym dla Panstwa terminie. W tym celu prosimy o skontaktowanie sie z agentem odpowiedzialnym za te oferte.
Rezerwacja nieruchomosci
Nieruchomosc moze byc zarezerwowana i wycofana ze sprzedazy po wplaceniu zadatku, po czym ustaje ogladanie z innymi kupujacymi i rozpoczyna sie przygotowanie dokumentow do zawarcia umowy przedwstepnej i ostatecznej.
Prosimy o kontakt z agentem odpowiedzialnym za te nieruchomosc w celu uzyskania szczegolowych informacji dotyczacych procedury zakupu i metod platnosci.
Uslugi dodatkowe i obsluga posprzedazowa
Jestesmy sprawdzona firma o dobrej reputacji i wieloletnim doswiadczeniu. Dlatego bedziemy z Panstwem nie tylko w trakcie zakupu, ale takze po jego zakonczeniu, swiadczac na Panstwa zyczenie dodatkowe uslugi, aby w pelni i bezproblemowo korzystac z nowo zakupionej nieruchomosci. Uslugi, ktore mozemy zaoferowac, obejmuja uzyskanie zgody na kredyt hipoteczny z bulgarskiego banku, ubezpieczenia majatku ruchomego i nieruchomosci, ubezpieczenia na zycie, ubezpieczenia medyczne i samochodowe, prace budowlane i remontowe, meblowanie, uslugi prawne i ksiegowe itp.
Zobacz tekst w innych językach (tłumaczenie automatyczne)
Lokalizacja (około)
Przybliżone położenie nieruchomości/kompleksu zaznaczono na mapie czerwonym znacznikiem.
Nasze top oferty do sprzedaz Sofia, Bulgaria
Nieruchomości według rejonu, Sofia
- Nieruchomości w dzielnica"Malinova Dolina"
- Nieruchomości w dzielnica"Krustova Vada"
- Nieruchomości w dzielnica"Manastirski Livadi - East"
- Nieruchomości w dzielnica"Center"
- Nieruchomości w dzielnica"Boyana"
- Nieruchomości w dzielnica"Dragalevtsi"
- Nieruchomości w dzielnica"Vitosha"
- Nieruchomości w dzielnica"Lozenets"
- Nieruchomości w dzielnica"Mladost 3"
- Nieruchomości w dzielnica"Manastirski Livadi - West"
Popularne wyszukiwania
wszystkie według wyszukiwania


ORIGINAL: