Liczba pięter w budynku
5
Piętro
2
Winda
tak
pokoie
1
Łazienki
1
Balkony (tarasy) szt.:
1

Całkowita powierzchnia
38.10 m2
Powierzchnia zabudowana
32.15 m2
Części wspólne
5.95 m2
Stan
W trakcie budowy
Planowane zakończenie
June 2028

Cena
49 530 €
1 300 €/m2
Zapytanie o więcej informacji lub oględziny
Pakiet informacyjny
Stan
key-ready (unfurnished)
Umeblowanie
Łazienki
W pełni wyposażona łazienka
Ogrzewanie
Klimatyzacje
Odległości
Ostatnieia aktualizacja
24.11.2025 r.
Odległości od nieruchomości do innych ważnych obiektów
- Lotnisko Varna (VAR): 59.4km
Widoki z nieruchomości
- Widoki na morze
Budowa
- Cegła
- Konstrukcja żelbetowa
Ogrzewanie
- Klimatyzacje
Informacje administracyjne dotyczące oferty
- Elektryczność
- Komunalne dostarczanie wody
- Woda
- Odwodnienie sieciowe
- Łazienka z toaletą
- Balkon
- Ściany malowane lateksem
- Drzwi wewnętrzne
- Podłoga z płytek granitowych
- Ramy okienne PCV
- Bojler elektryczny
- W pełni wyposażona łazienka
- Basen
- Osiedle zamknięte
- Winda
- Ogród
- Ogród z kwiatami
- Zadbany ogród
- W pobliżu sklepy spożywcze
Tekst został automatycznie przetłumaczony przez oprogramowanie i może zawierać nieścisłości.
Możesz zobaczyć tekst w oryginalnym języku lub przetłumaczyć na inne języki:
Prezentujemy studio w nowym, strzeżonym osiedlu z niesamowitym widokiem na morze w Białej, 200 metrów od plaży i zaledwie 10 minut od centrum miasta. Biała jest ceniona za świeże powietrze i dziewicze piękno przyrody.
Etapy budowy:
• z Ustawą 14;
• Ustawa 16 do czerwca 2028 r.
Kompleks położony jest na działce o powierzchni 4928 m², składa się z 4 budynków i został zaprojektowany tak, aby zapewnić piękny widok na morze z każdego apartamentu. Funkcjonalnie zaprojektowane apartamenty to kawalerki, apartamenty jedno- i trzypokojowe z przestronnymi tarasami widokowymi.
Parametry właściwości
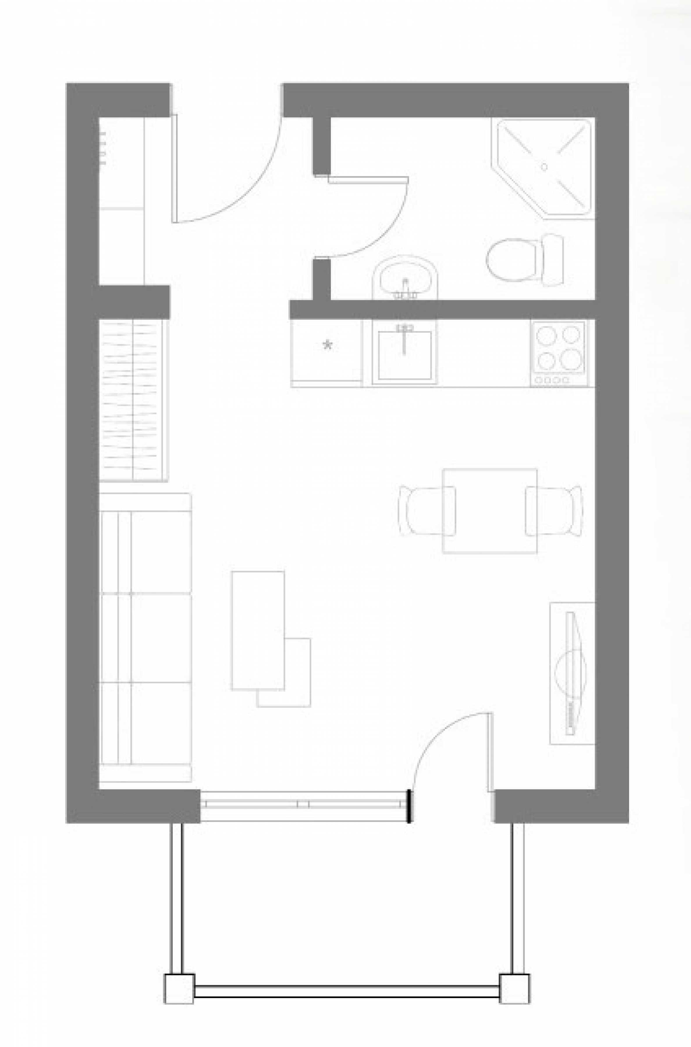
Mieszkanie o powierzchni całkowitej 38,10 mkw. znajduje się na 2 piętrze w 5.
Apartamenty wynajmowane są w stanie wykończonym pod klucz:
• łazienka z WC - podłoga - płytki granitowe, ściany - fajans, ceramika sanitarna, bojler;
• hol wejściowy - podłoga - płytki granitowe, ściany - gładź, tynk, farba;
• kuchnia - podłoga - płytki granitowe, ściany - szpachlówka, tynk, farba;
• salon i sypialnie - podłoga - panele, ściany - szpachlówka, tynk, farba;
• taras - podłoga - płytki granitowe;
• drzwi - MDF;
• okna - PCV;
• zainstalowany system domofonowy;
• ukryte okablowanie światłowodowe do internetu i telewizji.
Jakość i efektywność energetyczna
Do budowy budynków użyto wysokiej jakości materiałów budowlanych i nowoczesnych technologii, które zapewniają wysoką efektywność energetyczną, dobrą wymianę ciepła i pozwalają zaoszczędzić sporo kosztów utrzymania budynku.
Ogólna koncepcja zakłada spokojny i zdrowy styl życia oraz rekreację, spełniając oczekiwania co do dobrego standardu, bezpieczeństwa, wygody, zieleni i pobliskich udogodnień.
Części wspólne
Funkcjonalna organizacja przestrzeni w małych częściach wspólnych wyłożonych kafelkami.
Udogodnienia w kompleksie:
• basen zewnętrzny;
• teren rekreacyjny;
• parkowanie odbywa się na szerokim i wygodnym parkingu zewnętrznym;
• zagospodarowanie terenu – szczególną uwagę poświęcono otoczeniu parku, a przestrzenie wokół budynków zagospodarowano bogato i wyposażono w sterowanie oświetleniem parku;
• kontrola dostępu i bezpieczeństwo - system chipowy umożliwiający dostęp do kompleksu i poszczególnych budynków, całodobowy monitoring wizyjny i nagrywanie wejść i podejść do kompleksu.
Lokalizacja:
• 400 m od boiska piłkarskiego, boisk sportowych i centrum fitness;
• 800 m od centrum miasta;
• 900 m od T-marketu;
• 900 m od ośrodka zdrowia;
• 1 km od dworca autobusowego;
• 50 km od Warny i 67 km od Burgas.
Projekt jest dziełem uznanej firmy budowlano-inwestycyjnej – laureata nagrody specjalnej w ogólnopolskim konkursie „Budowa Roku Bułgaria 2021” w kategorii budynków mieszkalnych o powierzchni całkowitej powyżej 10 000 m2, z 15-letnim doświadczeniem.
Trzy standardowe elastyczne plany płatności:
• Plan A (standardowy) – wpłata początkowa – 30% wartości nieruchomości;
• Plan B – wpłata początkowa – 50%, z rabatem 3% od ceny końcowej;
• Plan C – wpłata początkowa - 90%, z rabatem 5% od ceny końcowej.
Aby uzyskać więcej informacji skontaktuj się z brokerem odpowiedzialnym za ofertę.
Ogledziny nieruchomosci
Mozemy zorganizowac ogledziny nieruchomosci, w dogodnym dla Panstwa terminie. W tym celu prosimy o skontaktowanie sie z agentem odpowiedzialnym za te oferte.
Rezerwacja nieruchomosci
Nieruchomosc moze byc zarezerwowana i wycofana ze sprzedazy po wplaceniu zadatku, po czym ustaje ogladanie z innymi kupujacymi i rozpoczyna sie przygotowanie dokumentow do zawarcia umowy przedwstepnej i ostatecznej.
Prosimy o kontakt z agentem odpowiedzialnym za te nieruchomosc w celu uzyskania szczegolowych informacji dotyczacych procedury zakupu i metod platnosci.
Uslugi dodatkowe i obsluga posprzedazowa
Jestesmy sprawdzona firma o dobrej reputacji i wieloletnim doswiadczeniu. Dlatego bedziemy z Panstwem nie tylko w trakcie zakupu, ale takze po jego zakonczeniu, swiadczac na Panstwa zyczenie dodatkowe uslugi, aby w pelni i bezproblemowo korzystac z nowo zakupionej nieruchomosci. Uslugi, ktore mozemy zaoferowac, obejmuja uzyskanie zgody na kredyt hipoteczny z bulgarskiego banku, ubezpieczenia majatku ruchomego i nieruchomosci, ubezpieczenia na zycie, ubezpieczenia medyczne i samochodowe, prace budowlane i remontowe, meblowanie, uslugi prawne i ksiegowe itp.
Etapy budowy:
• z Ustawą 14;
• Ustawa 16 do czerwca 2028 r.
Kompleks położony jest na działce o powierzchni 4928 m², składa się z 4 budynków i został zaprojektowany tak, aby zapewnić piękny widok na morze z każdego apartamentu. Funkcjonalnie zaprojektowane apartamenty to kawalerki, apartamenty jedno- i trzypokojowe z przestronnymi tarasami widokowymi.
Parametry właściwości
Mieszkanie o powierzchni całkowitej 38,10 mkw. znajduje się na 2 piętrze w 5.
Apartamenty wynajmowane są w stanie wykończonym pod klucz:
• łazienka z WC - podłoga - płytki granitowe, ściany - fajans, ceramika sanitarna, bojler;
• hol wejściowy - podłoga - płytki granitowe, ściany - gładź, tynk, farba;
• kuchnia - podłoga - płytki granitowe, ściany - szpachlówka, tynk, farba;
• salon i sypialnie - podłoga - panele, ściany - szpachlówka, tynk, farba;
• taras - podłoga - płytki granitowe;
• drzwi - MDF;
• okna - PCV;
• zainstalowany system domofonowy;
• ukryte okablowanie światłowodowe do internetu i telewizji.
Jakość i efektywność energetyczna
Do budowy budynków użyto wysokiej jakości materiałów budowlanych i nowoczesnych technologii, które zapewniają wysoką efektywność energetyczną, dobrą wymianę ciepła i pozwalają zaoszczędzić sporo kosztów utrzymania budynku.
Ogólna koncepcja zakłada spokojny i zdrowy styl życia oraz rekreację, spełniając oczekiwania co do dobrego standardu, bezpieczeństwa, wygody, zieleni i pobliskich udogodnień.
Części wspólne
Funkcjonalna organizacja przestrzeni w małych częściach wspólnych wyłożonych kafelkami.
Udogodnienia w kompleksie:
• basen zewnętrzny;
• teren rekreacyjny;
• parkowanie odbywa się na szerokim i wygodnym parkingu zewnętrznym;
• zagospodarowanie terenu – szczególną uwagę poświęcono otoczeniu parku, a przestrzenie wokół budynków zagospodarowano bogato i wyposażono w sterowanie oświetleniem parku;
• kontrola dostępu i bezpieczeństwo - system chipowy umożliwiający dostęp do kompleksu i poszczególnych budynków, całodobowy monitoring wizyjny i nagrywanie wejść i podejść do kompleksu.
Lokalizacja:
• 400 m od boiska piłkarskiego, boisk sportowych i centrum fitness;
• 800 m od centrum miasta;
• 900 m od T-marketu;
• 900 m od ośrodka zdrowia;
• 1 km od dworca autobusowego;
• 50 km od Warny i 67 km od Burgas.
Projekt jest dziełem uznanej firmy budowlano-inwestycyjnej – laureata nagrody specjalnej w ogólnopolskim konkursie „Budowa Roku Bułgaria 2021” w kategorii budynków mieszkalnych o powierzchni całkowitej powyżej 10 000 m2, z 15-letnim doświadczeniem.
Trzy standardowe elastyczne plany płatności:
• Plan A (standardowy) – wpłata początkowa – 30% wartości nieruchomości;
• Plan B – wpłata początkowa – 50%, z rabatem 3% od ceny końcowej;
• Plan C – wpłata początkowa - 90%, z rabatem 5% od ceny końcowej.
Aby uzyskać więcej informacji skontaktuj się z brokerem odpowiedzialnym za ofertę.
Ogledziny nieruchomosci
Mozemy zorganizowac ogledziny nieruchomosci, w dogodnym dla Panstwa terminie. W tym celu prosimy o skontaktowanie sie z agentem odpowiedzialnym za te oferte.
Rezerwacja nieruchomosci
Nieruchomosc moze byc zarezerwowana i wycofana ze sprzedazy po wplaceniu zadatku, po czym ustaje ogladanie z innymi kupujacymi i rozpoczyna sie przygotowanie dokumentow do zawarcia umowy przedwstepnej i ostatecznej.
Prosimy o kontakt z agentem odpowiedzialnym za te nieruchomosc w celu uzyskania szczegolowych informacji dotyczacych procedury zakupu i metod platnosci.
Uslugi dodatkowe i obsluga posprzedazowa
Jestesmy sprawdzona firma o dobrej reputacji i wieloletnim doswiadczeniu. Dlatego bedziemy z Panstwem nie tylko w trakcie zakupu, ale takze po jego zakonczeniu, swiadczac na Panstwa zyczenie dodatkowe uslugi, aby w pelni i bezproblemowo korzystac z nowo zakupionej nieruchomosci. Uslugi, ktore mozemy zaoferowac, obejmuja uzyskanie zgody na kredyt hipoteczny z bulgarskiego banku, ubezpieczenia majatku ruchomego i nieruchomosci, ubezpieczenia na zycie, ubezpieczenia medyczne i samochodowe, prace budowlane i remontowe, meblowanie, uslugi prawne i ksiegowe itp.
Zobacz tekst w innych językach (tłumaczenie automatyczne)
Lokalizacja (około)
Przybliżone położenie nieruchomości/kompleksu zaznaczono na mapie czerwonym znacznikiem.
Nasze top oferty do sprzedaz Byala (Varna), Bulgaria
Nieruchomości według rejonu
wszystko według miasta
Nieruchomość według typu, Byala (Varna)
- Dzia³ki budowlane Byala (Varna)
- Apartamenty dwupokojowe Byala (Varna)
- Apartamenty trzypokojowe Byala (Varna)
- Domy Byala (Varna)
- Studia Byala (Varna)
- Działki inwestycyjne Byala (Varna)
- Apartamenty Byala (Varna)
- Działki Byala (Varna)
- Penthousy Byala (Varna)
- 4-pokojowe apartamenty Byala (Varna)


ORIGINAL: