Piętro
6
Winda
tak
pokoie
2
Sypialnie
1
Łazienki
1
Piwnica
tak
Piwnica (powierzchnia)
1.84 m2

Całkowita powierzchnia
56.34 m2
Stan
W trakcie budowy
Planowane zakończenie
March 2027

Cena
98 595 €
(bez VAT)
1 750 €/m2
(bez VAT)
Zapytanie o więcej informacji lub oględziny
Pakiet informacyjny
Odległości
Ostatnieia aktualizacja
03.12.2025 r.
Odległości od nieruchomości do innych ważnych obiektów
- Centrum miasta: 5km
- Lotnisko Sofia (SOF): 2.6km
Ogrzewanie
- Ogrzewanie elektryczne
Informacje administracyjne dotyczące oferty
- Elektryczność
- Komunalne dostarczanie wody
- Izolacja zewnętrzna
- Niedokończone wnętrze
- Pancerne drzwi wejściowe
- Potrójne przeszklenie
- Luksusowe części wspólne
- Winda
Tekst został automatycznie przetłumaczony przez oprogramowanie i może zawierać nieścisłości.
Możesz zobaczyć tekst w oryginalnym języku lub przetłumaczyć na inne języki:
Prezentujemy jednopokojowe mieszkanie w nowym, wysokiej jakości budynku w dzielnicy „Lewski”, w dogodnej lokalizacji z szybkim dostępem do „Botevgradsko Shose”, która łączy okolicę z bulwarem „Madryt” i zapewnia dogodne połączenie z centrum Sofii. Koncepcja apartamentu została opracowana z naciskiem na maksymalną efektywność energetyczną i niskie koszty utrzymania, dzięki zastosowaniu wysokiej jakości materiałów i wykonaniu.
W trakcie realizacji. Planowana ustawa nr 16 – marzec 2027 r.
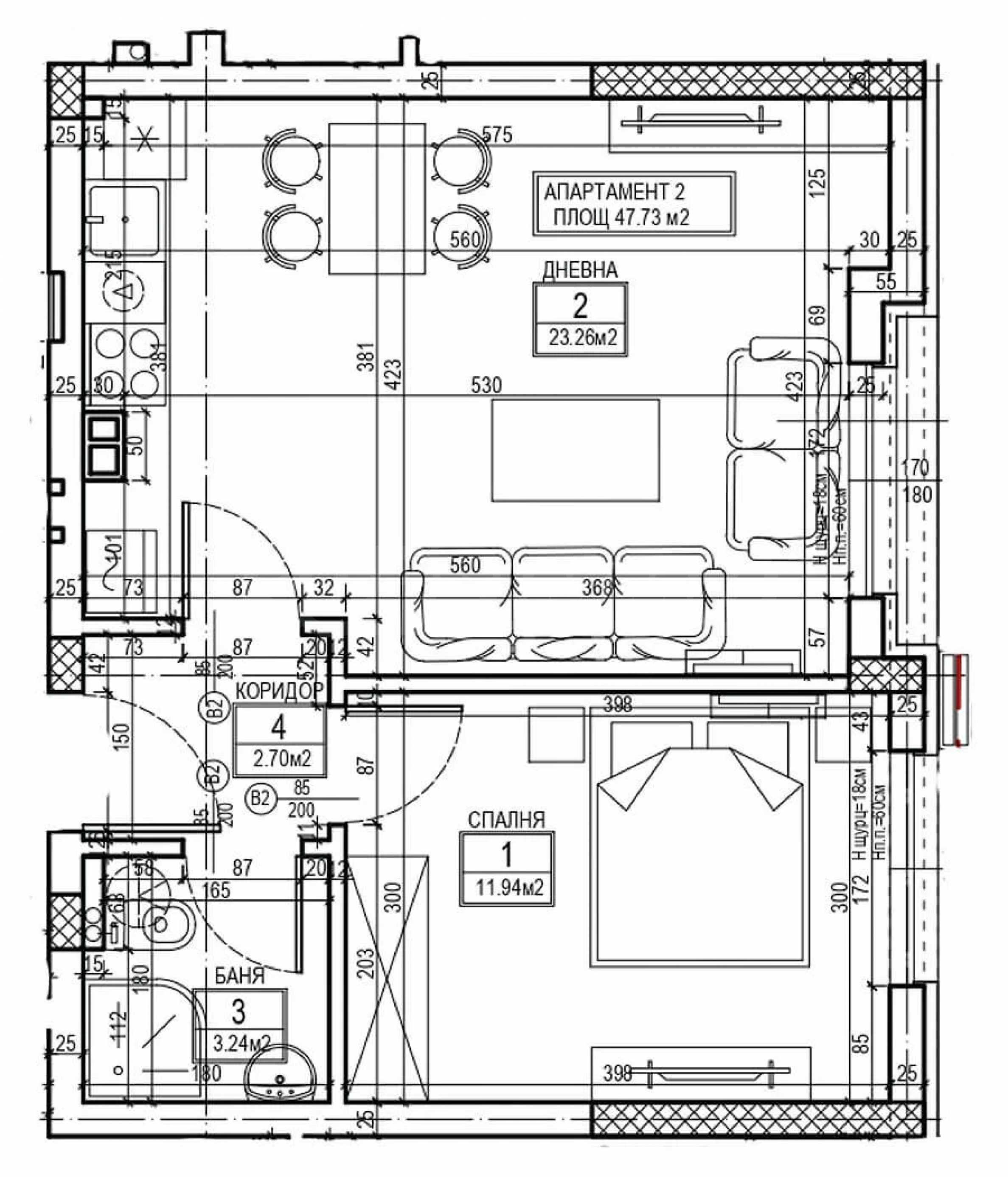
Nieruchomość o powierzchni całkowitej 56,34 m² znajduje się na parterze i składa się z przedpokoju, salonu z kuchnią, sypialni oraz łazienki z toaletą. Do nieruchomości przynależy piwnica o powierzchni 1,84 m². Mieszkanie jest wynajmowane zgodnie z bułgarskim kodeksem handlowym, z możliwością własnej aranżacji wnętrza przez nowego właściciela.
Podana cena nie zawiera podatku VAT.
Budynek mieszkalny zaprojektowano na 6 kondygnacjach + piwnica, z łącznie 19 apartamentami. Części wspólne zostaną wykończone w luksusowym stylu, z dbałością o detale i wysokimi standardami jakości.
Dostępne w sprzedaży są:
• mieszkania dwupokojowe;
• jedno mieszkanie trzypokojowe;
• dwa studia na najwyższym piętrze.
Dla maksymalnej wygody udostępniamy:
• 14 miejsc parkingowych podziemnych;
• 5 miejsc parkingowych na zewnątrz.
*Istnieje możliwość zakupu podziemnych miejsc parkingowych w cenie 27 000 euro (52 806,60 BGN) bez VAT.
Budownictwo, materiały i efektywność energetyczna:
• Elewacja z ociepleniem 10 cm EPS Baumit;
• Dach z wełny mineralnej o grubości 14 cm i podwójnej hydroizolacji, wykończony dachówką bitumiczną;
• Ściany zewnętrzne i działowe wykonane z wysokiej jakości cegły firmy Wienerberger;
• Ściany elewacyjne z połączenia tynku polimerowego i cegły dekoracyjnej Caparol;
• Okna Veka pięciokomorowe z potrójnym pakietem szybowym z szybą typu K – doskonała izolacja akustyczna i cieplna;
• Drzwi wejściowe pancerne;
• XPS pod wylewką podłogową we wszystkich pomieszczeniach – dla lepszej izolacji akustycznej i cieplnej;
• Wbudowane: instalacja dzwonkowa, telefoniczna i domofonowa, okablowanie internetowe i telewizyjne.
Funkcjonalność i wygoda:
• Doskonałe rozkłady - nieruchomości nadają się zarówno do zamieszkania, jak i jako inwestycja;
• Jasne pomieszczenia i nowoczesne rozwiązania architektoniczne;
• Dogodny dostęp do dróg i komunikacji miejskiej;
• Spokojna i zadbana okolica z potencjałem stabilnego rozwoju.
Czekamy na Państwa zapytanie.
Jeśli chcesz umówić się na obejrzenie interesującej Cię nieruchomości lub odwiedzić jedno z naszych biur, skontaktuj się z nami. Aby umówić się na spotkanie lub oględziny, zadzwoń pod numer telefonu podany w ogłoszeniu lub wyślij zapytanie e-mailem. Nasz konsultant pomoże Ci w ustaleniu wszystkich niezbędnych szczegółów i ustali dogodny termin.
Szukasz odpowiedniej nieruchomości dla siebie?
Skontaktuj się z nami i opowiedz nam o swoich potrzebach i preferencjach. Nasz zespół przeprowadzi dogłębną analizę rynku, aby zaoferować Ci nieruchomości idealnie odpowiadające Twoim kryteriom. Posiadamy wyjątkowe portfolio wysokiej jakości, ekskluzywnych domów, dostępnych wyłącznie dla naszych klientów. Aby być pierwszym, który otrzyma o nich informacje – skontaktuj się z nami.
Usługi dodatkowe
Jako ceniony klient naszej firmy, będziesz miał przywilej korzystania z usług naszego doświadczonego zespołu prawnego całkowicie bezpłatnie. Ponadto oferujemy kompleksowe rozwiązania, w tym ubezpieczenie nieruchomości, bezpłatne doradztwo finansowe, a także korzystne warunki finansowania. Nasze usługi obejmują również odsprzedaż, wynajem i zarządzanie nieruchomościami. Zapewniamy wysokiej jakości remonty i wyposażenie wnętrz za pośrednictwem wyspecjalizowanych firm wchodzących w skład naszej grupy kapitałowej i będących naszymi wieloletnimi partnerami.
W trakcie realizacji. Planowana ustawa nr 16 – marzec 2027 r.
Nieruchomość o powierzchni całkowitej 56,34 m² znajduje się na parterze i składa się z przedpokoju, salonu z kuchnią, sypialni oraz łazienki z toaletą. Do nieruchomości przynależy piwnica o powierzchni 1,84 m². Mieszkanie jest wynajmowane zgodnie z bułgarskim kodeksem handlowym, z możliwością własnej aranżacji wnętrza przez nowego właściciela.
Podana cena nie zawiera podatku VAT.
Budynek mieszkalny zaprojektowano na 6 kondygnacjach + piwnica, z łącznie 19 apartamentami. Części wspólne zostaną wykończone w luksusowym stylu, z dbałością o detale i wysokimi standardami jakości.
Dostępne w sprzedaży są:
• mieszkania dwupokojowe;
• jedno mieszkanie trzypokojowe;
• dwa studia na najwyższym piętrze.
Dla maksymalnej wygody udostępniamy:
• 14 miejsc parkingowych podziemnych;
• 5 miejsc parkingowych na zewnątrz.
*Istnieje możliwość zakupu podziemnych miejsc parkingowych w cenie 27 000 euro (52 806,60 BGN) bez VAT.
Budownictwo, materiały i efektywność energetyczna:
• Elewacja z ociepleniem 10 cm EPS Baumit;
• Dach z wełny mineralnej o grubości 14 cm i podwójnej hydroizolacji, wykończony dachówką bitumiczną;
• Ściany zewnętrzne i działowe wykonane z wysokiej jakości cegły firmy Wienerberger;
• Ściany elewacyjne z połączenia tynku polimerowego i cegły dekoracyjnej Caparol;
• Okna Veka pięciokomorowe z potrójnym pakietem szybowym z szybą typu K – doskonała izolacja akustyczna i cieplna;
• Drzwi wejściowe pancerne;
• XPS pod wylewką podłogową we wszystkich pomieszczeniach – dla lepszej izolacji akustycznej i cieplnej;
• Wbudowane: instalacja dzwonkowa, telefoniczna i domofonowa, okablowanie internetowe i telewizyjne.
Funkcjonalność i wygoda:
• Doskonałe rozkłady - nieruchomości nadają się zarówno do zamieszkania, jak i jako inwestycja;
• Jasne pomieszczenia i nowoczesne rozwiązania architektoniczne;
• Dogodny dostęp do dróg i komunikacji miejskiej;
• Spokojna i zadbana okolica z potencjałem stabilnego rozwoju.
Czekamy na Państwa zapytanie.
Jeśli chcesz umówić się na obejrzenie interesującej Cię nieruchomości lub odwiedzić jedno z naszych biur, skontaktuj się z nami. Aby umówić się na spotkanie lub oględziny, zadzwoń pod numer telefonu podany w ogłoszeniu lub wyślij zapytanie e-mailem. Nasz konsultant pomoże Ci w ustaleniu wszystkich niezbędnych szczegółów i ustali dogodny termin.
Szukasz odpowiedniej nieruchomości dla siebie?
Skontaktuj się z nami i opowiedz nam o swoich potrzebach i preferencjach. Nasz zespół przeprowadzi dogłębną analizę rynku, aby zaoferować Ci nieruchomości idealnie odpowiadające Twoim kryteriom. Posiadamy wyjątkowe portfolio wysokiej jakości, ekskluzywnych domów, dostępnych wyłącznie dla naszych klientów. Aby być pierwszym, który otrzyma o nich informacje – skontaktuj się z nami.
Usługi dodatkowe
Jako ceniony klient naszej firmy, będziesz miał przywilej korzystania z usług naszego doświadczonego zespołu prawnego całkowicie bezpłatnie. Ponadto oferujemy kompleksowe rozwiązania, w tym ubezpieczenie nieruchomości, bezpłatne doradztwo finansowe, a także korzystne warunki finansowania. Nasze usługi obejmują również odsprzedaż, wynajem i zarządzanie nieruchomościami. Zapewniamy wysokiej jakości remonty i wyposażenie wnętrz za pośrednictwem wyspecjalizowanych firm wchodzących w skład naszej grupy kapitałowej i będących naszymi wieloletnimi partnerami.
Zobacz tekst w innych językach (tłumaczenie automatyczne)
Lokalizacja (około)
Przybliżone położenie nieruchomości/kompleksu zaznaczono na mapie czerwonym znacznikiem.
Nasze top oferty do sprzedaz Sofia, Bulgaria
Nieruchomości według rejonu, Sofia
- Nieruchomości w dzielnica"Malinova Dolina"
- Nieruchomości w dzielnica"Krustova Vada"
- Nieruchomości w dzielnica"Manastirski Livadi - East"
- Nieruchomości w dzielnica"Boyana"
- Nieruchomości w dzielnica"Center"
- Nieruchomości w dzielnica"Vitosha"
- Nieruchomości w dzielnica"Dragalevtsi"
- Nieruchomości w dzielnica"Lozenets"
- Nieruchomości w dzielnica"Mladost 3"
- Nieruchomości w dzielnica"Manastirski Livadi - West"
Popularne wyszukiwania
wszystkie według wyszukiwania


ORIGINAL: