
Lista cenowa
165 000 – 190 000 €
907 €/m2 – 1 044 €/m2
Zapytanie o więcej informacji lub oględziny
Pakiet informacyjny
Stan
unfinished internally
Umeblowanie
Nieumeblowane
Ogrzewanie
Kominek / Klimatyzacje
Odległości
Ostatnieia aktualizacja
12.03.2026 r.
Odległości od nieruchomości do innych ważnych obiektów
Budowa
- Cegła
Ogrzewanie
- Klimatyzacje
- Kominek
Informacje administracyjne dotyczące oferty
- Elektryczność
- Własne ujęcie wody
- Niedokończone wnętrze
- Ogród
Tekst został automatycznie przetłumaczony przez oprogramowanie i może zawierać nieścisłości.
Możesz zobaczyć tekst w oryginalnym języku lub przetłumaczyć na inne języki:
Oferujemy na sprzedaż nowoczesne domy w butikowym kompleksie Serenity Six. Kompleks położony jest w spokojnej i zielonej okolicy między Kableszkowem a Ahelojem, około 5 minut jazdy samochodem od morza (poniżej 2 km w linii prostej).
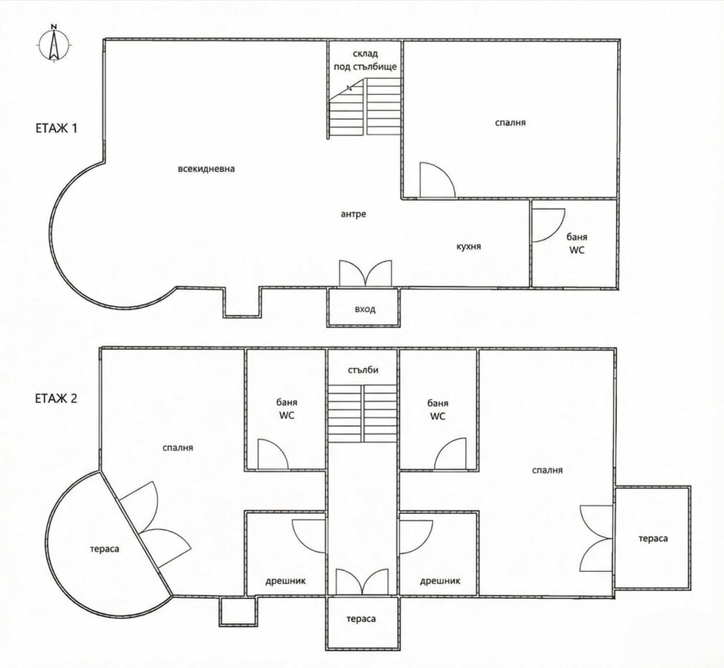
Kompleks składa się z sześciu identycznych dwupiętrowych domów, każdy o powierzchni zabudowanej 182 m kw. i wydzielonym podwórku o powierzchni 300 m kw.
Spośród sześciu domów w sumie:
• jeden jest w całości wykończony „pod klucz”;
• pięć domów zostało otynkowanych i wylewkowych (bez robót wykończeniowych).
Na zdjęciach widać tylko dom wykończony pod klucz. Są też wizualizacje wnętrz, oznaczone jako gotowe.
Podział każdego domu:
Pierwsze piętro:
• przestronny salon o powierzchni 42 m2 z kominkiem i wyjściem na podwórko;
• kuchnia i jadalnia;
• toaleta dla gości;
• sypialnia 16 m2, odpowiednia na salon, biuro lub siłownię.
Drugie piętro:
• dwie duże sypialnie o powierzchni 22 m2, każda z własną łazienką z toaletą (en suite) i wnęką na własną garderobę;
• sypialnia główna posiada okrągły taras;
• druga sypialnia – z mniejszym tarasem;
• Na piętrze znajduje się również trzeci taras, dostępny z korytarza pomiędzy dwiema sypialniami.
Informacje dodatkowe:
• Na życzenie kupującego w każdym domu istnieje możliwość dobudowania basenu.
• Istnieje możliwość połączenia dwóch sąsiednich domów poprzez część mieszkalną, w celu stworzenia jednego przestronnego domu z 6 sypialniami.
• Własne źródło wody i szambo.
• Przygotowanie układu klimatyzacji.
Parking : dwa miejsca parkingowe na podjeździe z przodu budynku.
Ceny :
• Dom z tynkiem i sztukaterią: 165 000 EUR z VAT
• Dom pod klucz: 190 000 EUR z VAT
Ustawa 16 - od grudnia 2025 r.
Depozyt: 2000 EUR
Osiedle Serenity Six nadaje się zarówno do stałego zamieszkania, jak i jako nieruchomość wakacyjna lub inwestycja - w okolicy z pięknymi widokami, czystym powietrzem i szybkim dostępem do morza.
Kompleks składa się z sześciu identycznych dwupiętrowych domów, każdy o powierzchni zabudowanej 182 m kw. i wydzielonym podwórku o powierzchni 300 m kw.
Spośród sześciu domów w sumie:
• jeden jest w całości wykończony „pod klucz”;
• pięć domów zostało otynkowanych i wylewkowych (bez robót wykończeniowych).
Na zdjęciach widać tylko dom wykończony pod klucz. Są też wizualizacje wnętrz, oznaczone jako gotowe.
Podział każdego domu:
Pierwsze piętro:
• przestronny salon o powierzchni 42 m2 z kominkiem i wyjściem na podwórko;
• kuchnia i jadalnia;
• toaleta dla gości;
• sypialnia 16 m2, odpowiednia na salon, biuro lub siłownię.
Drugie piętro:
• dwie duże sypialnie o powierzchni 22 m2, każda z własną łazienką z toaletą (en suite) i wnęką na własną garderobę;
• sypialnia główna posiada okrągły taras;
• druga sypialnia – z mniejszym tarasem;
• Na piętrze znajduje się również trzeci taras, dostępny z korytarza pomiędzy dwiema sypialniami.
Informacje dodatkowe:
• Na życzenie kupującego w każdym domu istnieje możliwość dobudowania basenu.
• Istnieje możliwość połączenia dwóch sąsiednich domów poprzez część mieszkalną, w celu stworzenia jednego przestronnego domu z 6 sypialniami.
• Własne źródło wody i szambo.
• Przygotowanie układu klimatyzacji.
Parking : dwa miejsca parkingowe na podjeździe z przodu budynku.
Ceny :
• Dom z tynkiem i sztukaterią: 165 000 EUR z VAT
• Dom pod klucz: 190 000 EUR z VAT
Ustawa 16 - od grudnia 2025 r.
Depozyt: 2000 EUR
Osiedle Serenity Six nadaje się zarówno do stałego zamieszkania, jak i jako nieruchomość wakacyjna lub inwestycja - w okolicy z pięknymi widokami, czystym powietrzem i szybkim dostępem do morza.
Zobacz tekst w innych językach (tłumaczenie automatyczne)
Lokalizacja (absolutnie poprawnie)
To jest absolutnie dokładna lokalizacja nieruchomości/kompleksu. Możesz powiększać lub pomniejszać skalę mapy, a także poruszać się po niej za pomocą myszki lub kontrolek znajdujących się na samej mapie.
Cennik
Nasze top oferty do sprzedaz Aheloy, Bulgaria



ORIGINAL: