Liczba pięter w budynku
5
Piętro
4
Winda
tak
pokoie
4
Sypialnie
3
Łazienki
2
Kryte miejsca parkingowe
2
Balkony (tarasy) szt.:
3
Piwnica
tak
Piwnica (powierzchnia)
8.25 m2

Całkowita powierzchnia
222 m2
Powierzchnia zabudowana
188.64 m2
Części wspólne
33.36 m2
Otrzymano Akt 16

Cena
380 000 €
1 712 €/m2
Obowiązkowa opłata za zarządzanie -
€ 70 / Miesięcznie
Zapytanie o więcej informacji lub oględziny
Pakiet informacyjny
Stan
unfinished internally
Umeblowanie
Ogrzewanie
Klimatyzacje
Klimatyzacja
Klimatyzator inwerterowy
Odległości
Ostatnieia aktualizacja
15.04.2026 r.
Odległości od nieruchomości do innych ważnych obiektów
- Centrum miasta: 7.3km
- Lotnisko Plovdiv (PDV): 18.7km
Widoki z nieruchomości
- Widoki na miasto
- Widoki na wewnętrzny ogród
Budowa
- Cegła
- Konstrukcja żelbetowa
Ogrzewanie
- Klimatyzacje
Klimatyzacja
- Klimatyzator inwerterowy
Informacje administracyjne dotyczące oferty
- Elektryczność
- Komunalne dostarczanie wody
- Woda
- ściany malowane lateksem
- drzwi automatyczne
- izolacja ścian zewnętrznych
- izolacja dachu
- kamień naturalny
- Kanalizacja komunalna
- luksusowe windy
- Odwodnienie sieciowe
- płaski dach
- płytki granitowe
- wentylowana elewacja
- Łazienka z toaletą
- Balkon
- Miejsce parkingowe
- Aluminiowe ramy okienne
- Izolacja zewnętrzna
- Niedokończone wnętrze
- Pancerne drzwi wejściowe
- Potrójne przeszklenie
- Solidne ściany
- Stolarka aluminiowa
- Osiedle zamknięte
- Winda
- Ogród z kwiatami
- Internet
- Na drodze asfaltowej
- Wi-Fi
- W budynku mieszkalnym
- W pobliżu sklepy spożywcze
Tekst został automatycznie przetłumaczony przez oprogramowanie i może zawierać nieścisłości.
Możesz zobaczyć tekst w oryginalnym języku lub przetłumaczyć na inne języki:
Prezentujemy ekskluzywny, niezwykle przestronny apartament z trzema sypialniami w nowoczesnym kompleksie mieszkalnym w parku „Rekreacja i Kultura”, zaledwie kilka metrów od Kanału Wioślarskiego w Płowdiwie. Kompleks znajduje się w jednej z najlepszych lokalizacji w mieście – 5 minut od centrum, z panoramicznym widokiem na Rodopy, Bałkany i Bazę Wioślarską.
Budynek został oddany do użytku (z Aktem 16), z kontrolowanym dostępem, windą i wewnętrznym parkiem.
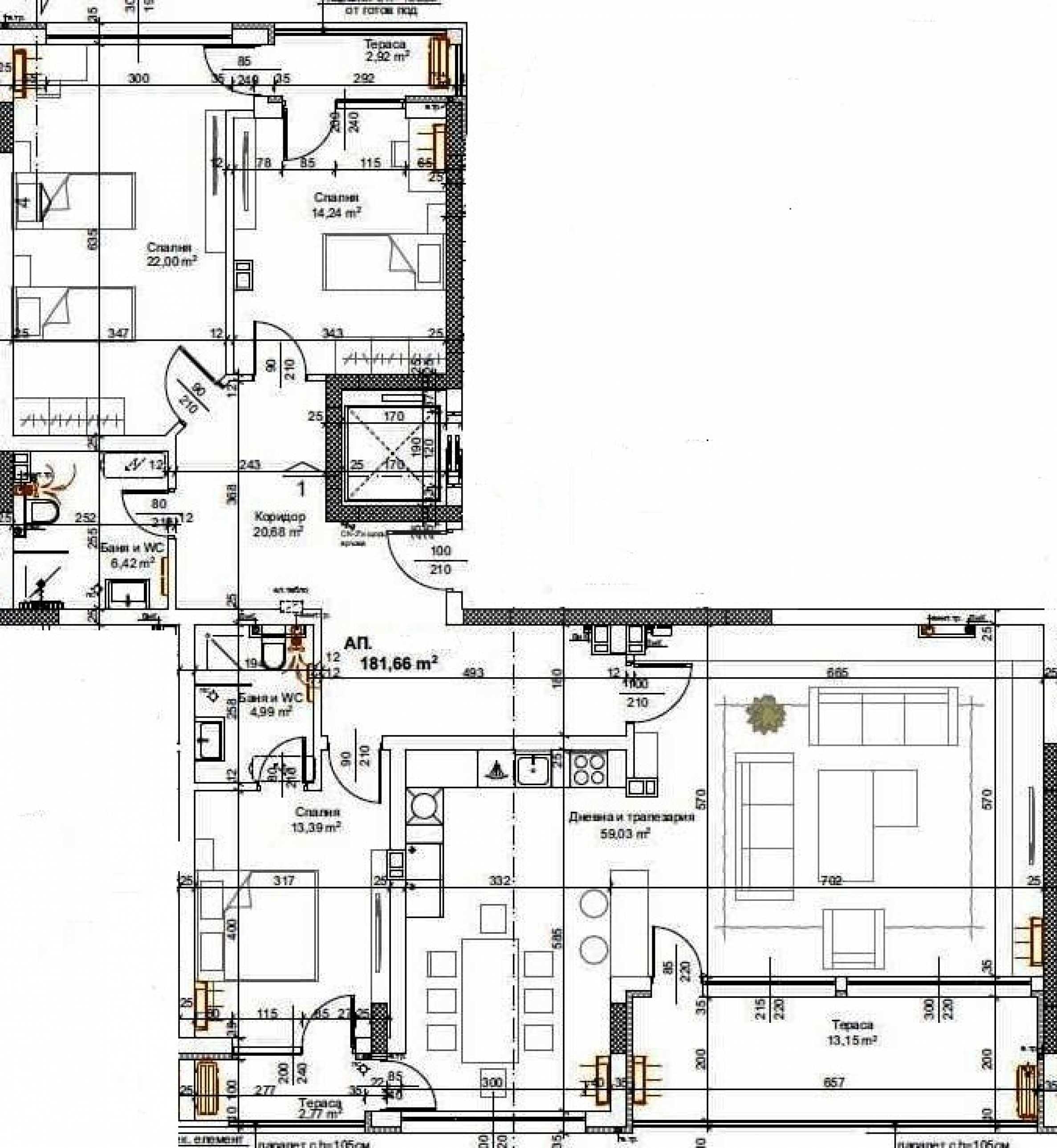
Apartament o powierzchni całkowitej 222 mkw. usytuowany jest na 4 piętrze (trzecim piętrze budynku mieszkalnego) z 5, z ekspozycją wschód/południe/północ.
Dystrybucja:
• hol wejściowy;
• imponujący salon z jadalnią i aneksem kuchennym - 59,03 m2;
• trzy przestronne sypialnie – 22 m2, 14,24 m2 i 13,39 m2;
• trzy tarasy z widokiem;
• dwie łazienki z toaletami.
Zdjęcia wnętrza stanowią przykładową wizualizację.
Stopień zaawansowania prac wg BDS, budownictwo nowoczesne;
• ściany i sufity – tynki gipsowe maszynowe, zaprawy cementowe;
• tarasy – płytki granitowe;
• wybudowana sieć wodno-kanalizacyjna aż do punktu poboru wody, wodomierze ze zdalnym odczytem;
• instalacja elektryczna z włącznikami i gniazdkami Legrand i Schneider Electric;
• System wideodomofonowy BTicino, okablowanie internetowe i telewizyjne;
• drzwi wejściowe pancerne z mechanicznym ryglowaniem i wysokiej jakości powłoką;
• mur z cegły ceramicznej firmy Wienerberger – 25 cm;
• elewacja – kamień naturalny, tynk polimerowy Ceresit i balustrady kute;
• Izolacja termiczna Baumit – 10 cm;
• Stolarka aluminiowa Schüco z potrójnym przeszkleniem;
• części wspólne – włoski granit, podwieszane sufity z oświetleniem LED Philips;
• windy serii ORONA 3G (Hiszpania);
• kontrolowany dostęp i całodobowy monitoring wideo z systemem Hikvision IP-CCTV i systemem kontroli dostępu BTicino/Legrand.
Do nieruchomości przynależy również piwnica o powierzchni 8,25 mkw.
Do dyspozycji Gości są także dwa miejsca parkingowe o powierzchni 24 m2 każde w parkingu podziemnym w cenie 20 000 euro / 39 116,6 BGN każde.
Parking wyposażony jest w system alarmowy przeciwpożarowy i przeciwgazowy, a także system oświetlenia ewakuacyjnego i awaryjnego oraz trzy systemy wentylacji SystemAir z automatycznymi drzwiami wejściowymi HÖRMANN.
Zalety:
• salon o imponujących wymiarach i widokach;
• każdy pokój z wyjściem na taras;
• gotowy z Ustawą 16, zgodnie z BDS;
• bezpieczny parking.
Skontaktuj się z nami w celu umówienia wizyty!
Ogledziny nieruchomosci
Mozemy zorganizowac ogledziny nieruchomosci, w dogodnym dla Panstwa terminie. W tym celu prosimy o skontaktowanie sie z agentem odpowiedzialnym za te oferte.
Rezerwacja nieruchomosci
Nieruchomosc moze byc zarezerwowana i wycofana ze sprzedazy po wplaceniu zadatku, po czym ustaje ogladanie z innymi kupujacymi i rozpoczyna sie przygotowanie dokumentow do zawarcia umowy przedwstepnej i ostatecznej.
Prosimy o kontakt z agentem odpowiedzialnym za te nieruchomosc w celu uzyskania szczegolowych informacji dotyczacych procedury zakupu i metod platnosci.
Uslugi dodatkowe i obsluga posprzedazowa
Jestesmy sprawdzona firma o dobrej reputacji i wieloletnim doswiadczeniu. Dlatego bedziemy z Panstwem nie tylko w trakcie zakupu, ale takze po jego zakonczeniu, swiadczac na Panstwa zyczenie dodatkowe uslugi, aby w pelni i bezproblemowo korzystac z nowo zakupionej nieruchomosci. Uslugi, ktore mozemy zaoferowac, obejmuja uzyskanie zgody na kredyt hipoteczny z bulgarskiego banku, ubezpieczenia majatku ruchomego i nieruchomosci, ubezpieczenia na zycie, ubezpieczenia medyczne i samochodowe, prace budowlane i remontowe, meblowanie, uslugi prawne i ksiegowe itp.
Budynek został oddany do użytku (z Aktem 16), z kontrolowanym dostępem, windą i wewnętrznym parkiem.
Apartament o powierzchni całkowitej 222 mkw. usytuowany jest na 4 piętrze (trzecim piętrze budynku mieszkalnego) z 5, z ekspozycją wschód/południe/północ.
Dystrybucja:
• hol wejściowy;
• imponujący salon z jadalnią i aneksem kuchennym - 59,03 m2;
• trzy przestronne sypialnie – 22 m2, 14,24 m2 i 13,39 m2;
• trzy tarasy z widokiem;
• dwie łazienki z toaletami.
Zdjęcia wnętrza stanowią przykładową wizualizację.
Stopień zaawansowania prac wg BDS, budownictwo nowoczesne;
• ściany i sufity – tynki gipsowe maszynowe, zaprawy cementowe;
• tarasy – płytki granitowe;
• wybudowana sieć wodno-kanalizacyjna aż do punktu poboru wody, wodomierze ze zdalnym odczytem;
• instalacja elektryczna z włącznikami i gniazdkami Legrand i Schneider Electric;
• System wideodomofonowy BTicino, okablowanie internetowe i telewizyjne;
• drzwi wejściowe pancerne z mechanicznym ryglowaniem i wysokiej jakości powłoką;
• mur z cegły ceramicznej firmy Wienerberger – 25 cm;
• elewacja – kamień naturalny, tynk polimerowy Ceresit i balustrady kute;
• Izolacja termiczna Baumit – 10 cm;
• Stolarka aluminiowa Schüco z potrójnym przeszkleniem;
• części wspólne – włoski granit, podwieszane sufity z oświetleniem LED Philips;
• windy serii ORONA 3G (Hiszpania);
• kontrolowany dostęp i całodobowy monitoring wideo z systemem Hikvision IP-CCTV i systemem kontroli dostępu BTicino/Legrand.
Do nieruchomości przynależy również piwnica o powierzchni 8,25 mkw.
Do dyspozycji Gości są także dwa miejsca parkingowe o powierzchni 24 m2 każde w parkingu podziemnym w cenie 20 000 euro / 39 116,6 BGN każde.
Parking wyposażony jest w system alarmowy przeciwpożarowy i przeciwgazowy, a także system oświetlenia ewakuacyjnego i awaryjnego oraz trzy systemy wentylacji SystemAir z automatycznymi drzwiami wejściowymi HÖRMANN.
Zalety:
• salon o imponujących wymiarach i widokach;
• każdy pokój z wyjściem na taras;
• gotowy z Ustawą 16, zgodnie z BDS;
• bezpieczny parking.
Skontaktuj się z nami w celu umówienia wizyty!
Ogledziny nieruchomosci
Mozemy zorganizowac ogledziny nieruchomosci, w dogodnym dla Panstwa terminie. W tym celu prosimy o skontaktowanie sie z agentem odpowiedzialnym za te oferte.
Rezerwacja nieruchomosci
Nieruchomosc moze byc zarezerwowana i wycofana ze sprzedazy po wplaceniu zadatku, po czym ustaje ogladanie z innymi kupujacymi i rozpoczyna sie przygotowanie dokumentow do zawarcia umowy przedwstepnej i ostatecznej.
Prosimy o kontakt z agentem odpowiedzialnym za te nieruchomosc w celu uzyskania szczegolowych informacji dotyczacych procedury zakupu i metod platnosci.
Uslugi dodatkowe i obsluga posprzedazowa
Jestesmy sprawdzona firma o dobrej reputacji i wieloletnim doswiadczeniu. Dlatego bedziemy z Panstwem nie tylko w trakcie zakupu, ale takze po jego zakonczeniu, swiadczac na Panstwa zyczenie dodatkowe uslugi, aby w pelni i bezproblemowo korzystac z nowo zakupionej nieruchomosci. Uslugi, ktore mozemy zaoferowac, obejmuja uzyskanie zgody na kredyt hipoteczny z bulgarskiego banku, ubezpieczenia majatku ruchomego i nieruchomosci, ubezpieczenia na zycie, ubezpieczenia medyczne i samochodowe, prace budowlane i remontowe, meblowanie, uslugi prawne i ksiegowe itp.
Zobacz tekst w innych językach (tłumaczenie automatyczne)
Lokalizacja (około)
Przybliżone położenie nieruchomości/kompleksu zaznaczono na mapie czerwonym znacznikiem.
Nasze top oferty do sprzedaz Plovdiv, Bulgaria


ORIGINAL: