Liczba pięter w budynku
5
Piętro
2
Winda
tak
pokoie
2
Sypialnie
1
Łazienki
1

Całkowita powierzchnia
76.06 m2
Powierzchnia zabudowana
64.60 m2
Części wspólne
11.46 m2
Stan
W trakcie budowy
Planowane zakończenie
April 2028

Cena
87 469 €
(bez VAT)
1 150 €/m2
(bez VAT)
Bez prowizji od kupującego
Zapytanie o więcej informacji lub oględziny
Pakiet informacyjny
Odległości
Ostatnieia aktualizacja
21.04.2026 r.
Odległości od nieruchomości do innych ważnych obiektów
- Morze: 250m
- Lotnisko Burgas (BOJ): 75km
Budowa
- Cegła
- Konstrukcja żelbetowa
Informacje administracyjne dotyczące oferty
- Elektryczność
- Komunalne dostarczanie wody
- Odwodnienie sieciowe
- Niedokończone wnętrze
Tekst został automatycznie przetłumaczony przez oprogramowanie i może zawierać nieścisłości.
Możesz zobaczyć tekst w oryginalnym języku lub przetłumaczyć na inne języki:
W trakcie realizacji. Oczekiwana ustawa 16 - 04.2028.
Oferujemy na sprzedaż mieszkanie jednopokojowe w nowym budynku mieszkalnym z basenem i udogodnieniami, położonym w samym sercu Starego Miasta w Carewie, w dzielnicy „Vasiliko”. W górnej części osiedla, w pobliżu plaży Nestinarka, centrum miasta, restauracji, parków, sklepów spożywczych i sieci handlowych.
Zakup bez prowizji.
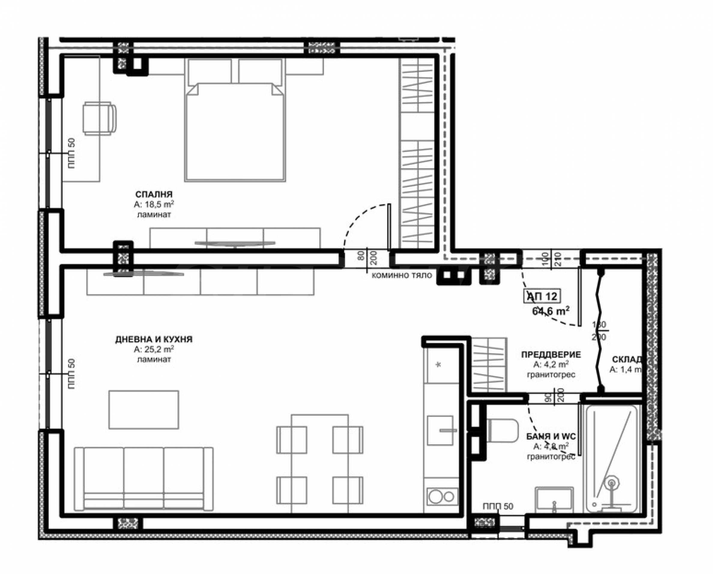
Nieruchomość ma powierzchnię 76,06 m2, znajduje się na 2 piętrze i składa się z: przedpokoju, salonu z aneksem kuchennym, sypialni, pomieszczenia gospodarczego, łazienki z WC.
Mieszkanie jest wynajmowane w stanie wykończonym zgodnie z bułgarskimi normami budowlanymi, z zachowaniem wysokiej jakości użytych materiałów.
O budynku
Budynek ma elegancki design, składa się z pięciu kondygnacji naziemnych i jednej półpiwnicy, na których mieści się 71 apartamentów typu studio, jedno-, dwu- i czteropokojowych, 29 miejsc parkingowych i komórek lokatorskich.
Właściciele pierwszego piętra będą mieli do dyspozycji własne podwórko i miejsce parkingowe w pobliżu, a właściciele, którzy zdecydują się na ostatnie, piąte piętro, będą mogli cieszyć się widokiem na morze i góry z panoramicznych tarasów.
Istnieje możliwość dokupienia dodatkowego miejsca parkingowego.
Nieruchomości łączą jasne przestrzenie, zaprojektowane z dbałością o detale, z myślą o osobach ceniących jakość i nowoczesny styl życia. Innowacyjna koncepcja łączy nowoczesną architekturę z najnowszymi technologiami.
Nowoczesna i wysokiej jakości konstrukcja:
• klasa energetyczna A – wysoka efektywność energetyczna, zapewniająca niskie zużycie energii i optymalne koszty ogrzewania i chłodzenia;
• elewacja premium - elewacja ceramiczna o nowoczesnym wzornictwie i doskonałej trwałości;
• Okna francuskie - maksymalne przeszklenie zapewniające więcej światła, przestrzeni i niezrównane widoki;
• stolarka najwyższej klasy - doskonała izolacja cieplna i akustyczna, nowoczesny wygląd i długa żywotność;
• dyskretne oświetlenie elewacji i ogrodu, podkreślające architekturę;
• wysoka skuteczność izolacji akustycznej - gwarantuje ciszę, prywatność i komfort akustyczny w każdym domu;
• instalacja klimatyzacji prefabrykowanej;
• luksusowe części wspólne i winda - zrealizowane według projektu wnętrza z wykorzystaniem materiałów najwyższej jakości i dbałością o każdy szczegół;
• luksusowy basen i bogato zagospodarowany ogród - ciche, zielone i estetyczne otoczenie sprzyjające rekreacji i relaksowi;
• parking podziemny i otwarte miejsca parkingowe - dobrze zorganizowane, z bezpośrednim dostępem do budynku.
Czekamy na Państwa zapytanie.
Jeśli chcesz umówić się na obejrzenie interesującej Cię nieruchomości lub odwiedzić jedno z naszych biur, skontaktuj się z nami. Aby umówić się na spotkanie lub oględziny, zadzwoń pod numer telefonu podany w ogłoszeniu lub wyślij zapytanie e-mailem. Nasz konsultant pomoże Ci w ustaleniu wszystkich niezbędnych szczegółów i ustali dogodny termin.
Szukasz odpowiedniej nieruchomości dla siebie?
Skontaktuj się z nami i opowiedz nam o swoich potrzebach i preferencjach. Nasz zespół przeprowadzi dogłębną analizę rynku, aby zaoferować Ci nieruchomości idealnie odpowiadające Twoim kryteriom. Posiadamy wyjątkowe portfolio wysokiej jakości, ekskluzywnych domów, dostępnych wyłącznie dla naszych klientów. Aby być pierwszym, który otrzyma o nich informacje – skontaktuj się z nami.
Usługi dodatkowe
Jako ceniony klient naszej firmy, będziesz miał przywilej korzystania z usług naszego doświadczonego zespołu prawnego całkowicie bezpłatnie. Ponadto oferujemy kompleksowe rozwiązania, w tym ubezpieczenia nieruchomości, bezpłatne doradztwo finansowe, a także korzystne warunki finansowania. Nasze usługi obejmują również odsprzedaż, wynajem i zarządzanie nieruchomościami. Zapewniamy wysokiej jakości remonty i wyposażenie wnętrz za pośrednictwem wyspecjalizowanych firm wchodzących w skład naszej grupy kapitałowej i będących naszymi wieloletnimi partnerami.
Oferujemy na sprzedaż mieszkanie jednopokojowe w nowym budynku mieszkalnym z basenem i udogodnieniami, położonym w samym sercu Starego Miasta w Carewie, w dzielnicy „Vasiliko”. W górnej części osiedla, w pobliżu plaży Nestinarka, centrum miasta, restauracji, parków, sklepów spożywczych i sieci handlowych.
Zakup bez prowizji.
Nieruchomość ma powierzchnię 76,06 m2, znajduje się na 2 piętrze i składa się z: przedpokoju, salonu z aneksem kuchennym, sypialni, pomieszczenia gospodarczego, łazienki z WC.
Mieszkanie jest wynajmowane w stanie wykończonym zgodnie z bułgarskimi normami budowlanymi, z zachowaniem wysokiej jakości użytych materiałów.
O budynku
Budynek ma elegancki design, składa się z pięciu kondygnacji naziemnych i jednej półpiwnicy, na których mieści się 71 apartamentów typu studio, jedno-, dwu- i czteropokojowych, 29 miejsc parkingowych i komórek lokatorskich.
Właściciele pierwszego piętra będą mieli do dyspozycji własne podwórko i miejsce parkingowe w pobliżu, a właściciele, którzy zdecydują się na ostatnie, piąte piętro, będą mogli cieszyć się widokiem na morze i góry z panoramicznych tarasów.
Istnieje możliwość dokupienia dodatkowego miejsca parkingowego.
Nieruchomości łączą jasne przestrzenie, zaprojektowane z dbałością o detale, z myślą o osobach ceniących jakość i nowoczesny styl życia. Innowacyjna koncepcja łączy nowoczesną architekturę z najnowszymi technologiami.
Nowoczesna i wysokiej jakości konstrukcja:
• klasa energetyczna A – wysoka efektywność energetyczna, zapewniająca niskie zużycie energii i optymalne koszty ogrzewania i chłodzenia;
• elewacja premium - elewacja ceramiczna o nowoczesnym wzornictwie i doskonałej trwałości;
• Okna francuskie - maksymalne przeszklenie zapewniające więcej światła, przestrzeni i niezrównane widoki;
• stolarka najwyższej klasy - doskonała izolacja cieplna i akustyczna, nowoczesny wygląd i długa żywotność;
• dyskretne oświetlenie elewacji i ogrodu, podkreślające architekturę;
• wysoka skuteczność izolacji akustycznej - gwarantuje ciszę, prywatność i komfort akustyczny w każdym domu;
• instalacja klimatyzacji prefabrykowanej;
• luksusowe części wspólne i winda - zrealizowane według projektu wnętrza z wykorzystaniem materiałów najwyższej jakości i dbałością o każdy szczegół;
• luksusowy basen i bogato zagospodarowany ogród - ciche, zielone i estetyczne otoczenie sprzyjające rekreacji i relaksowi;
• parking podziemny i otwarte miejsca parkingowe - dobrze zorganizowane, z bezpośrednim dostępem do budynku.
Czekamy na Państwa zapytanie.
Jeśli chcesz umówić się na obejrzenie interesującej Cię nieruchomości lub odwiedzić jedno z naszych biur, skontaktuj się z nami. Aby umówić się na spotkanie lub oględziny, zadzwoń pod numer telefonu podany w ogłoszeniu lub wyślij zapytanie e-mailem. Nasz konsultant pomoże Ci w ustaleniu wszystkich niezbędnych szczegółów i ustali dogodny termin.
Szukasz odpowiedniej nieruchomości dla siebie?
Skontaktuj się z nami i opowiedz nam o swoich potrzebach i preferencjach. Nasz zespół przeprowadzi dogłębną analizę rynku, aby zaoferować Ci nieruchomości idealnie odpowiadające Twoim kryteriom. Posiadamy wyjątkowe portfolio wysokiej jakości, ekskluzywnych domów, dostępnych wyłącznie dla naszych klientów. Aby być pierwszym, który otrzyma o nich informacje – skontaktuj się z nami.
Usługi dodatkowe
Jako ceniony klient naszej firmy, będziesz miał przywilej korzystania z usług naszego doświadczonego zespołu prawnego całkowicie bezpłatnie. Ponadto oferujemy kompleksowe rozwiązania, w tym ubezpieczenia nieruchomości, bezpłatne doradztwo finansowe, a także korzystne warunki finansowania. Nasze usługi obejmują również odsprzedaż, wynajem i zarządzanie nieruchomościami. Zapewniamy wysokiej jakości remonty i wyposażenie wnętrz za pośrednictwem wyspecjalizowanych firm wchodzących w skład naszej grupy kapitałowej i będących naszymi wieloletnimi partnerami.
Zobacz tekst w innych językach (tłumaczenie automatyczne)
Lokalizacja (około)
Przybliżone położenie nieruchomości/kompleksu zaznaczono na mapie czerwonym znacznikiem.
Nasze top oferty do sprzedaz Tsarevo, Bulgaria


ORIGINAL: